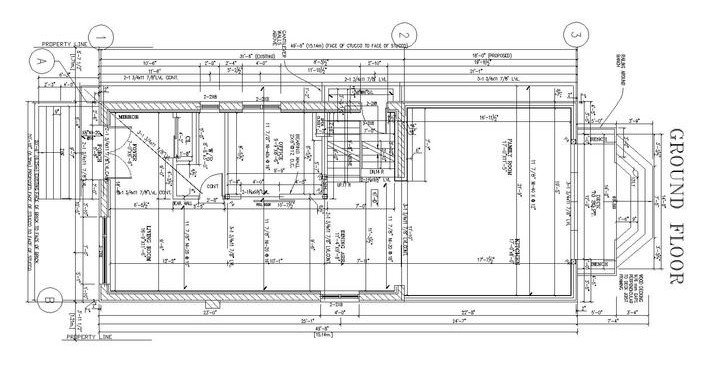
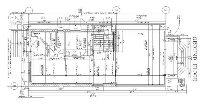
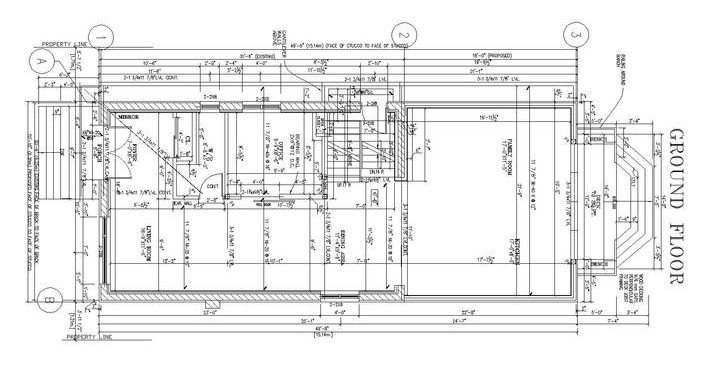
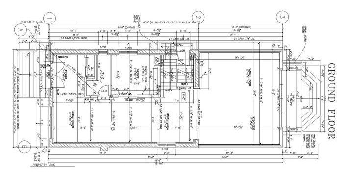
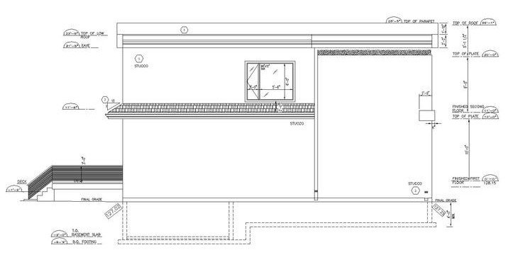
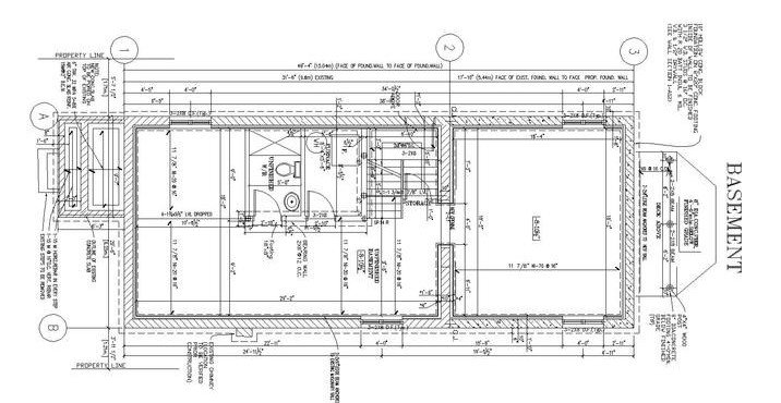
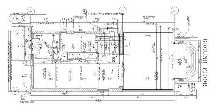
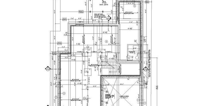
The living space of a one storey brick dwelling was tripled, and a small bungalow was converted into the one of the kind 3 storey contemporary house with finished basement and livable 3rd storey attic. In an established enclave of 1-1/2 storey homes, adding a third floor to a proposed dwelling is difficult enough. The key factor in obtaining the positive verdict of the Committee of Adjustment was the fact that the addition would be constructed on existing footprint, not to mention the fact that using existing foundation helped to save the homeowner over ten thousand dollars.
The homeowners decided not only to renovate the century old 3 storey house, but also to convert it in additional source of income, by splitting the house in three legal apartments: owner’s quarters and 2 self-contained rental units. We prepared the application fully complied with the second suites by-law and obtained a building permit.
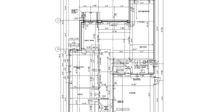
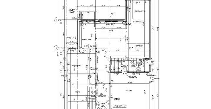
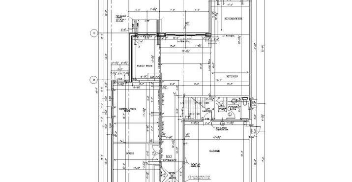
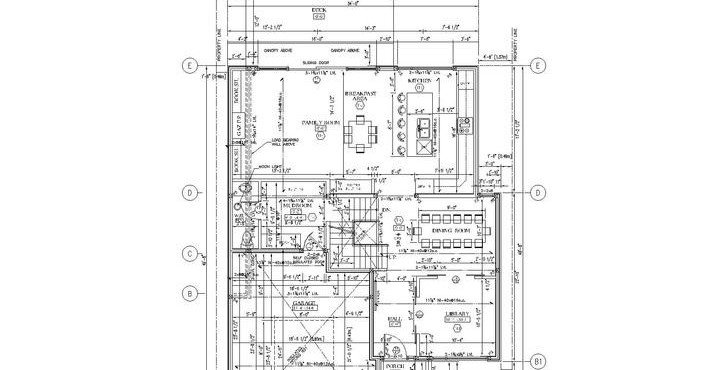
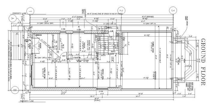
A desirable corner lot with the maximized living space, with the double car garage on the side, keeping the front elevation free to feature lovely details like eye-catching decorative chimney, and classical symmetry in the facade. Large windows on all elevations, real gem in interior layout: Breathtaking Family Room featuring 16 ft High Open to Above Ceilings.
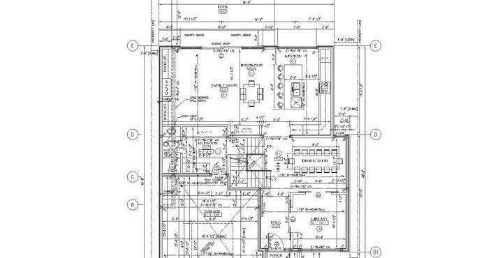
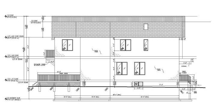
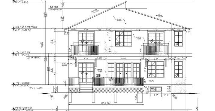
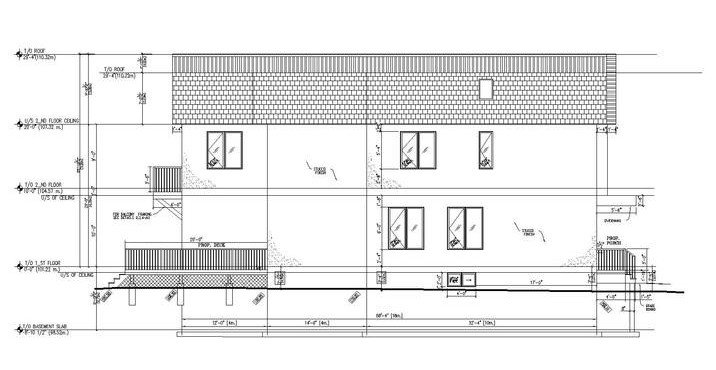
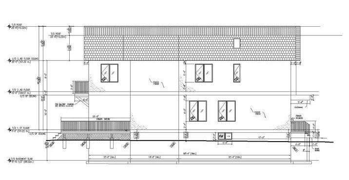
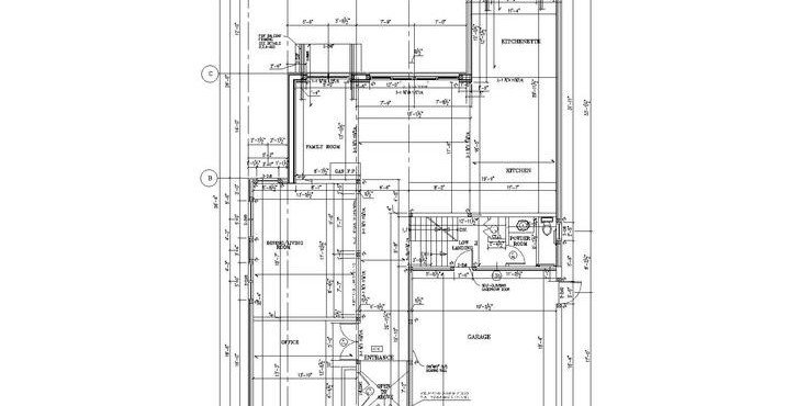
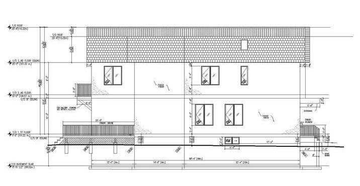
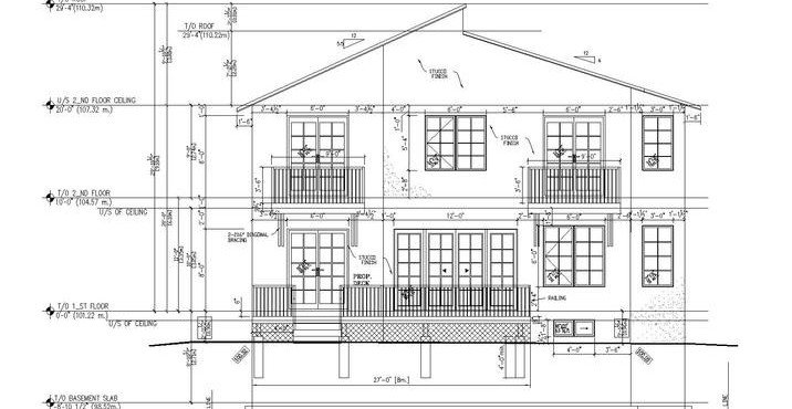
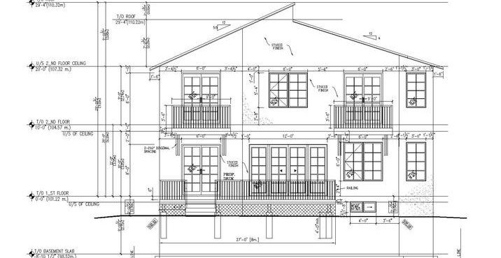
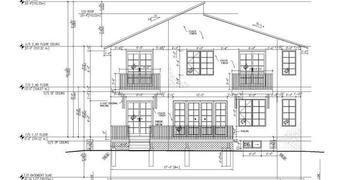
Back addition usually gets less attention, because it is erected behind the existing house and is barely seeing from the street. Rear two storey addition in this case allowed the owner to expand an existing small footprint of an older home back into a yard. We added over 2000 square feet to the back to get more family gathering space on the 1st floor and to accommodate 3 bedrooms on the 2nd floor.

Mississauga East
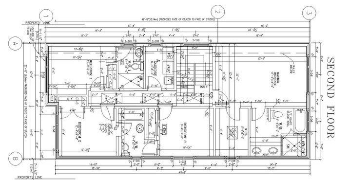
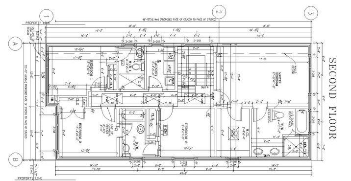
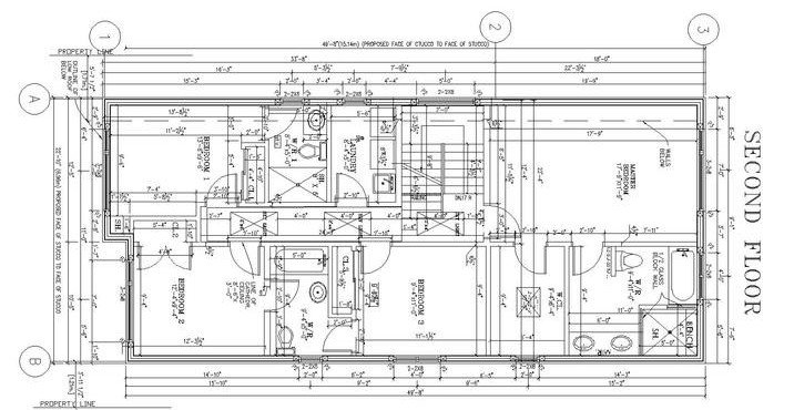
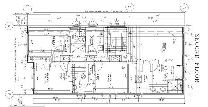
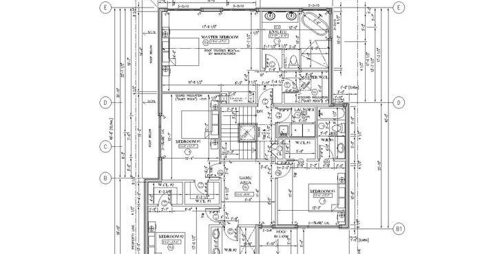
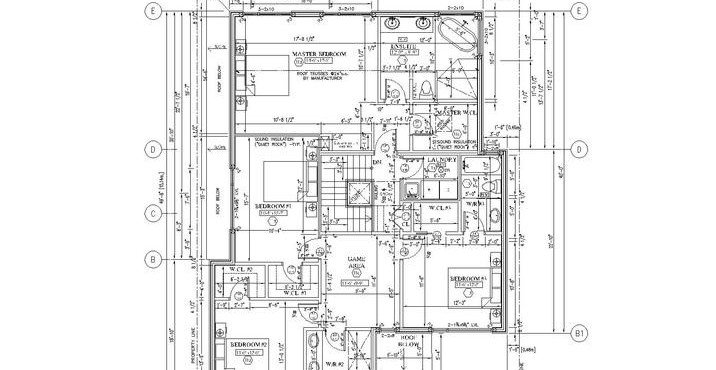
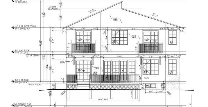
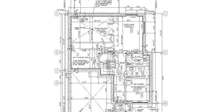
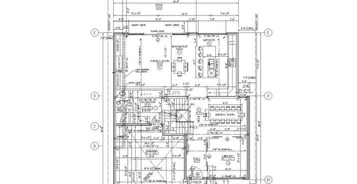
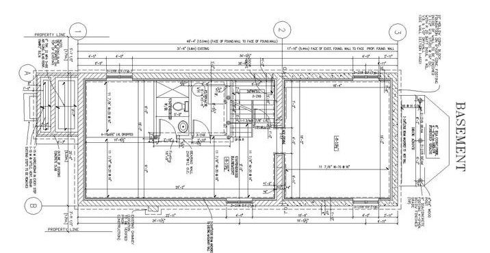
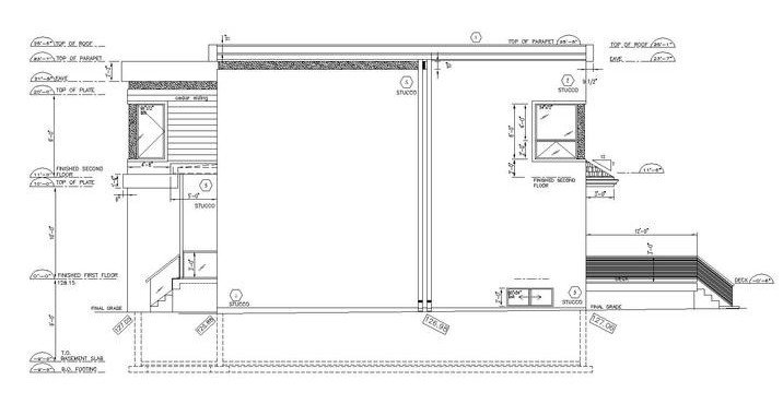
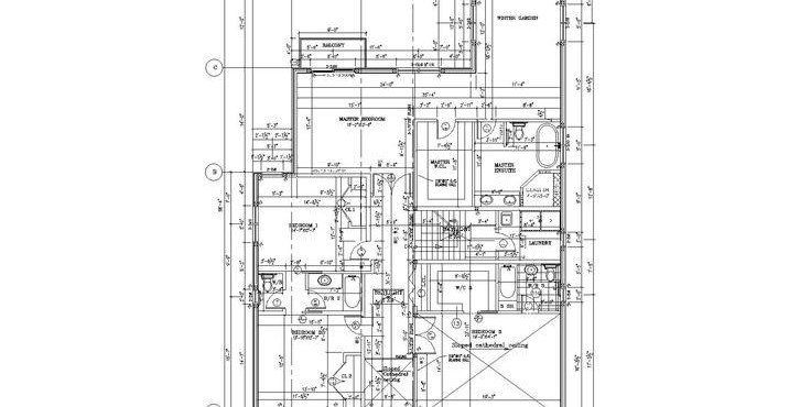
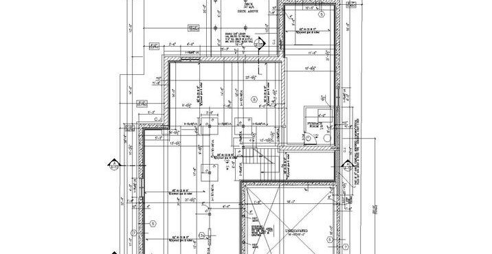
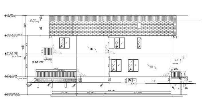
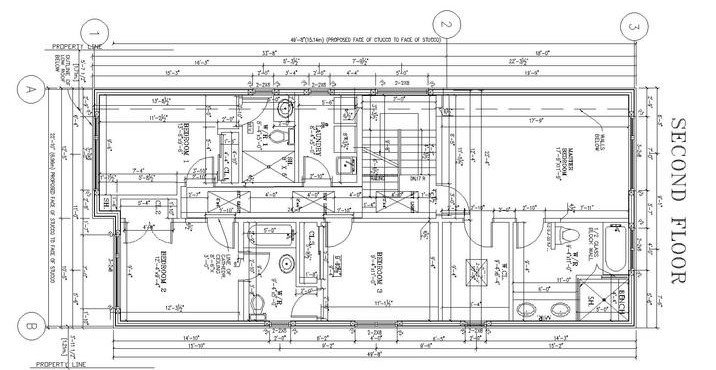
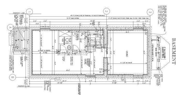
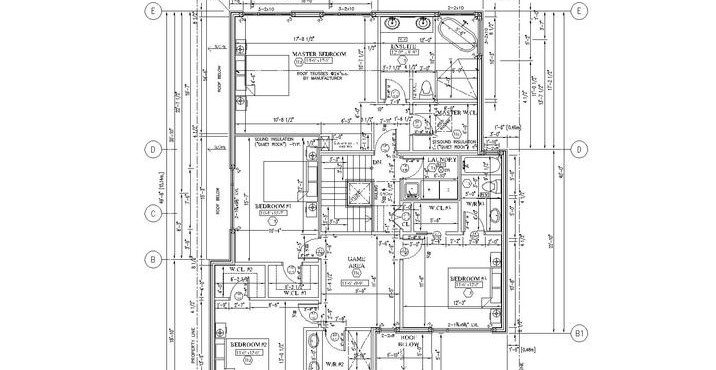
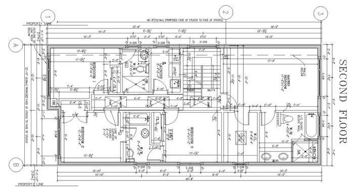
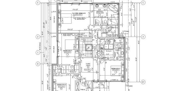
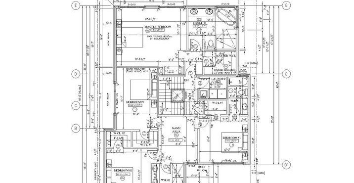
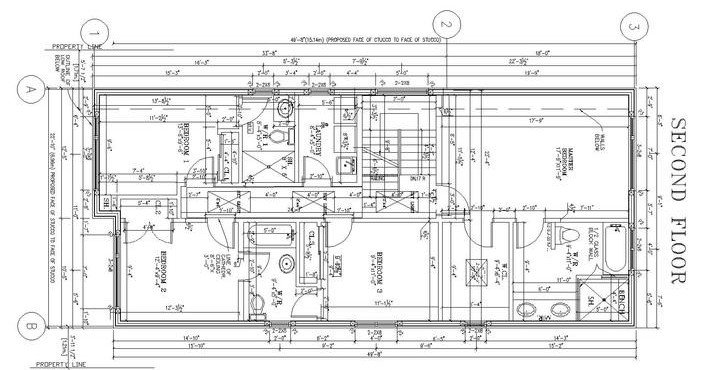
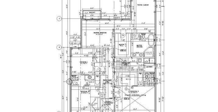
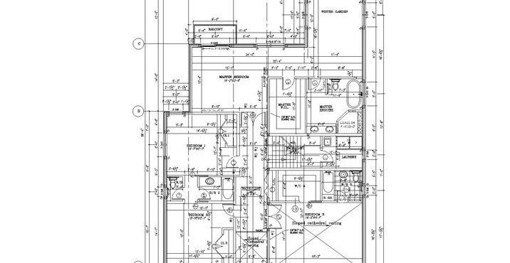
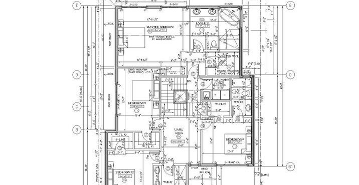
Despite of the lot's limited space, our designer developed the 2 storey project with spacious 5 Bedroom (each with walk-in closet) and 4+1 Washroom Layouts. Apart from the smart floor planning, the interior design features open to above breathtaking foyer, cathedral ceilings, and rarely offered large basement windows.
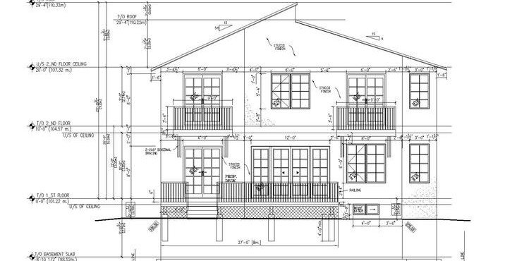
Classical architectural concept for a big family with traditional values. House is equipped with charming decorative elements, both exterior and interior: arched windows and exquisite inserts in the windows grills on the front elevation, niches with potlites on the staircase, and a real gem - beautiful solid wood kitchen with ornamental mouldings.
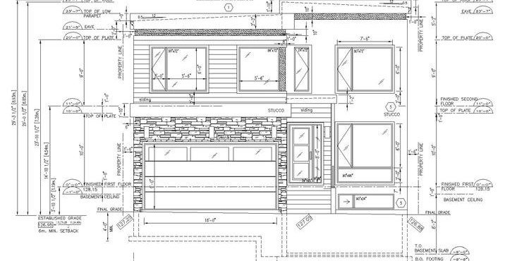
This project features the art of combining contemporary style with classic coziness and comfort . We designed this house for the young family who needed a bigger space and would like to stay in the popular North York neighbourhood. We created light, bright and stylish modern house concept, with impressive foundation-to-roof window at the front which keeps light flowing throughout.
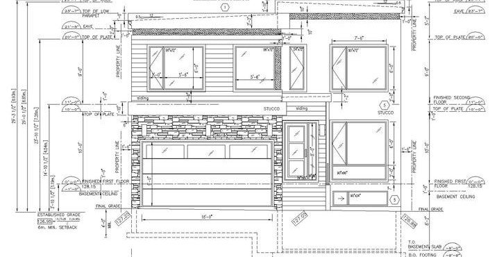
The featured project is a perfec example of a home addition on moderate budget. The construction estimate did not cost the homeowner arm and a leg, however, the project was customized to suit the needs of the individual client and had enough custom features like custom kitchen cabinetry or free standing bath tub in master ensuite.