











Project: Rear Two Storey Addition
Area: North York
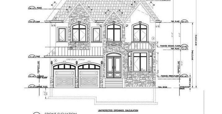
Old house: 3 Bed, 2 Bath, 1,281 sq. ft. one storey brick dwelling
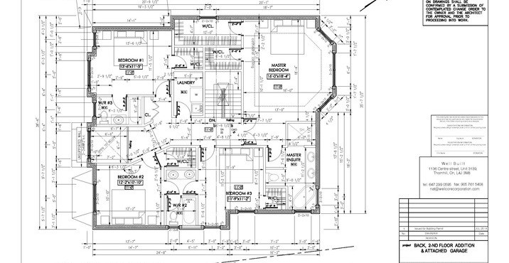
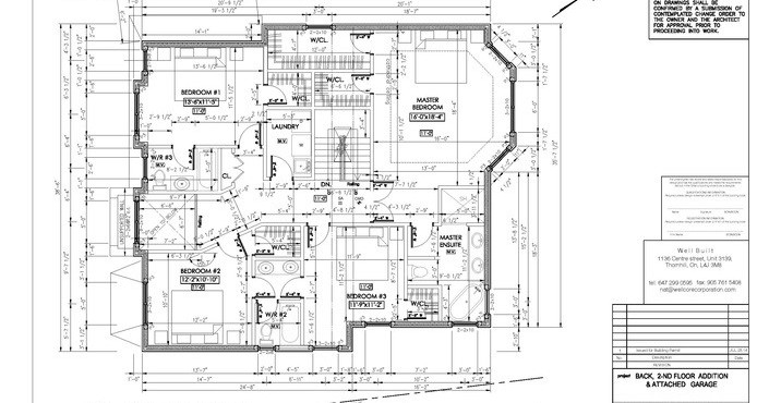
New House: 3 Bed, 5 Bath, 2,228 sq. ft.
Time to obtain permits: 5 months
Project Description
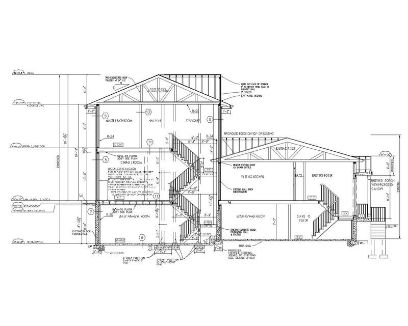
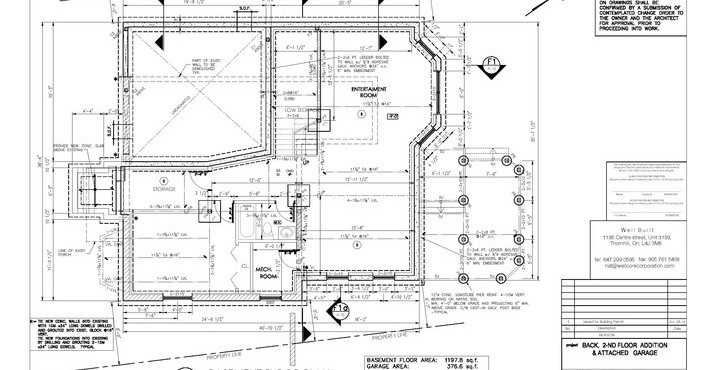
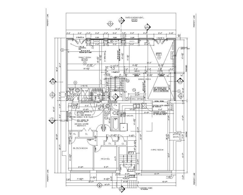
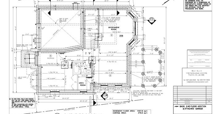
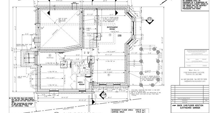
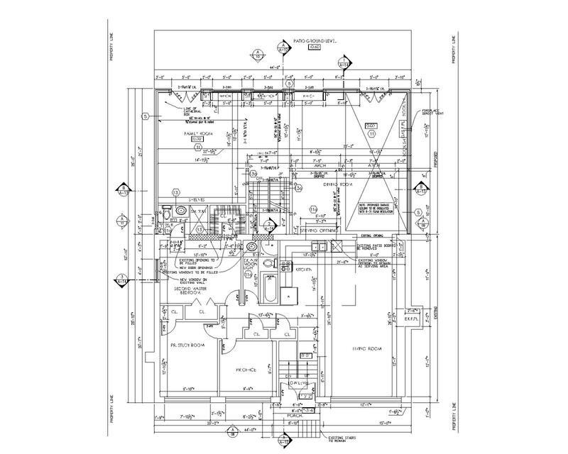
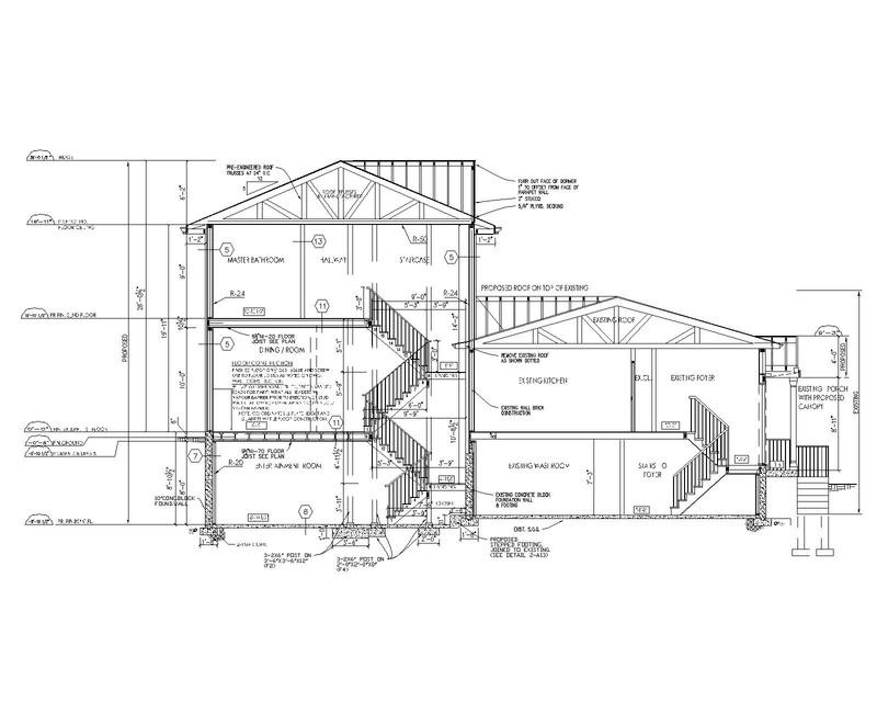
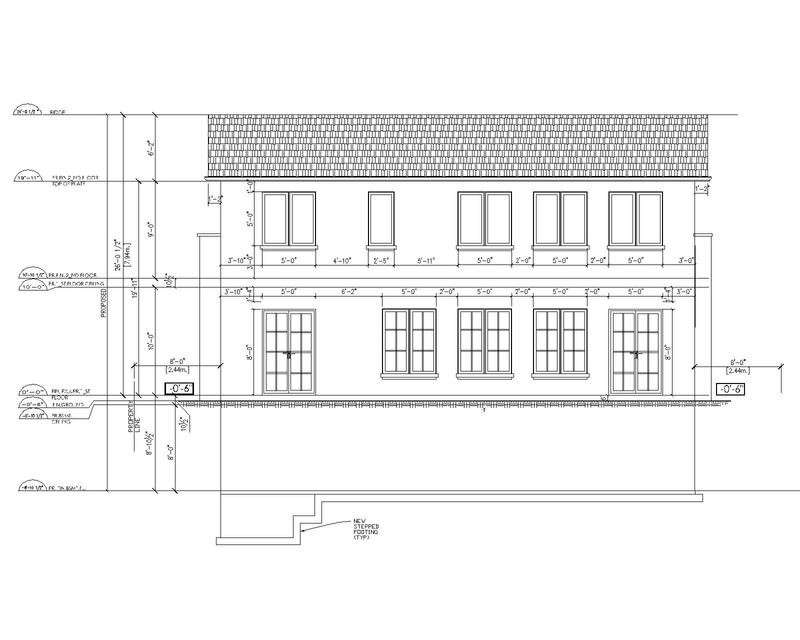
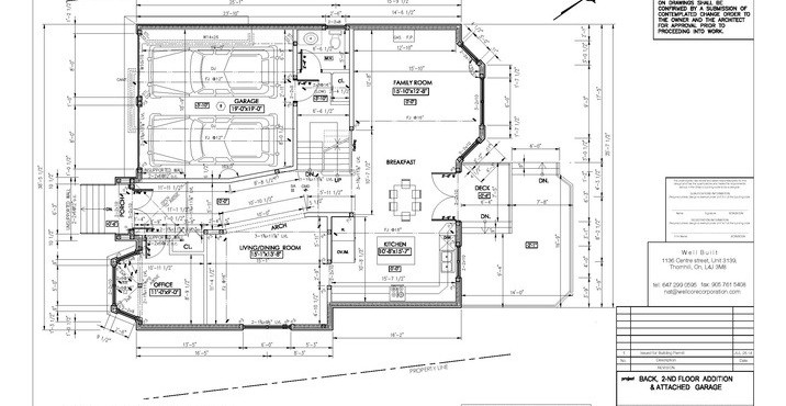
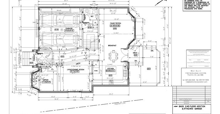
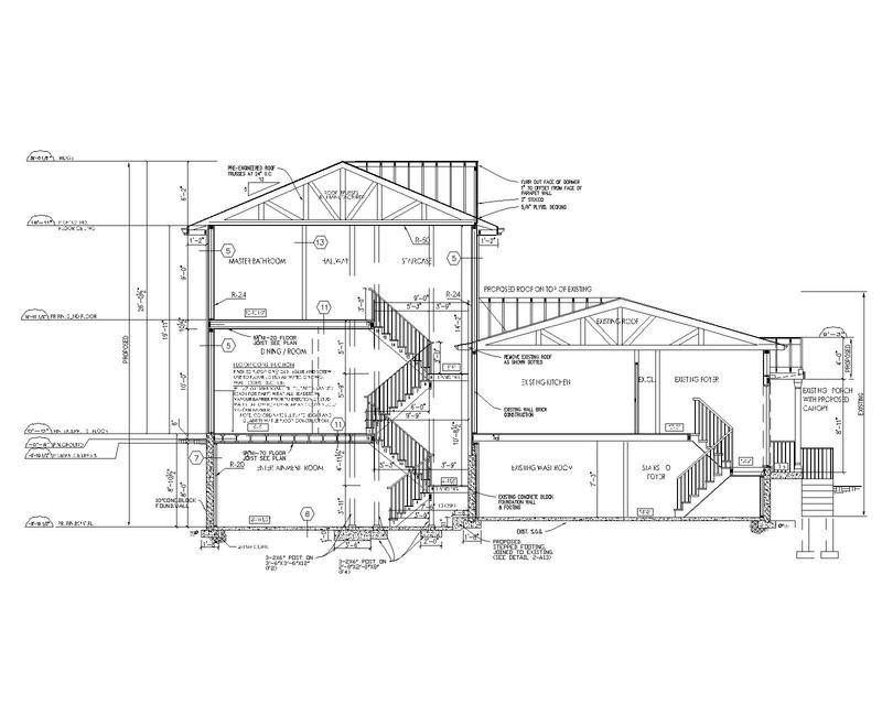
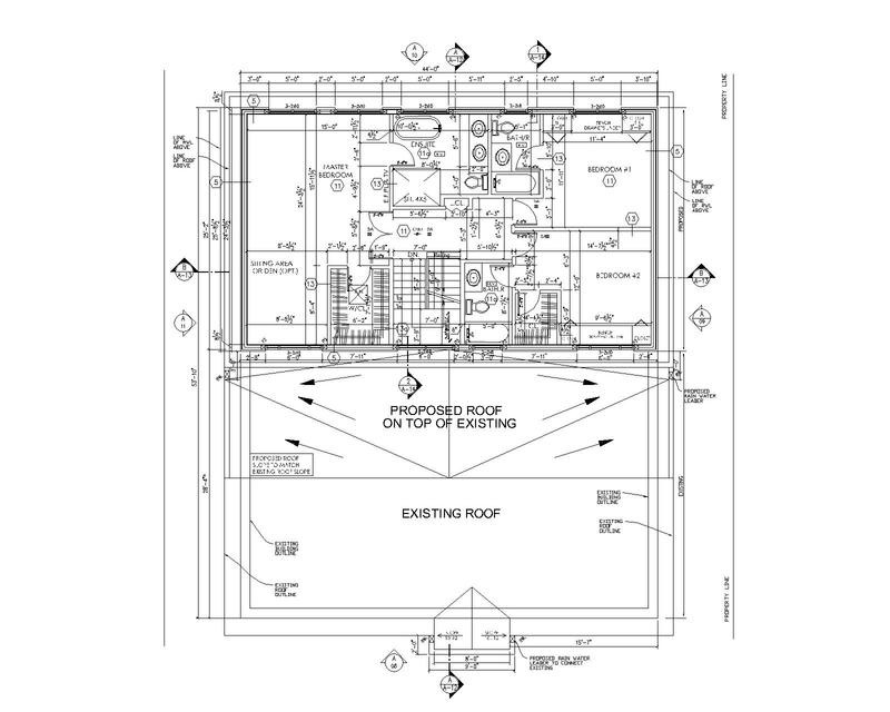
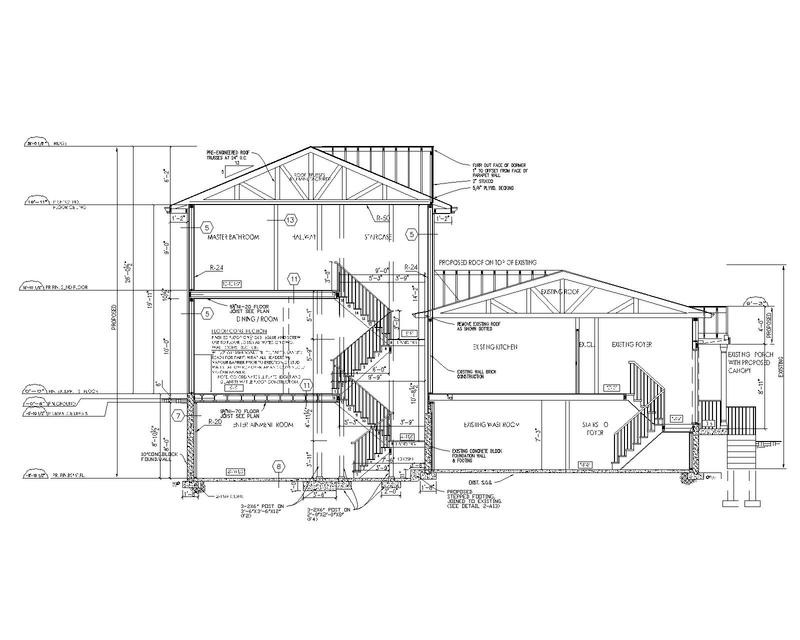
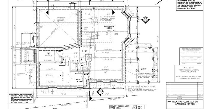
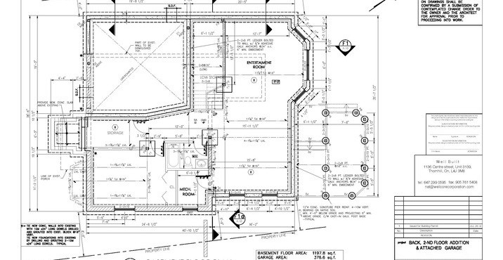
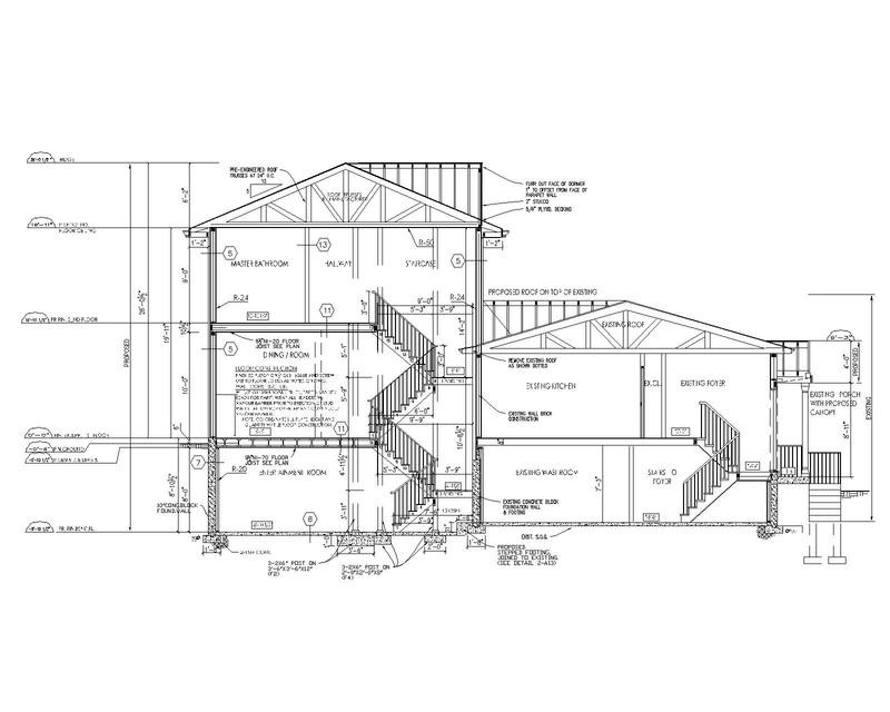
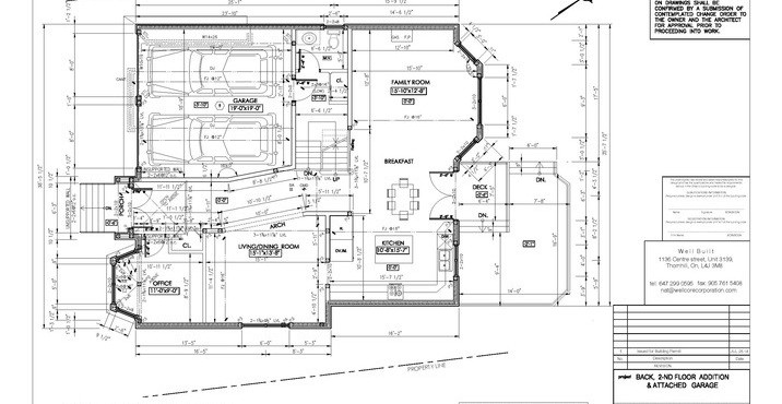
The old one storey brick dwelling was not built for homeowner's growing family. The family room, mudroom, powder room, master suite and larger kitchen of today’s modern home and lifestyle did not fit in the small footprint of the existing house, so the decision was made to develop the addition on the back extended into the back yard until the lot coverage is maximized and rear setback is met.
Back addition usually gets less attention, because it is erected behing the existing house. It allowed the owner to expand an existing small footprint of an older home back into a yard, barely seing from the street.
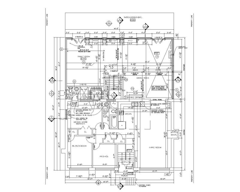
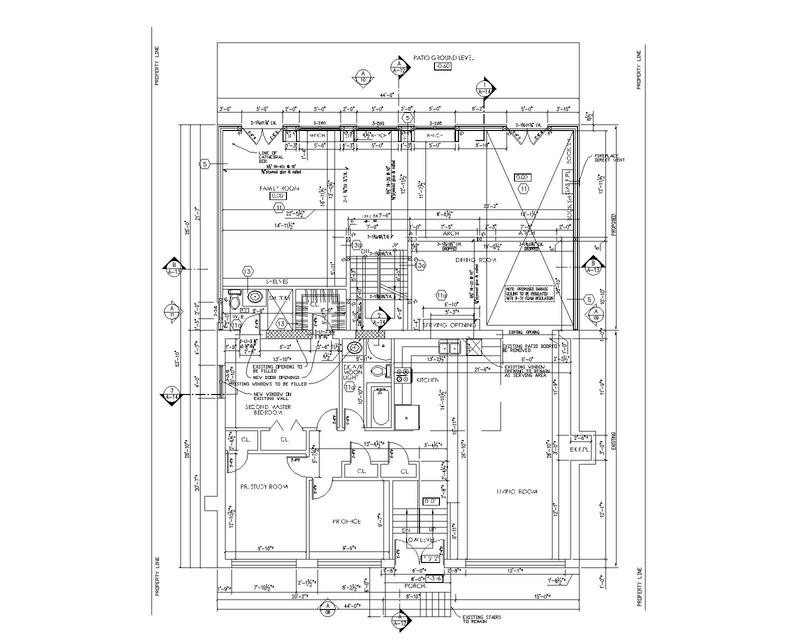
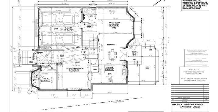
In this particular case, we added over 1000 square feet to the first floor to reflect the trend of open concept living and to accomodate family room, adjoining dining room and the breakfast area. The same colours and theme were kept throughout these spaces. This made the rooms feel connected, calm and serene.
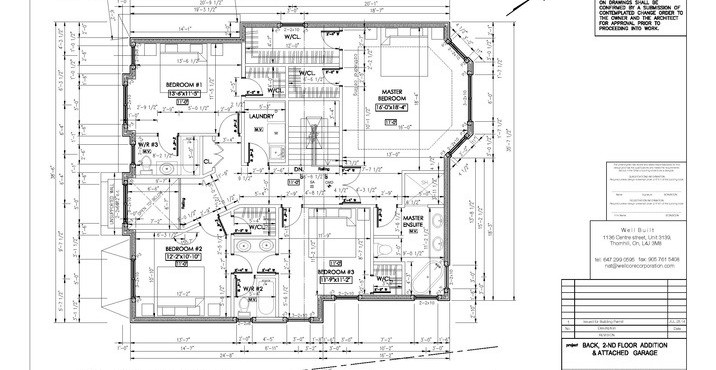
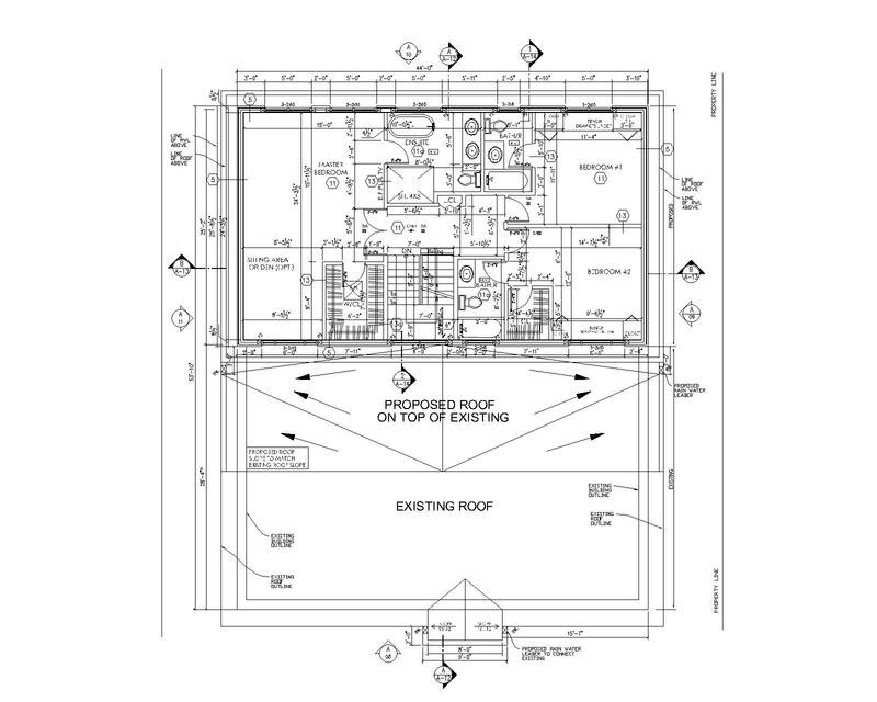
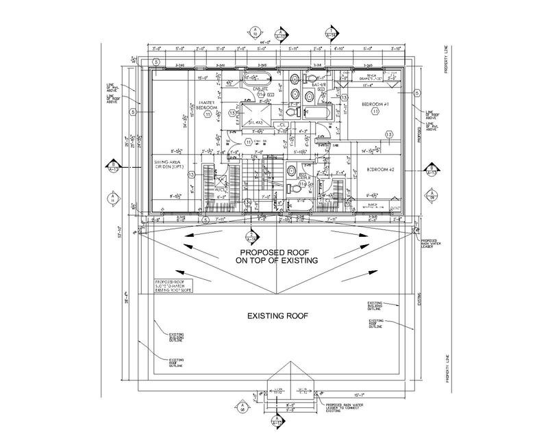
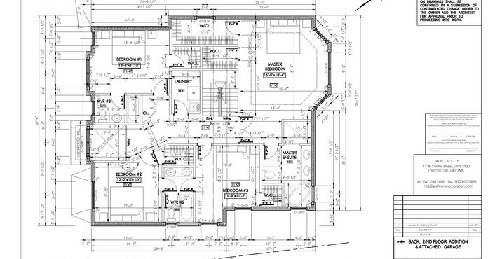
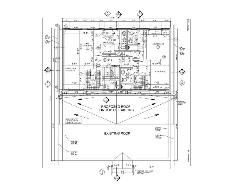
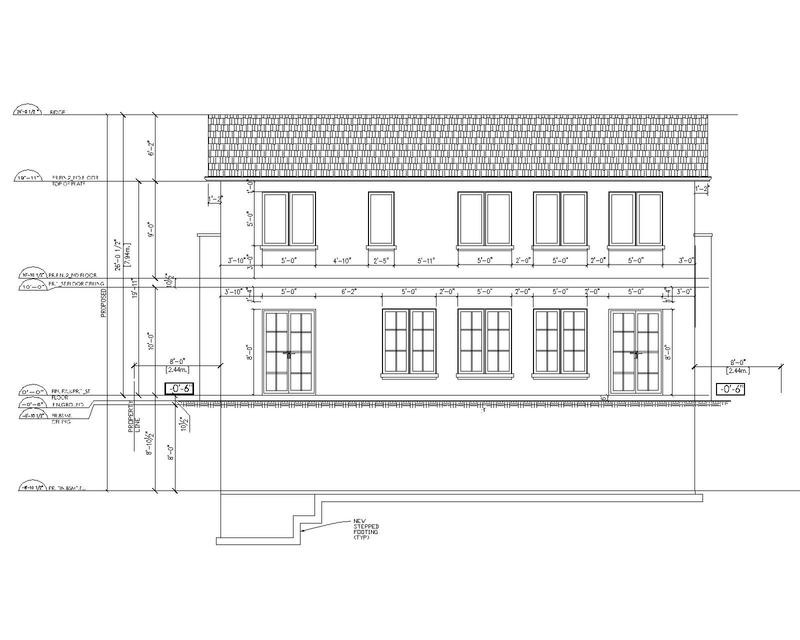
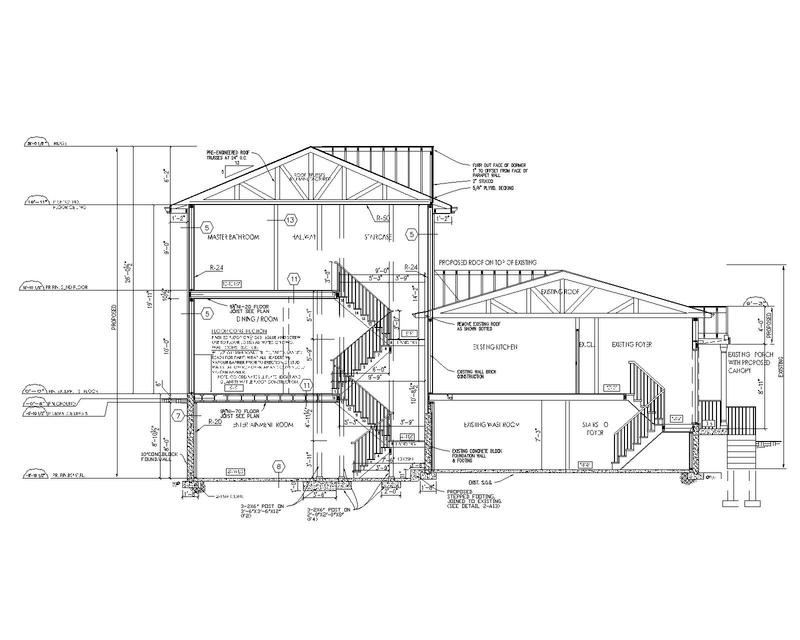
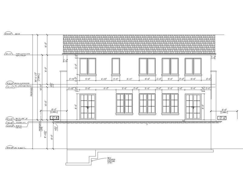
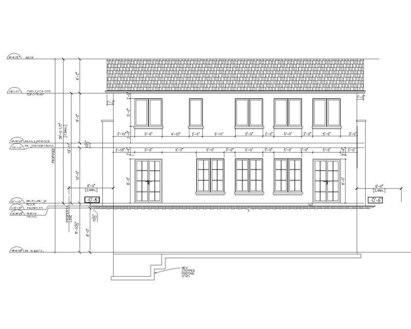
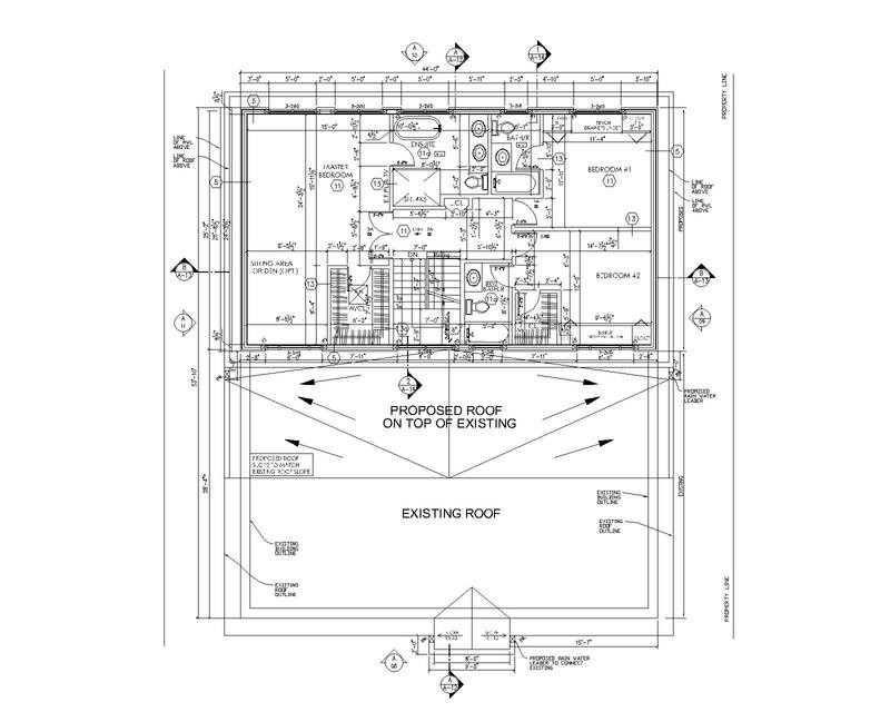
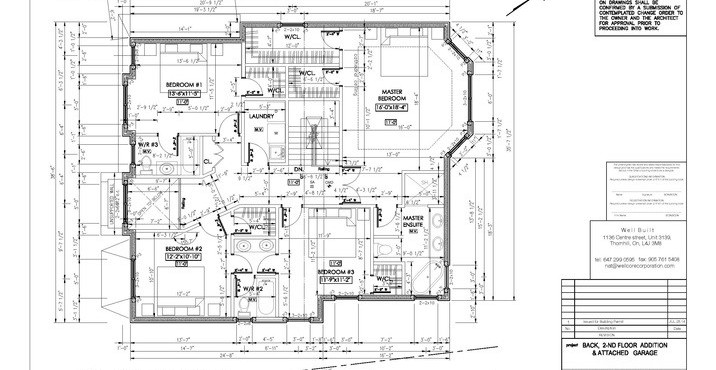
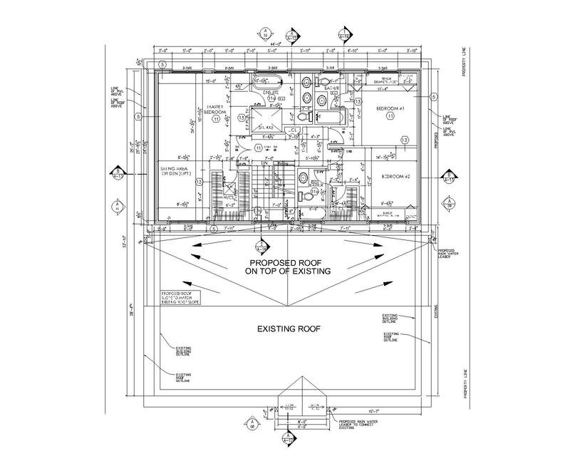
Second floor add-on built over the first floor addition boasts 3 bedrooms and a spacious bathroom for each of them. All bedrooms have plenty of storage space, including two generous in size walk-in closets.