

























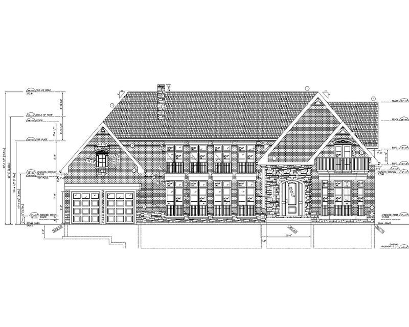
Project: New 2 Storey Dwelling on existing foundation walls
Area: King City
Old house: 3 Bed, 2 Bath, 2,089 sq. ft. one storey house
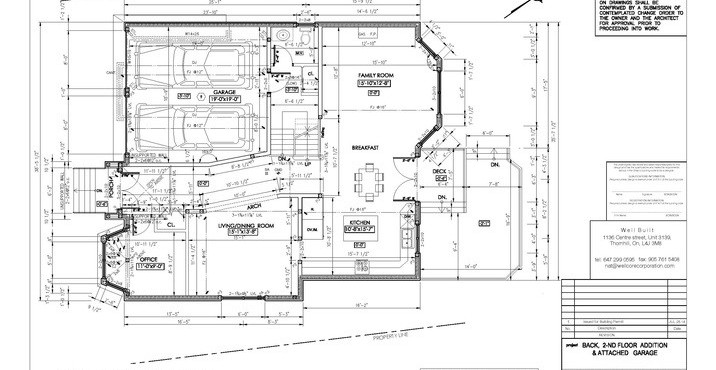
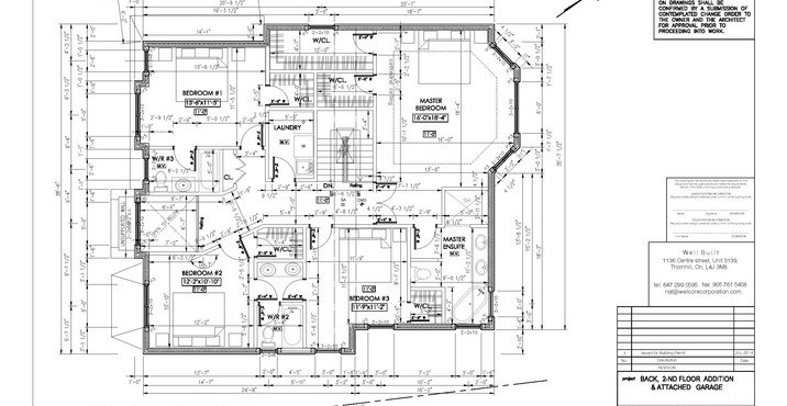
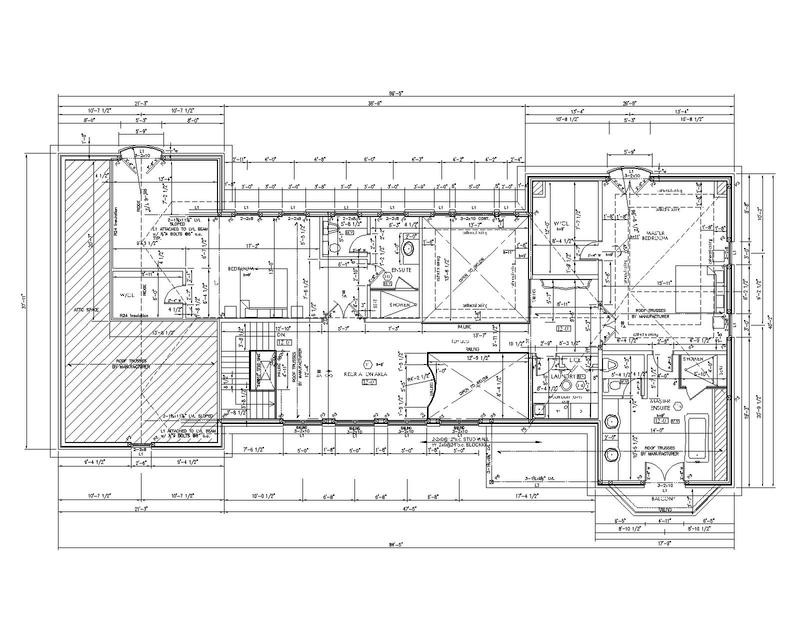
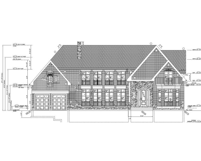
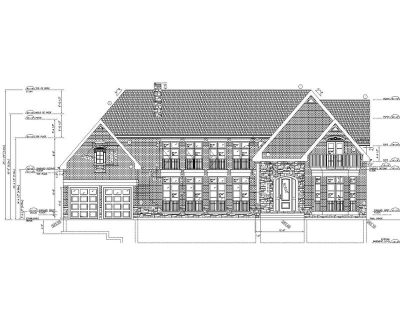
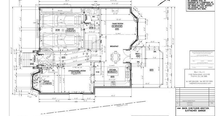
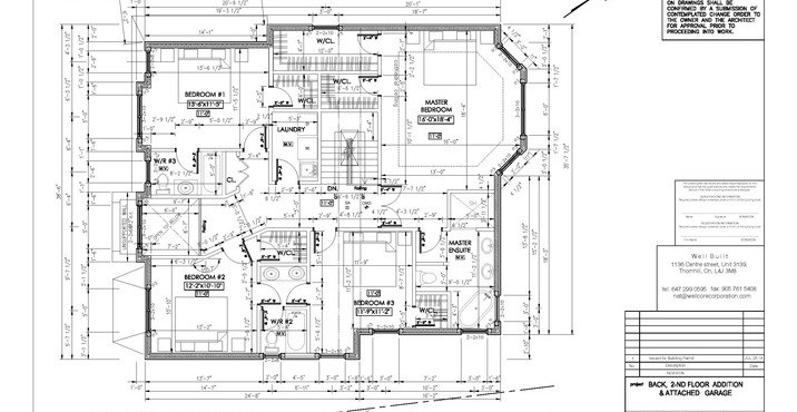
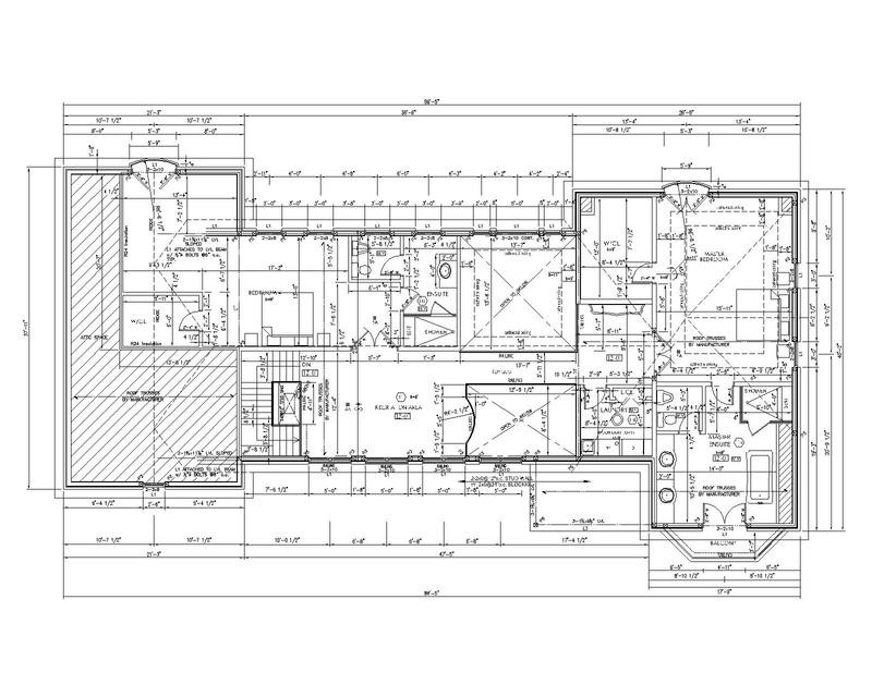
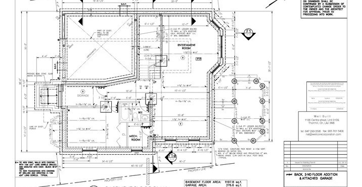
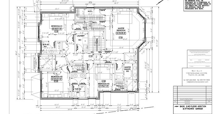
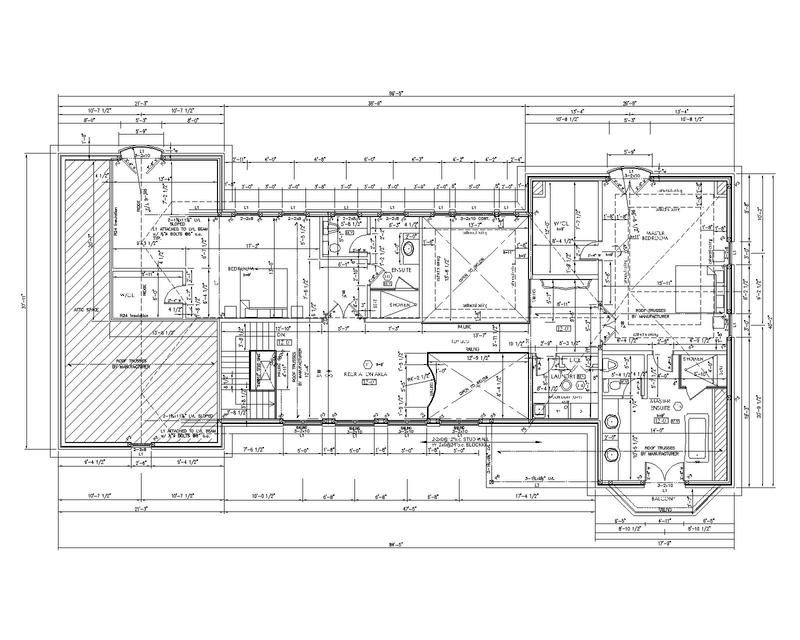
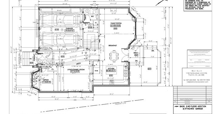
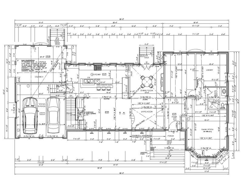
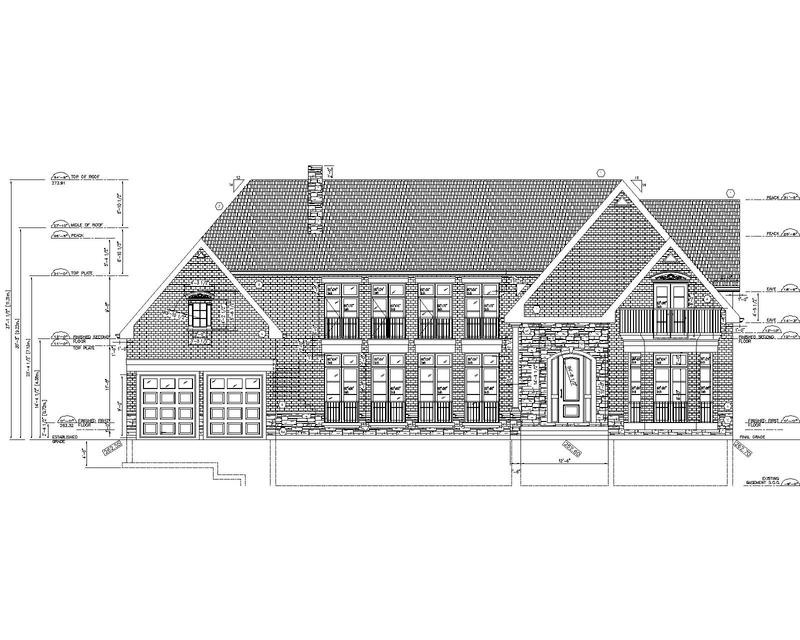
New House: 3 Bed, 4 Bath, 4,530 sq. ft. two storey brick dwelling
Time to obtain permits: 4 months
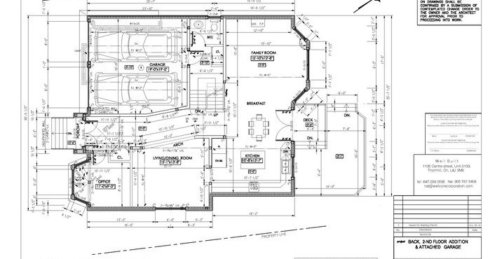
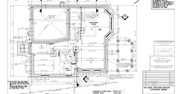
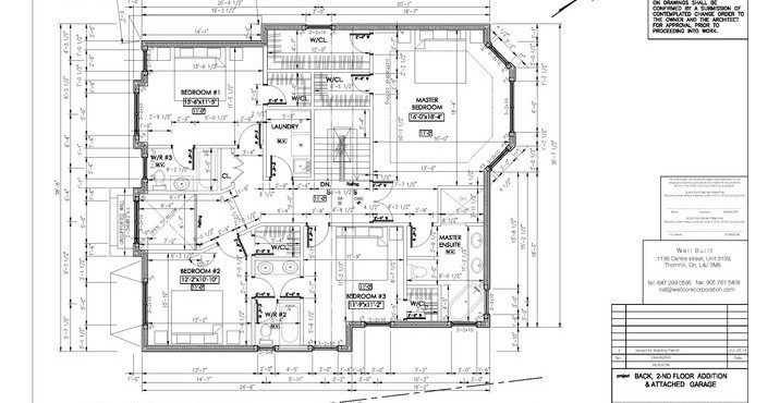
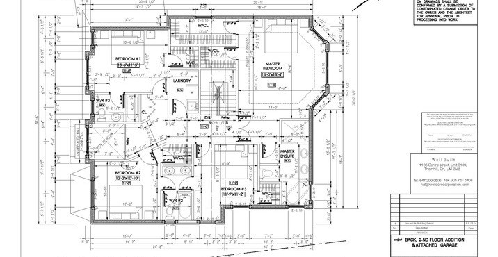
Project Description
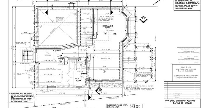
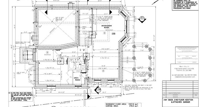
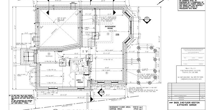
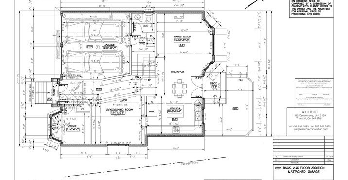
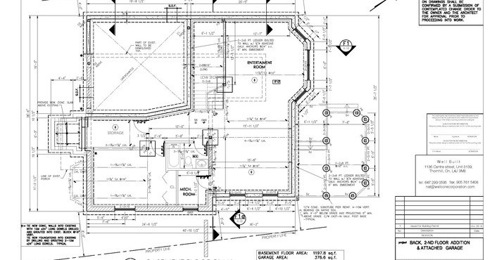
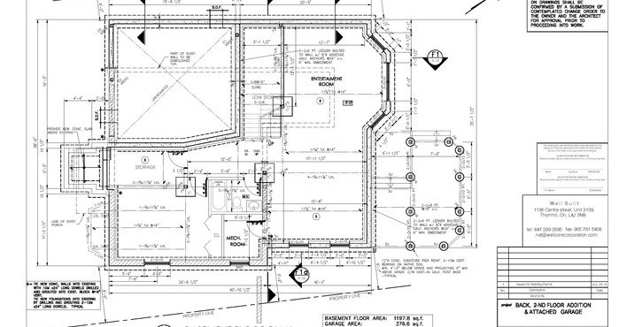
More and more in our residential design-build work, we’ are reusing existing foundations. Even some of our projects that look like brand new homes have actually reused the existing concrete of a previous home on the site. There are a lot of important reasons for doing so, but the most important one to concider that is is cost effective. Keeping the foundation saves more than just the cost of the concrete. It eliminates expensive phases like earthwork and items like exporting soil.
Because the extent of work is reduced, often times, the permit scope will also diminish. In our case, the permit even was considered an “addition” rather than new construction.
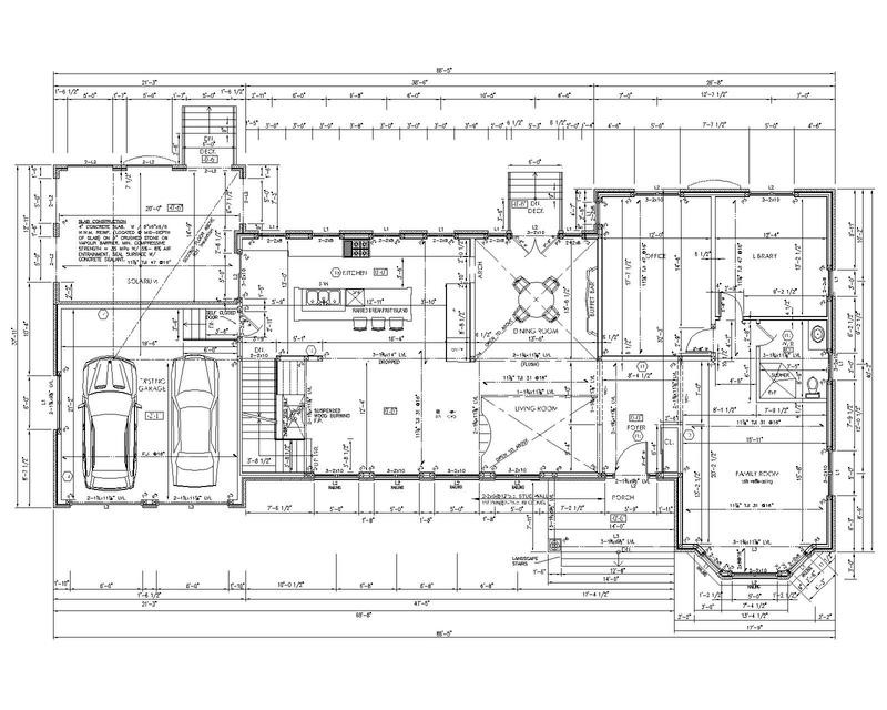
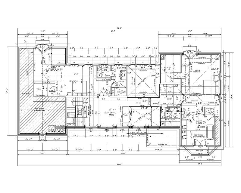
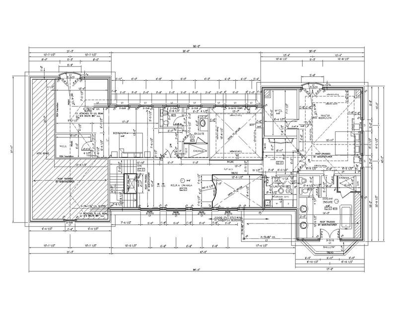
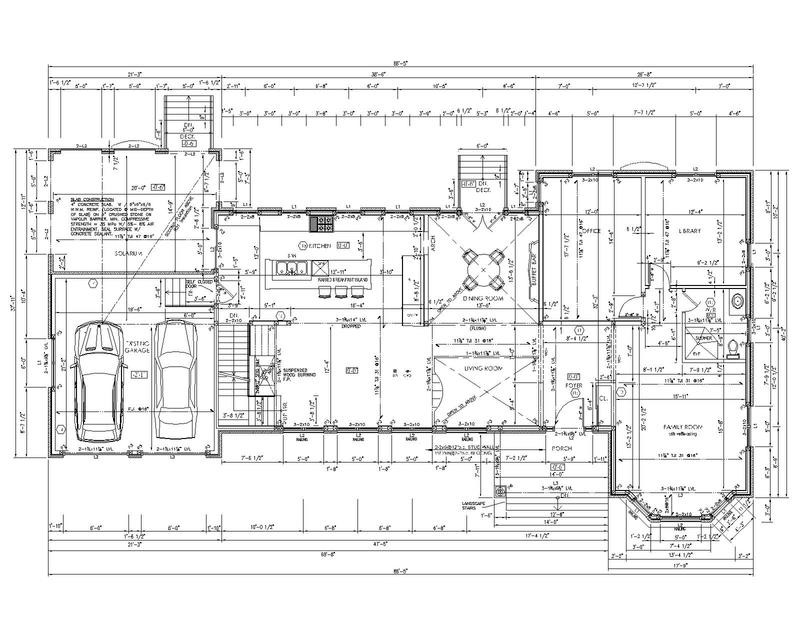
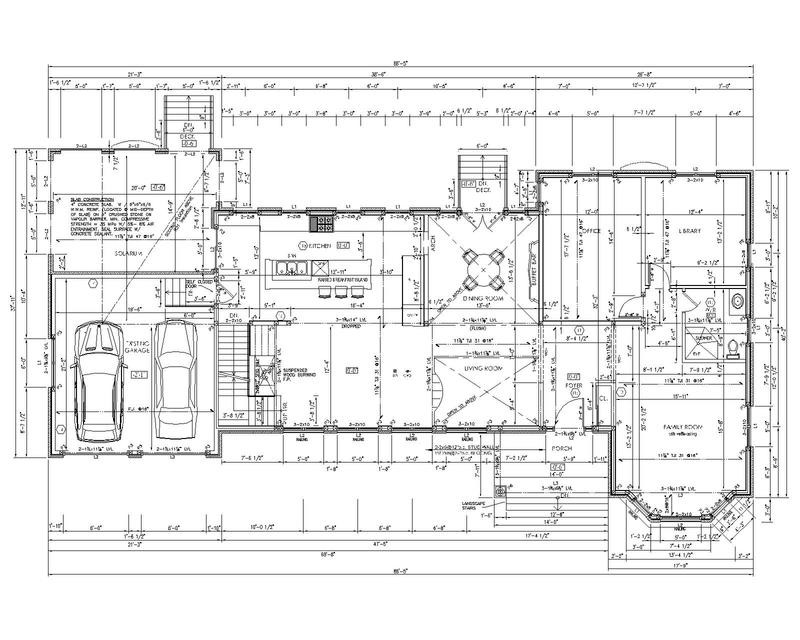
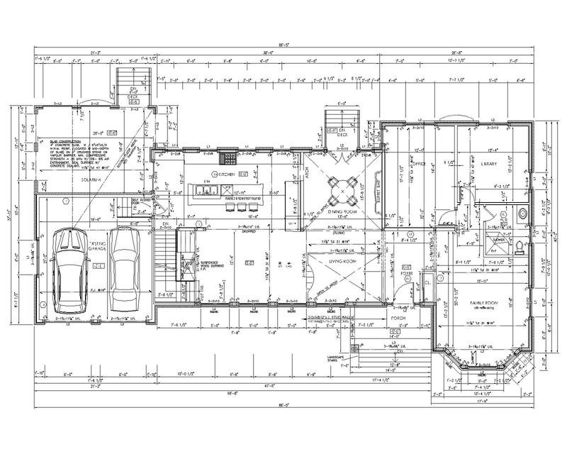
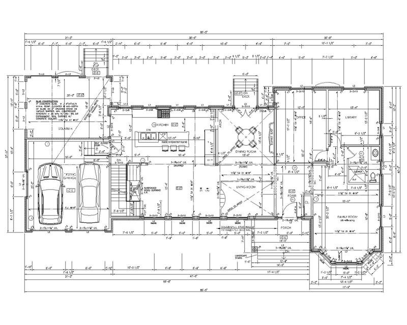
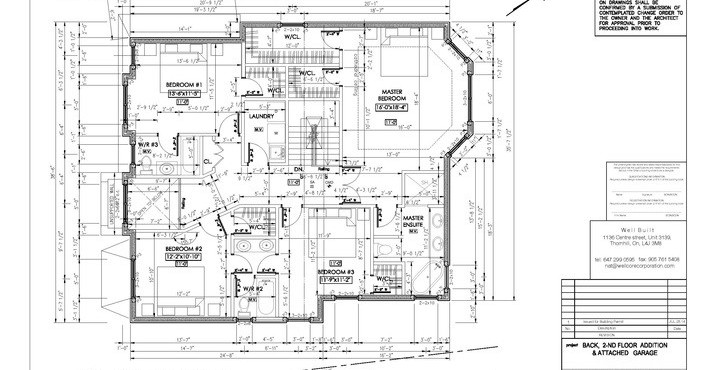
An existing foundation gave the homeowners and our designer a defined envelope to work within. Because the footprint has been already set up, the homeowner knew exactly what changes in the first floor layout were required, and the design process was going smoothly and expeditive.
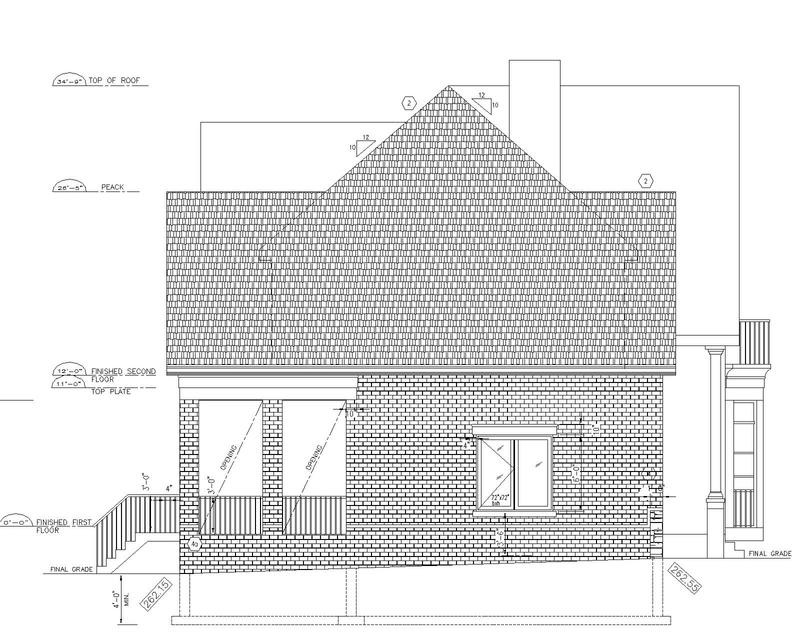
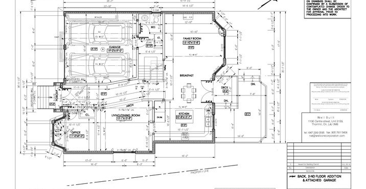
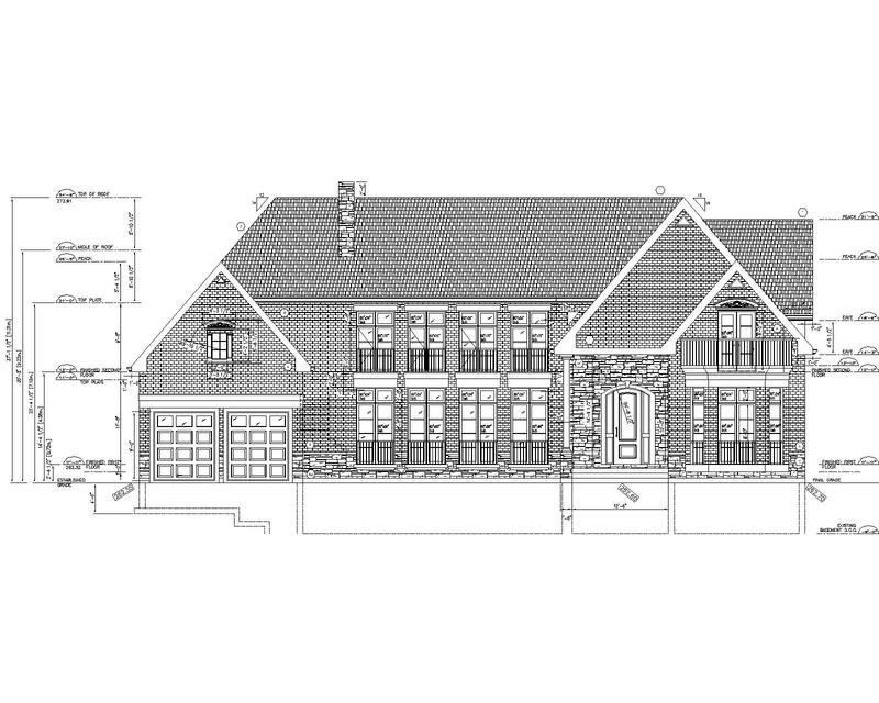
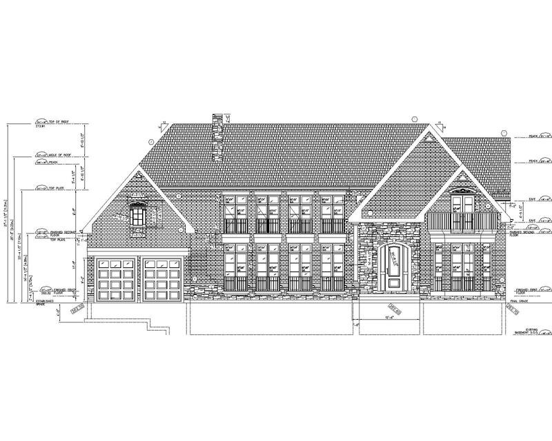
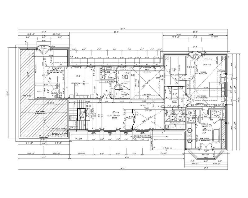
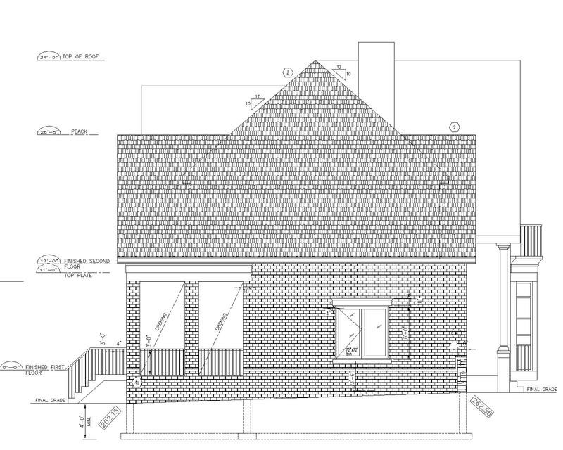
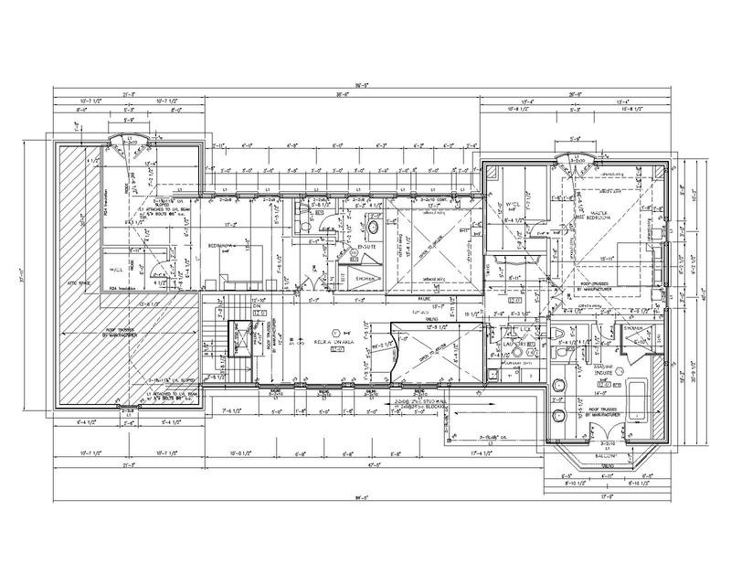
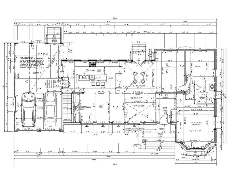
The project features classic victorian design in suburban settings. Spacious entryway was designed on central stage. Large windows provide plenty of natural light and bring the views of natural world in. Stylish waffle ceilings and classical trims add a level of uniqueness and a sense of harmony between exterior and interior appearance.