









Project: 2 Storey Side Expansion
Area: North York
Old house: 4 Bed, 3 Bath, 1,890 sq. ft. sub-division house
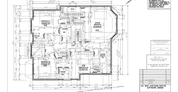
New House: 4 Bed, 4 Bath, 2,325 sq. ft.
Time to obtain permits: 5 months
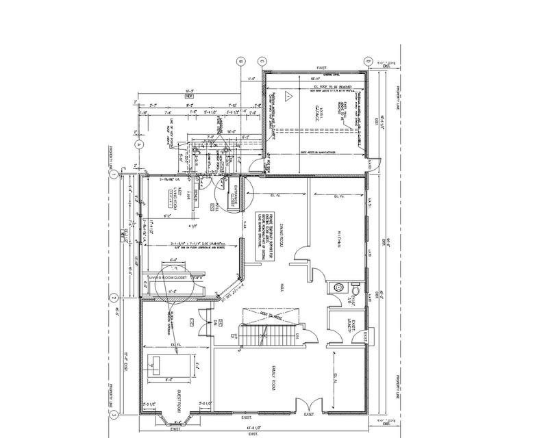
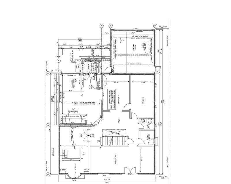
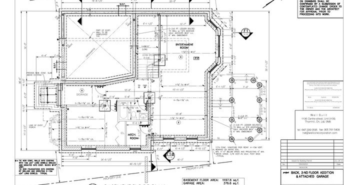
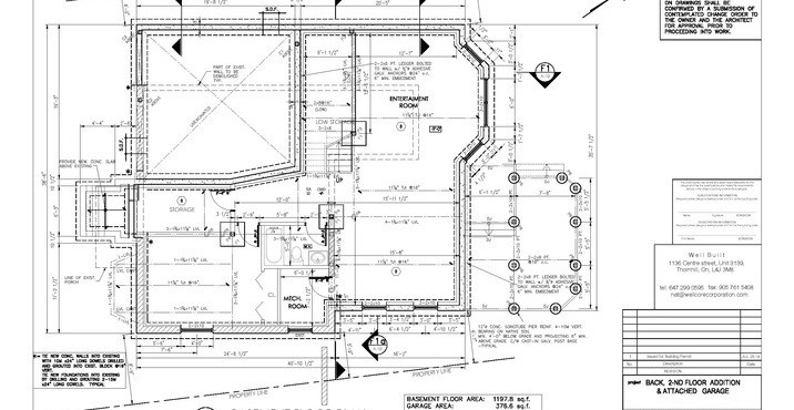
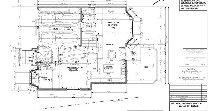
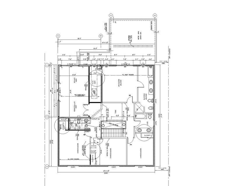
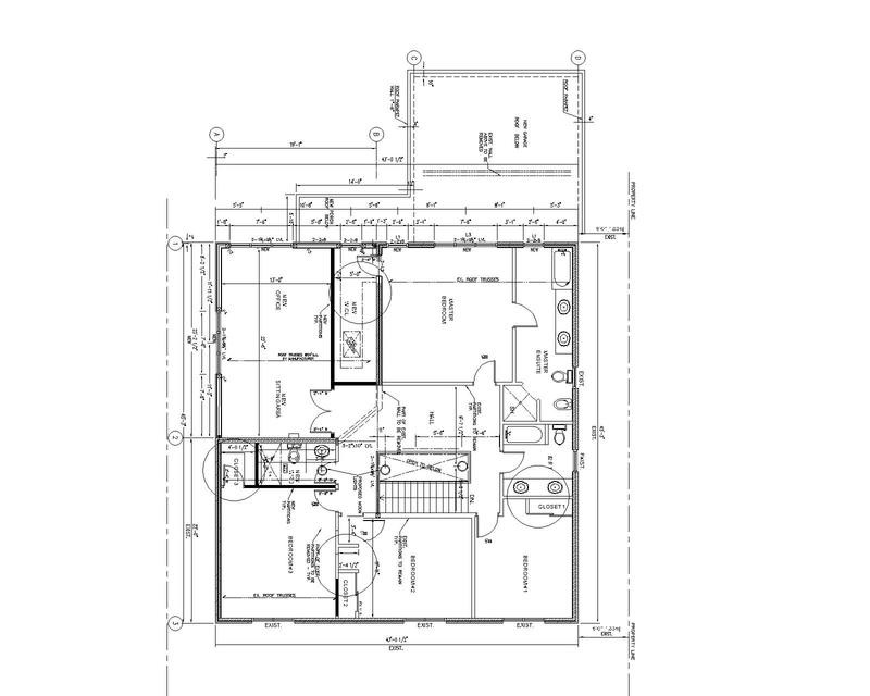
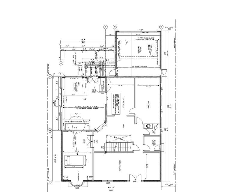
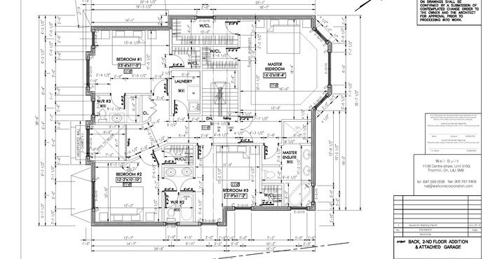
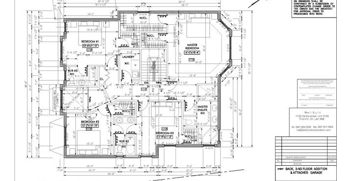
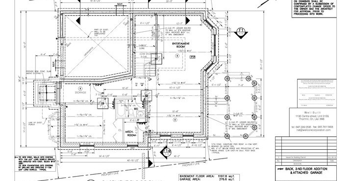
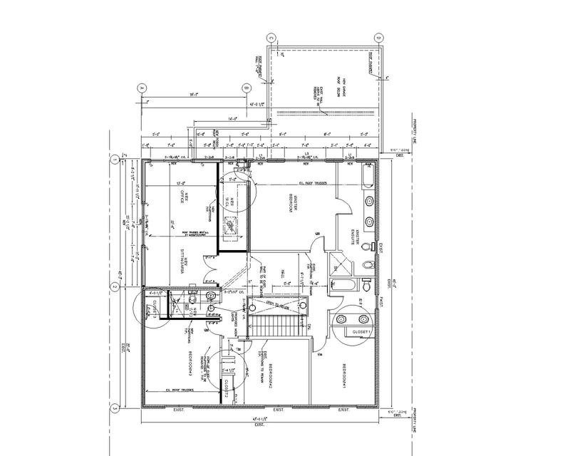
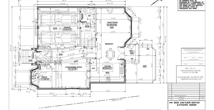
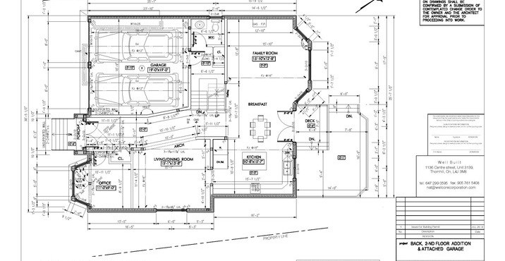
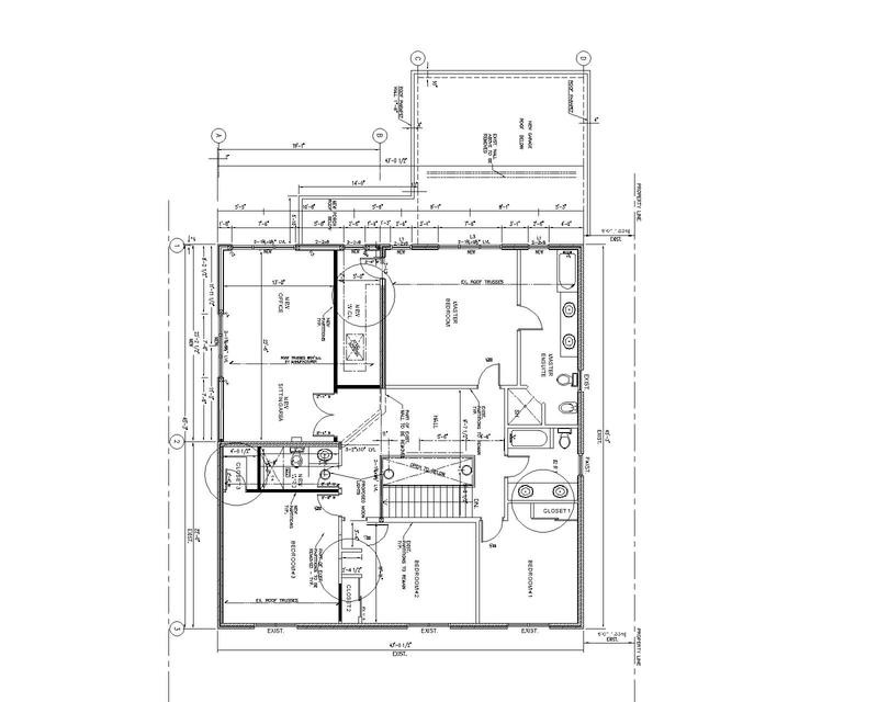
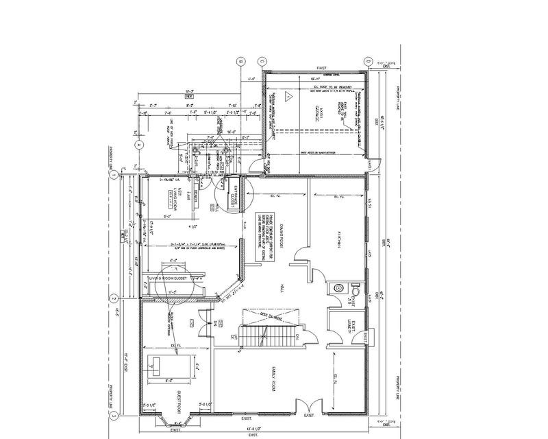
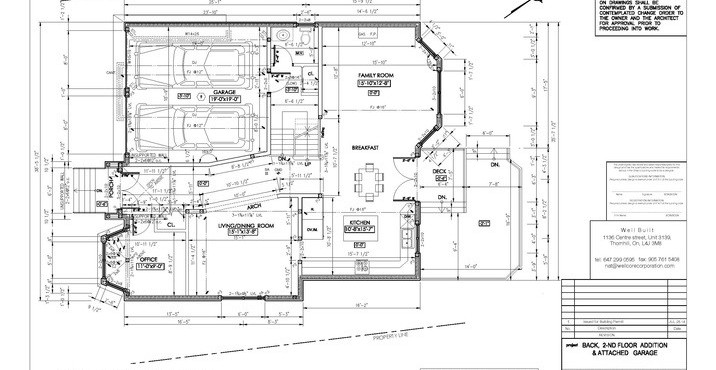
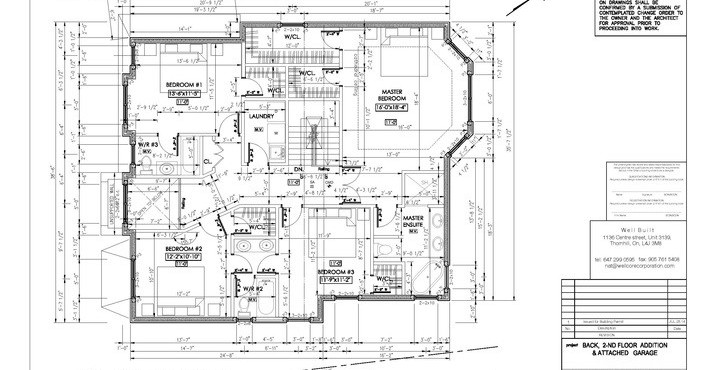
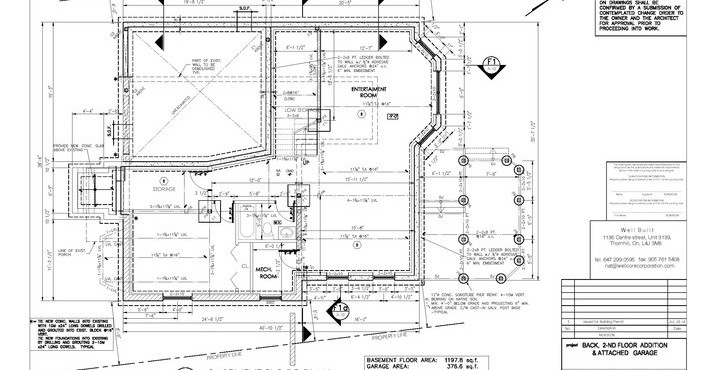
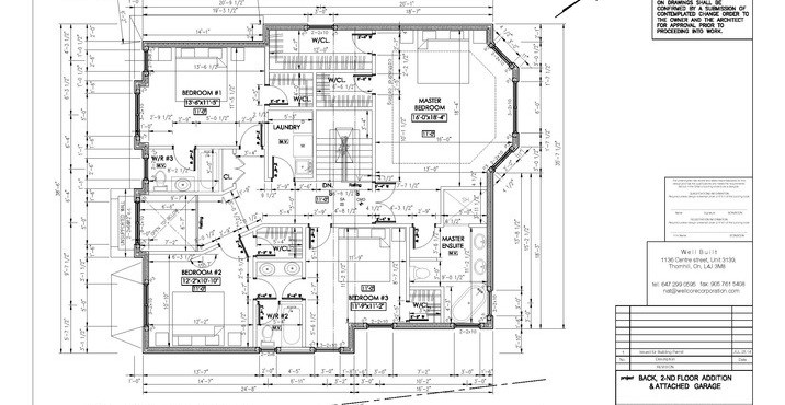
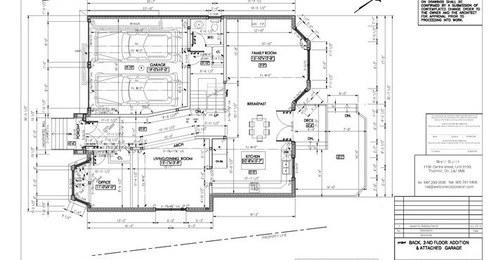
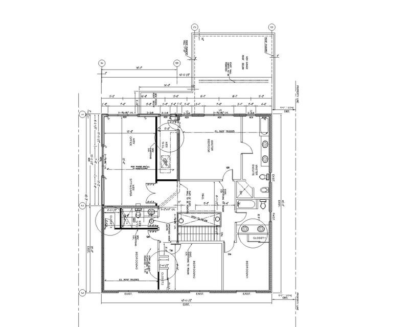
Project Description
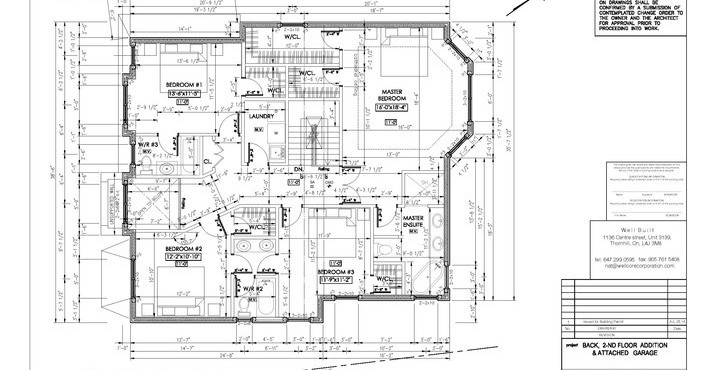
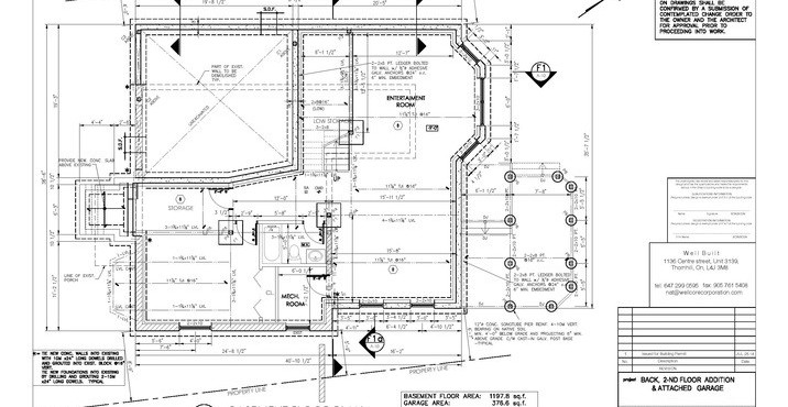
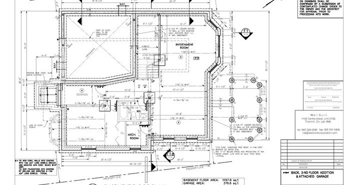
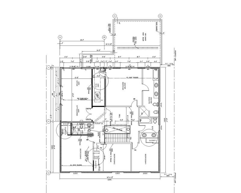
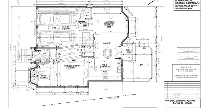
2 Storey full room addition (add-on rooms stack on each other) is a generous solution to that age-old conflict of extra space and money. As simple as it seems, addition tacked onto the side of the house, still needs detailed research and planning to be done: Does it need the permission from Committee of Adjustment? Will the homeowner have enough back or front yard left over? Does the existing heating system have the capacity to handle the addition?
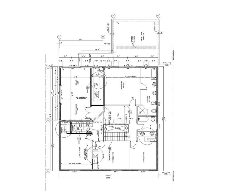
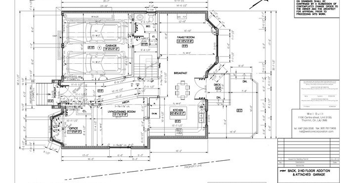
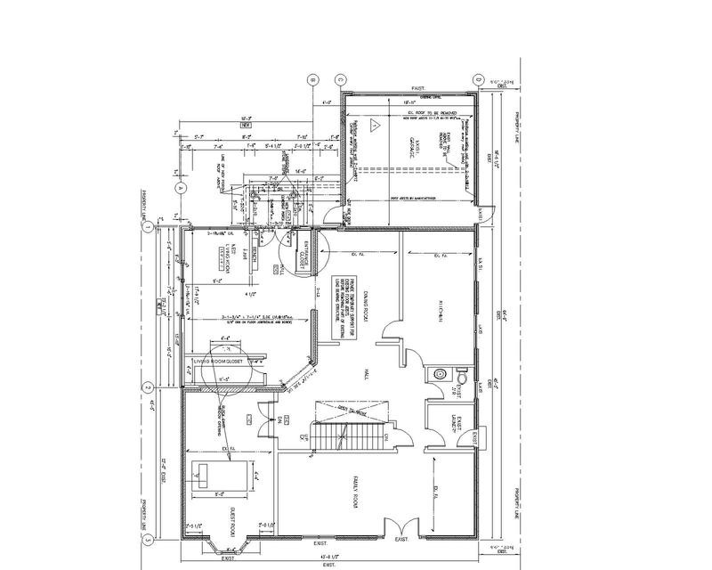
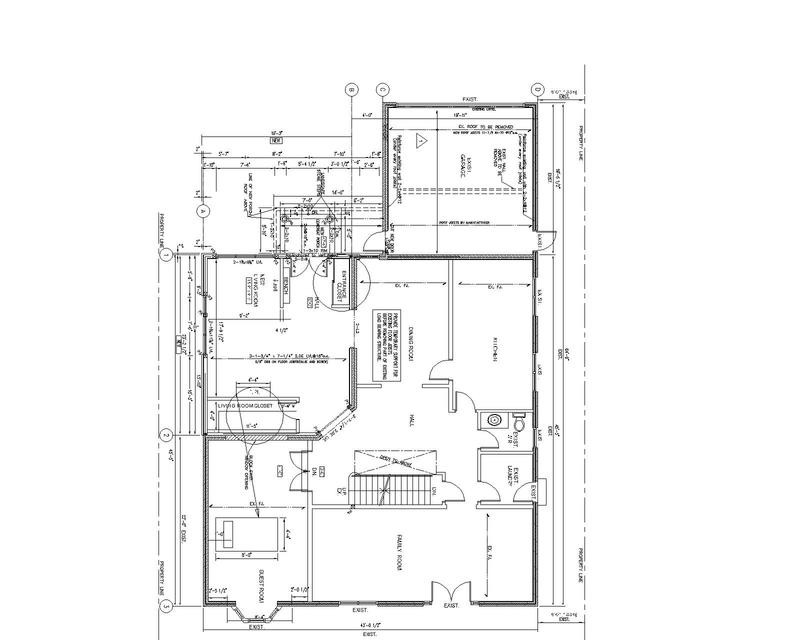
In this particular case, the homeowner needed a spacios office (the old office room was converted into the bedroom long time ago, as the family grew).
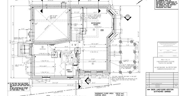
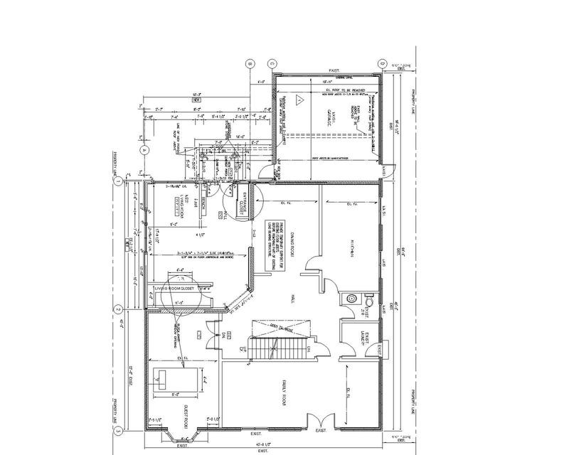
A right side 2-storey wing, total of 435 square feet of extra living area, was added to this sub-division house. The space, which was previously used for the traditional style front porch, was effectively converted into the warm and welcoming living room with walk in closet on the first floor and a comfortable and large office with panoramic windows on the second floor. The facade of the house was revamped: brick exterior was replaced with sleek and contemporary stone veneer and stucco.
Thoroughly designed with care and attention to details, this addition was developed and built without disrespecting the original house.