Projects

Featured Projects // View all

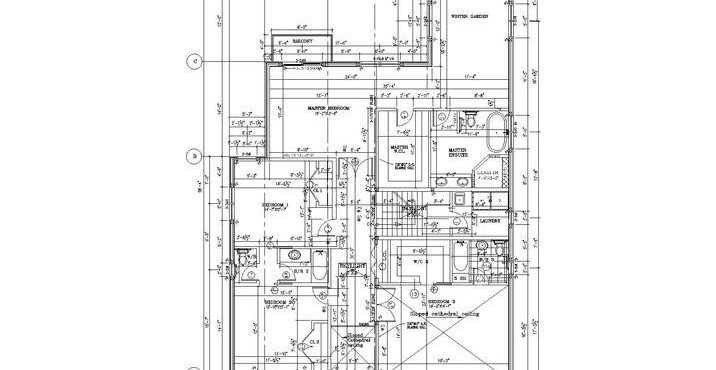
Second Floor Addition, Rear Addition

By: Well Built House Corp

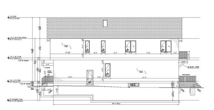
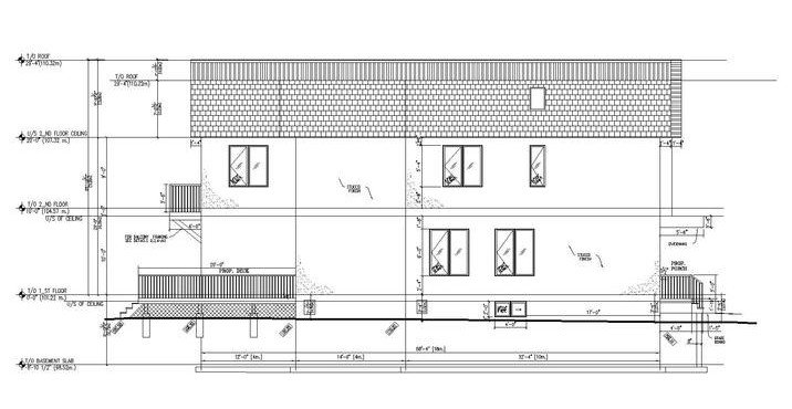
Second floor and rear addition project converted a little bungalow into a contemporary custom home w

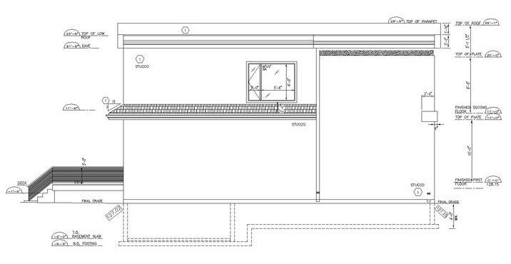
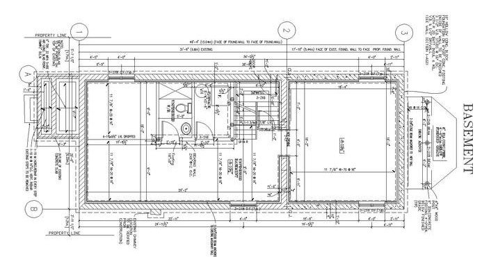
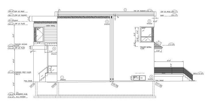
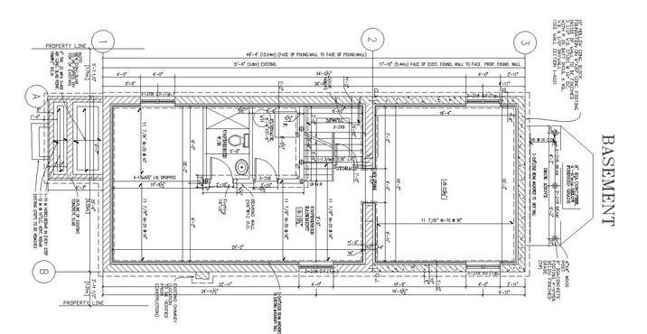
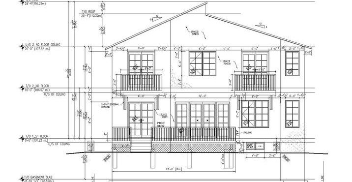
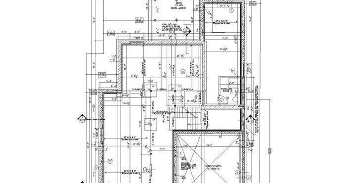
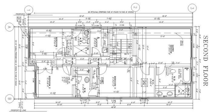
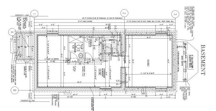
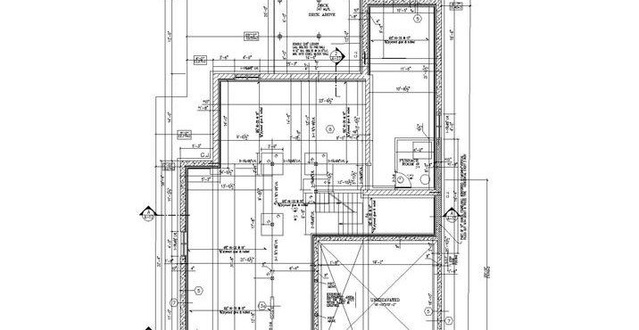
Second Floor Addition, Rear Addition, Finished Basement

By: Well Built Architecture Bureau

Bungalow in the highly desirable and demanding neighbourhood boasts a large back and second floor ad

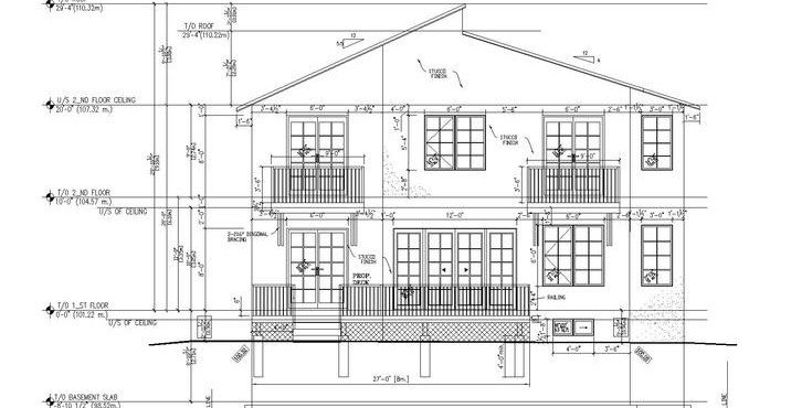
2 Storey Residence

By: Well Built Architecture Bureau

New Custom Built Home featuring sleek design, contemporary clean lines and earthy shades of colour i

Contact Us

Request a Quote

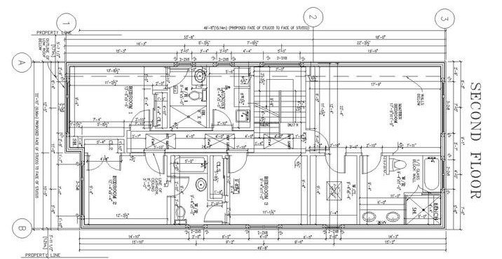
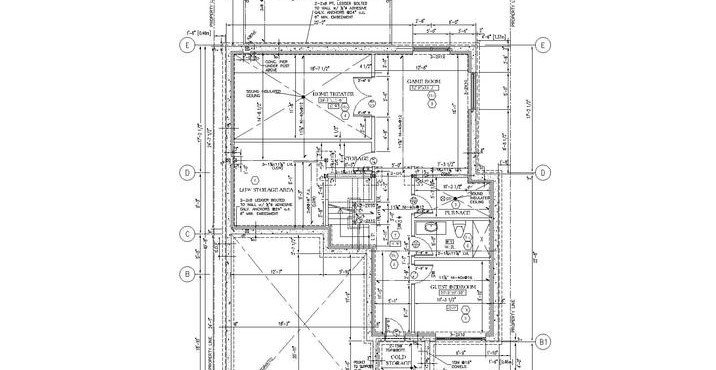
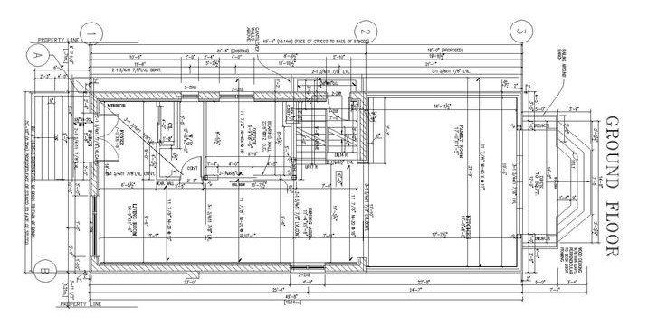
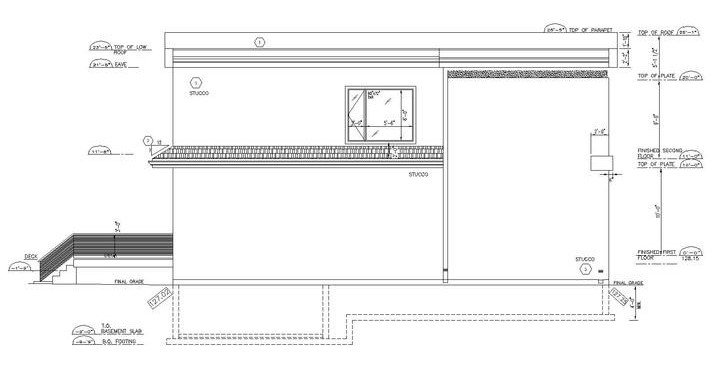
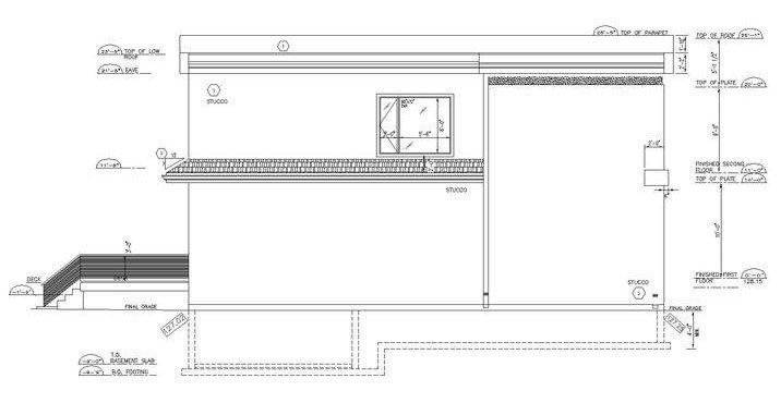
New Custom Home

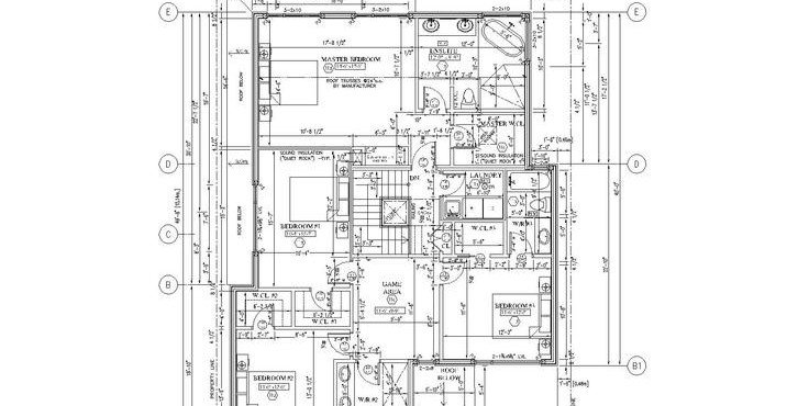
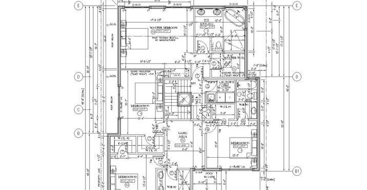
2 Storey Residence

Birchcliffe - Cliffside

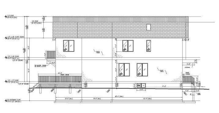
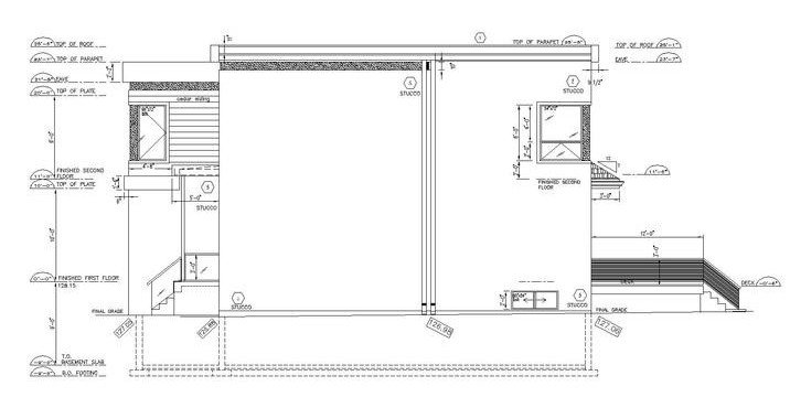
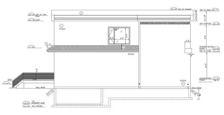
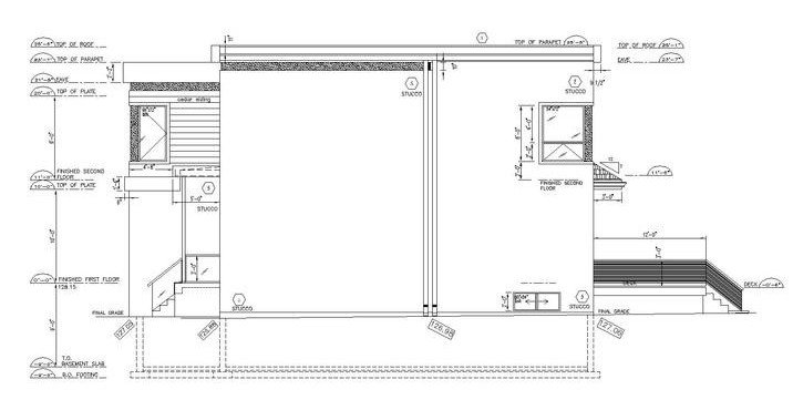
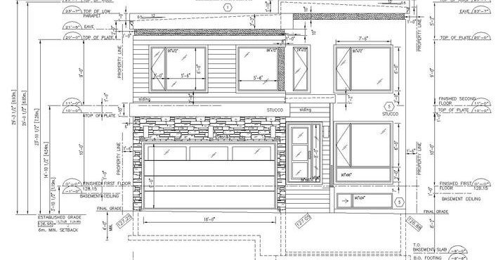
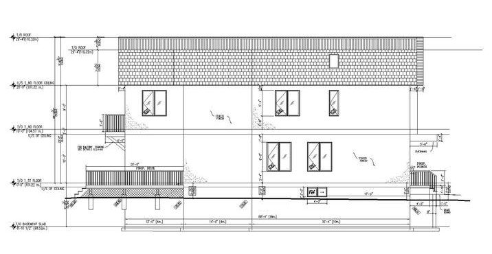
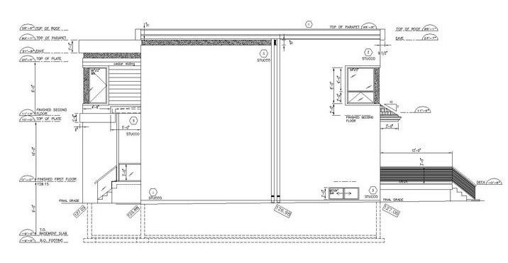
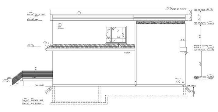
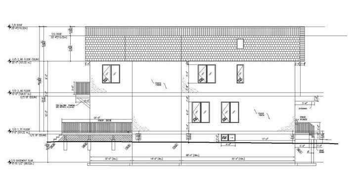
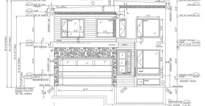
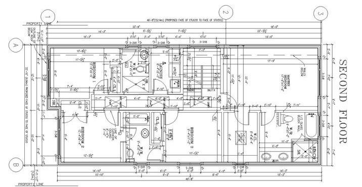
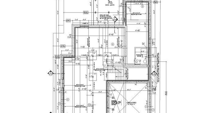
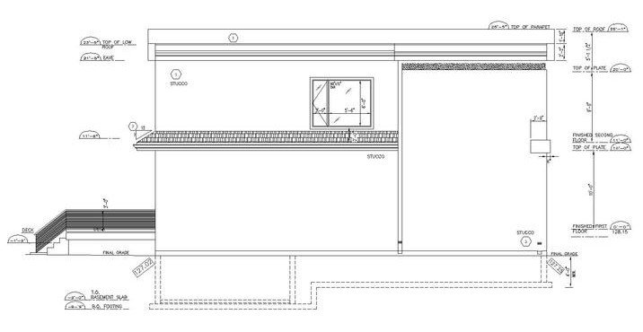
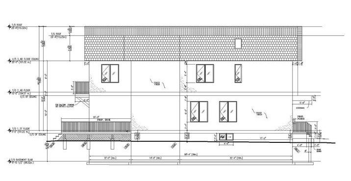
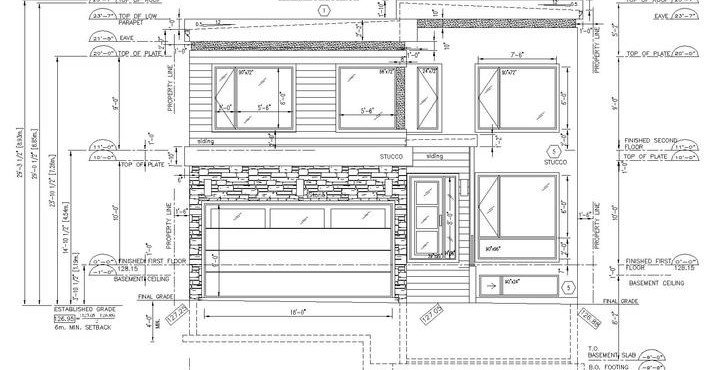
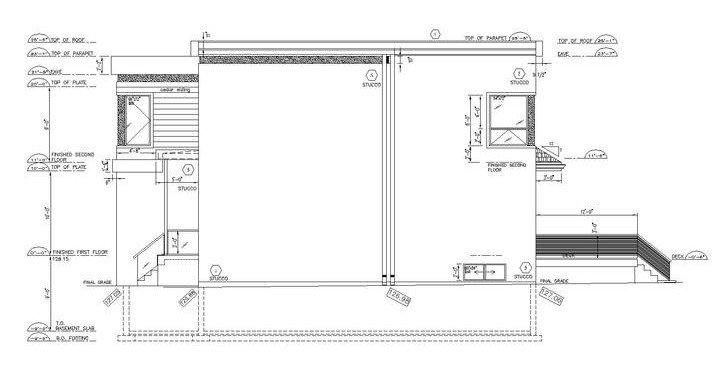
New Custom Built Home featuring sleek design, contemporary clean lines and earthy shades of colour in exterior finishes. Flat roof is the special feature of this project. The reason to use the flat roof, rather than a pitched one, is largely aesthetic. However, from the practical point of view, it also maximizes the available upstairs space. Other custom upgrade for this project was the radiant heated floors through the entire house, a highly efficient way to heat a house, increasing comfort as it reduces energy cost.

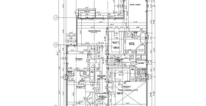
This project is another example of the quality built housing, which pairs customization and affordability.  This home has many exciting custom features, like spacious master bedroom with spa like ensuite, custom designed windows and beautiful entrance door, elegant combination of brick and stone veneer in the exterior finishes.

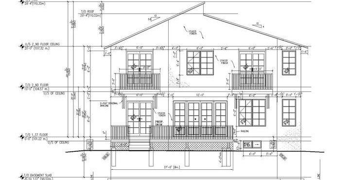
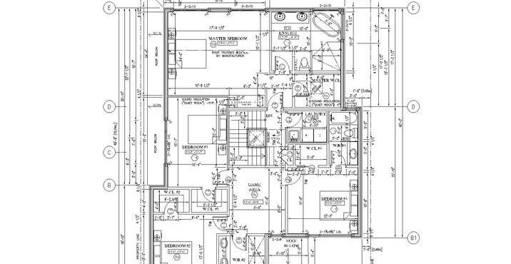
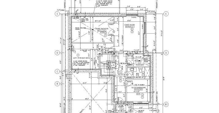
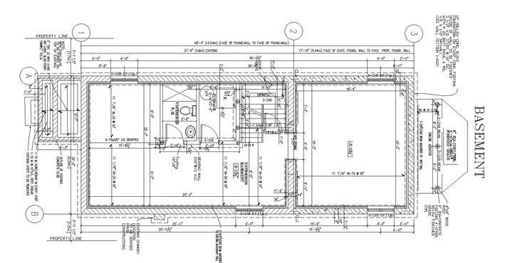
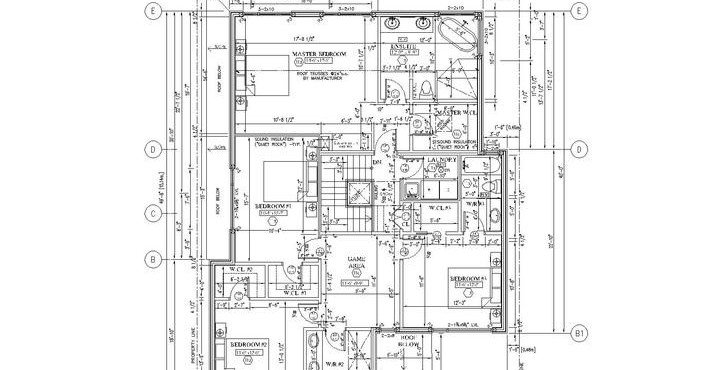
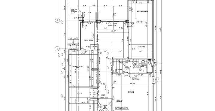
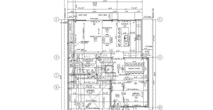
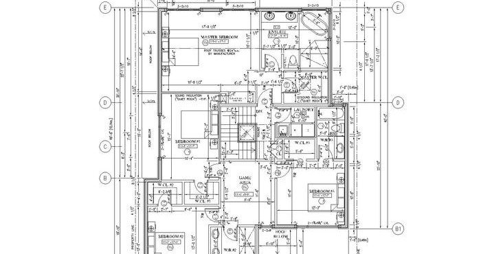
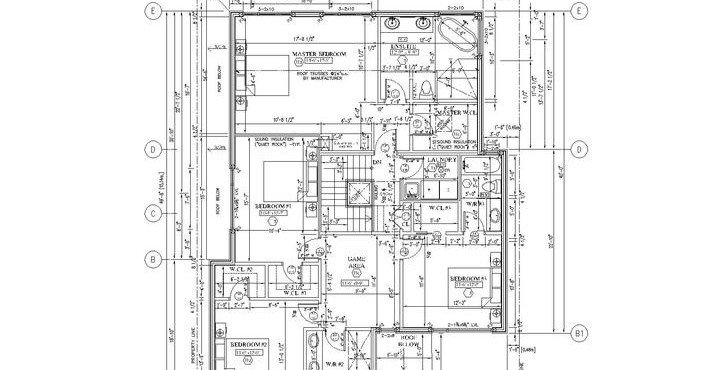
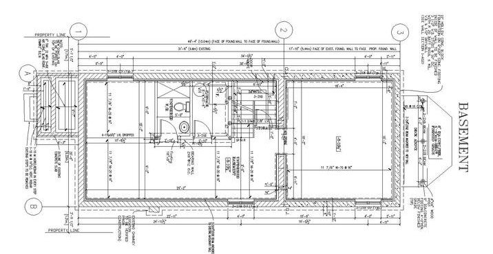
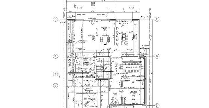
2 Storey Custom Home

Toronto, Newtonbrook West

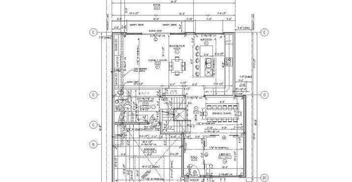
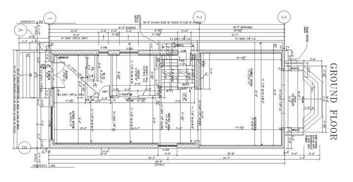
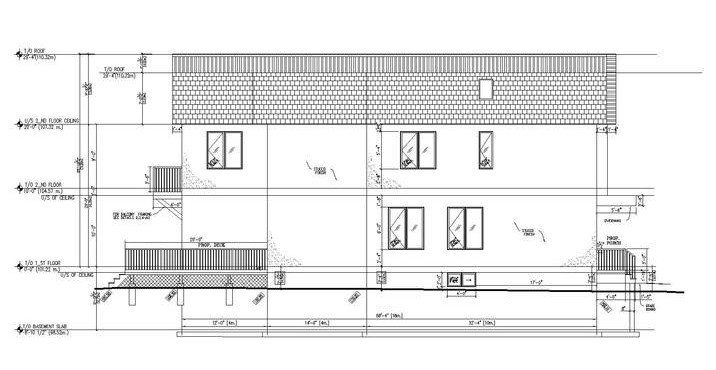
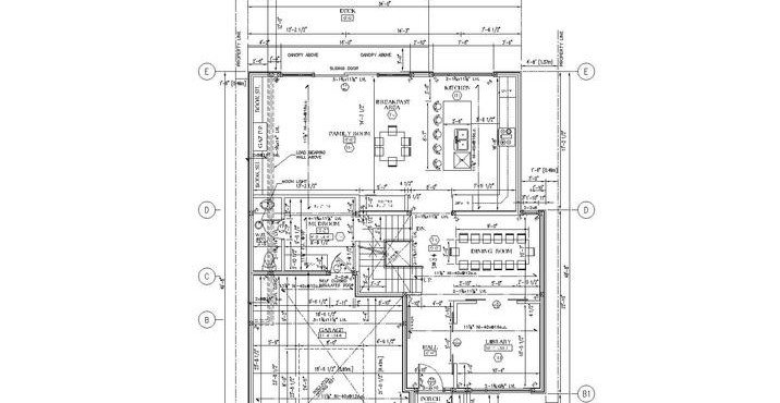
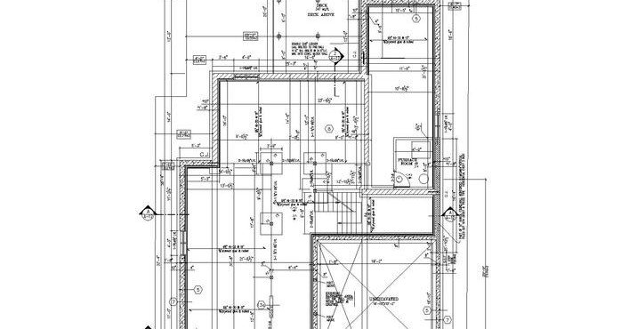
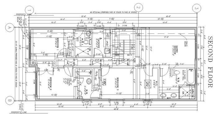
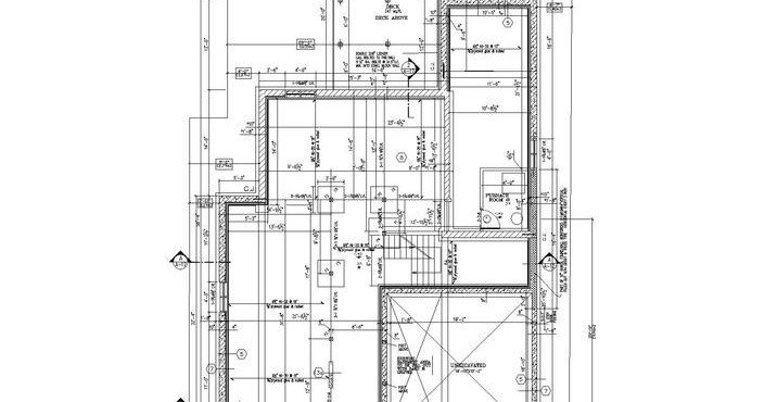
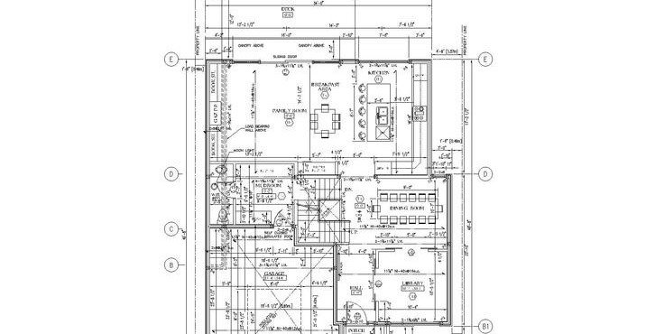
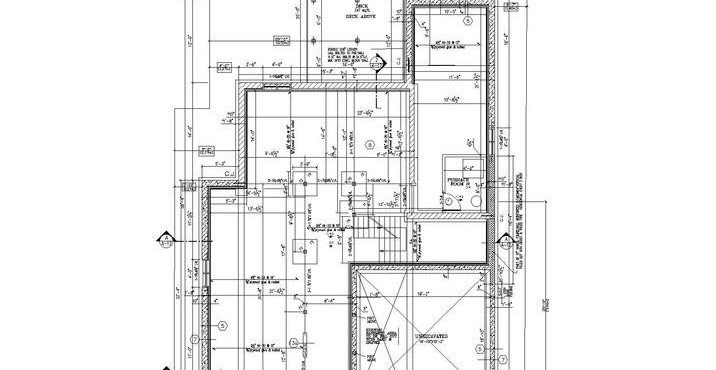
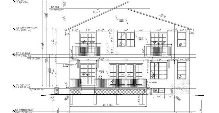
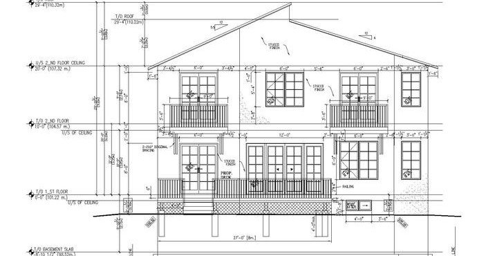
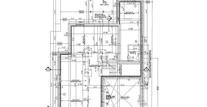
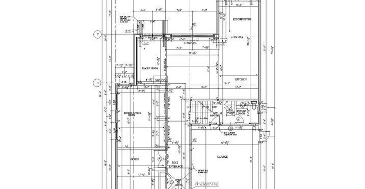
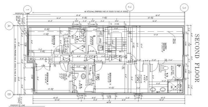
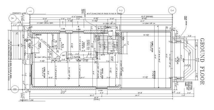
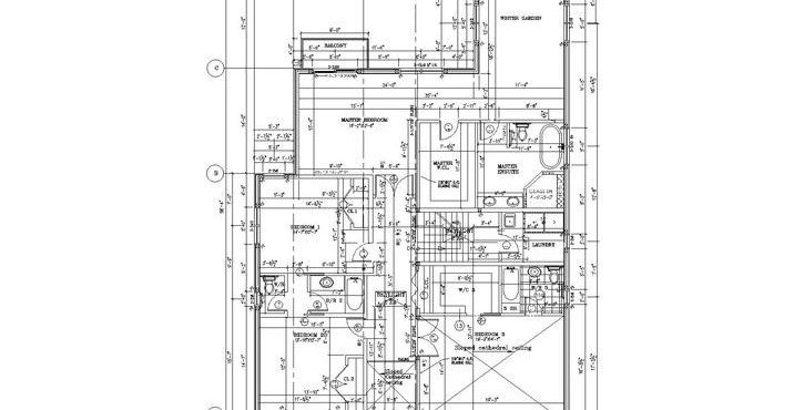
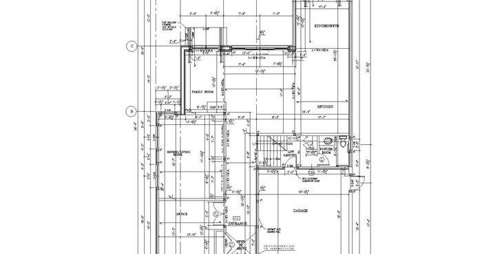
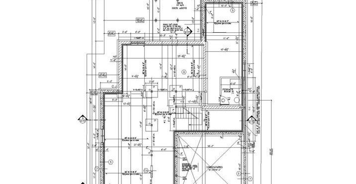
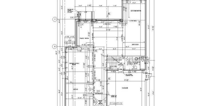
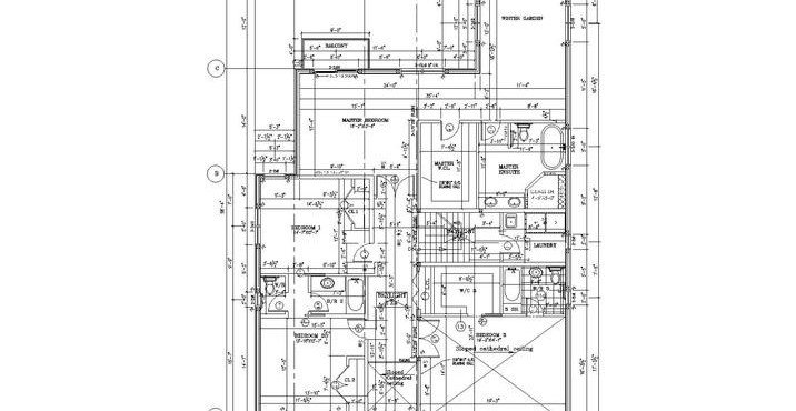
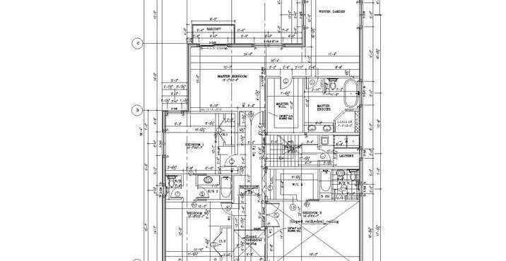
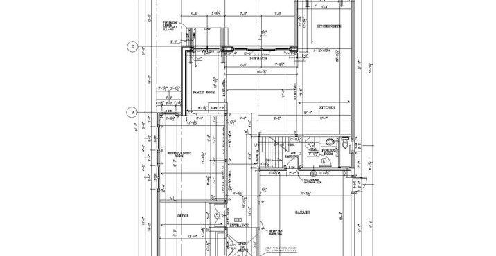
We developed a project of a custom built stucco with a touch of luxury stone veneer exterior finish elegant home in a prestigious sought after enclave of North York. Our project features first floor with 10' ceilings,  open to above elegant two storey foyer, immaculate sun-filled family room, combined with the gourmet kitchen; and the second floor with  master bedroom with spa like ensuite and  other 4 spacious bedrooms.

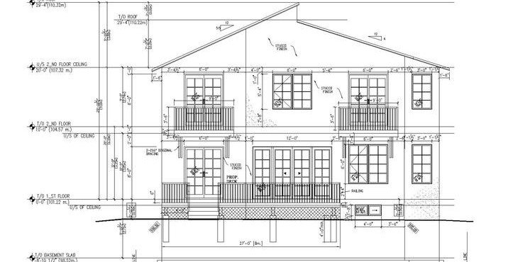
Nested in the heart of King City, this beautiful custom home is pleased to offer the ultimate in family living. The traditional forms of the sloped roof, keystones and windows mouldings compliment the architecture of the surrounding neighbourhood, while contemporary large windows, straight lines of garage doors keep design clean and simple.

This beautiful home overlooks the water from its perch on the shoreline. The design offers the warm comforting air of a cabin, while maintaining high quality contemporary aesthetics. We were able not only to create a project that fit perfectly into the lot, but also utilized all its special and unique landscaping characteristic to maximize future satisfaction by our customer.

The lot for the proposed house magnificently poised above the Credit River, was listed on the City's Heritage Register.  Prior to issuance of the building permit, we had to obtain the approval of the Heritage Committee. We developed a 2 storey project in the European-style which serve to define, maintain and support the historic character of the area.