















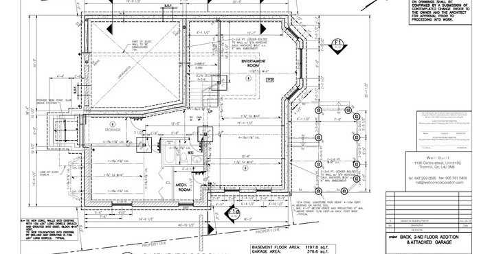
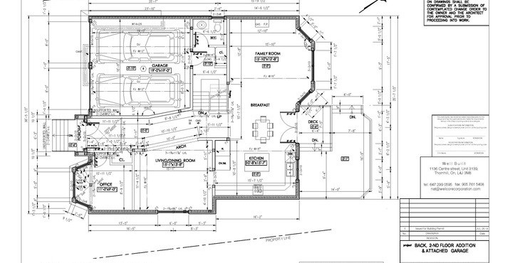
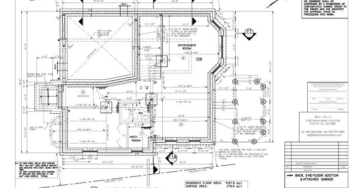
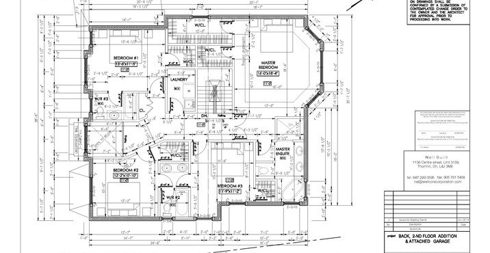
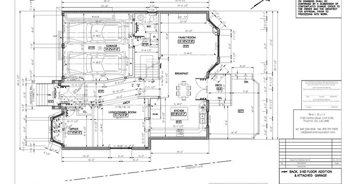
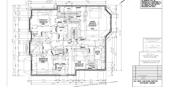
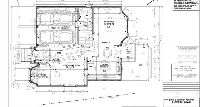
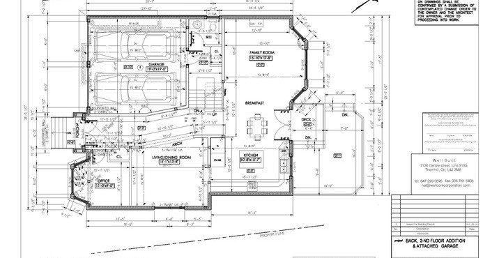
Project: 2 Storey Private Lakeshore Residence
Area: Innisfill
Old house: N/A
New House: 4 Bed, 5 Bath, 3,237 sq. ft.
Time to obtain permits: 8 months
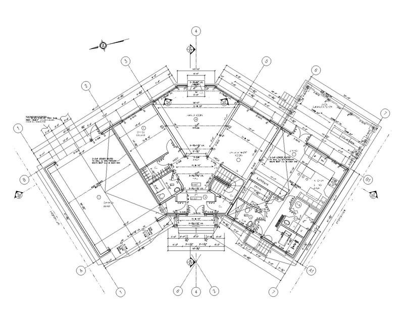
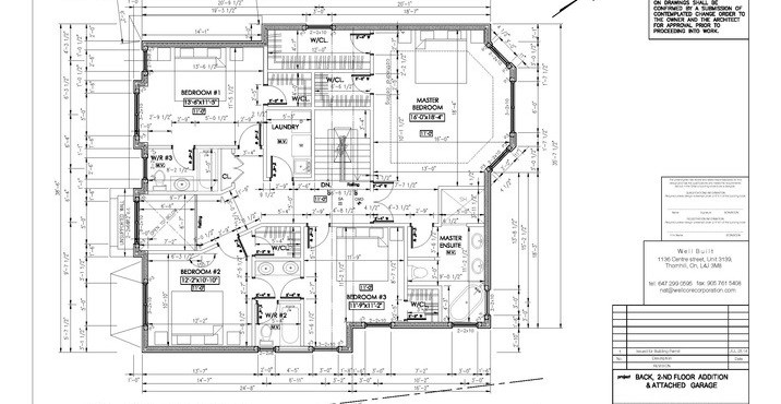
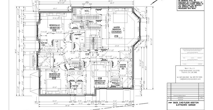
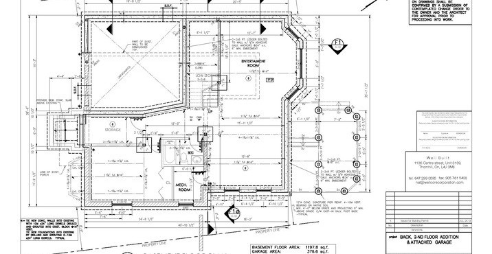
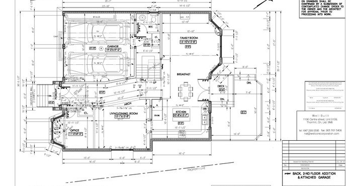
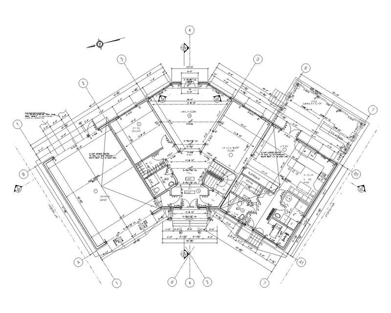
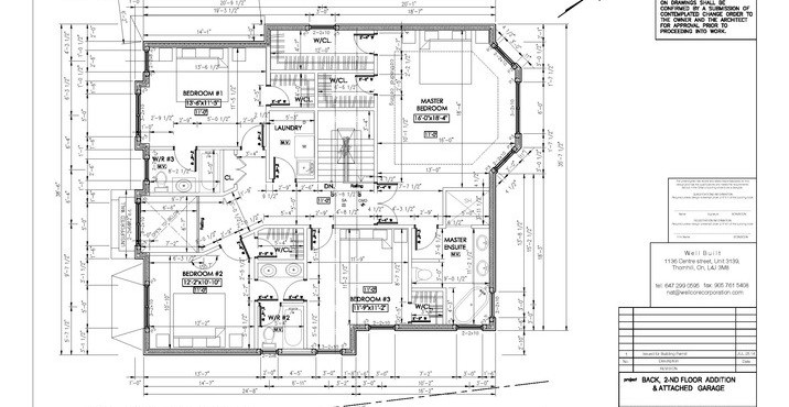
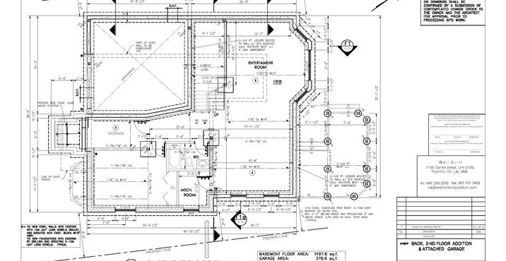
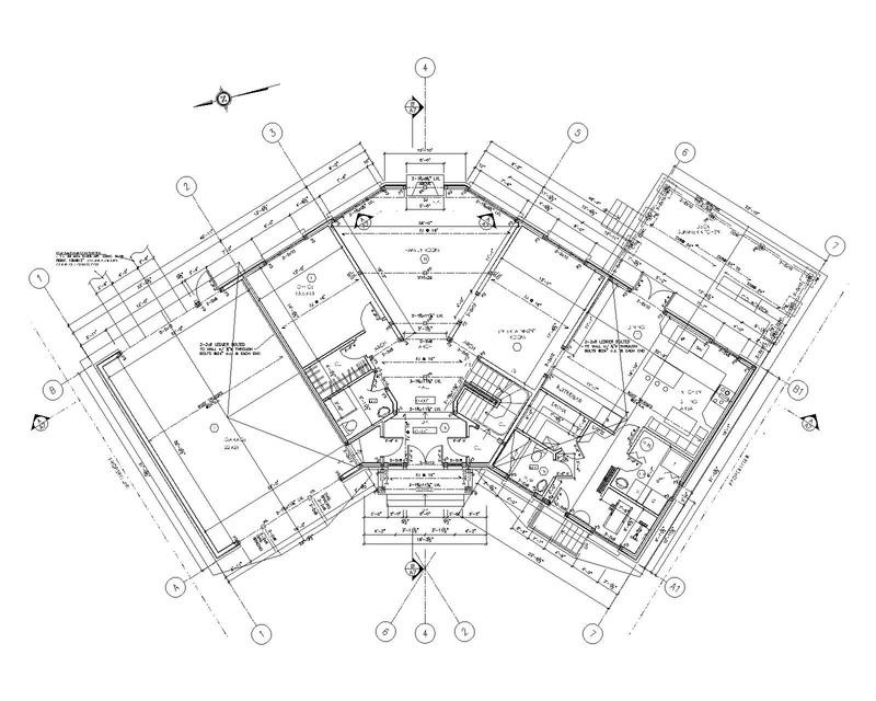
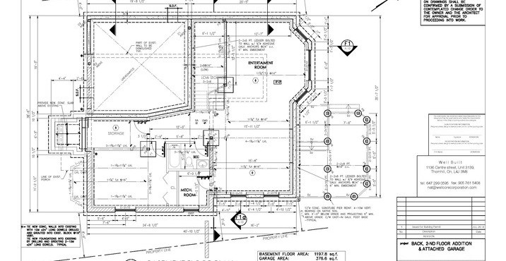
Project Description
This beautiful home overlooks the water from its perch on the shoreline. The design offers the warm comforting air of a cabin, while maintaining high quality contemporary aesthetics.
It was a challenge for our designer to create this project due to irregularity of the lot. It also took us 8 monthw to go through a complex approval process due to conservation authority special requirements in such green areas. However, our team has proven records of dealing with such projects in professional and innovative manner, so everything was completed to full customer's satisfaction.
We were able not only to create a project that fit perfectly into the lot, but also utilized all its special and unique landscaping characteristic to maximize future satisfaction by our customer.