

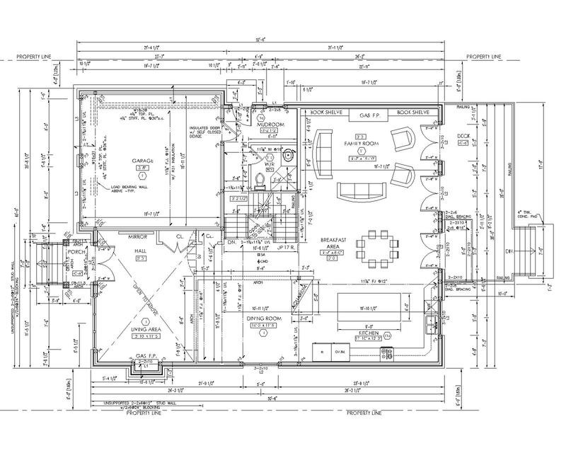
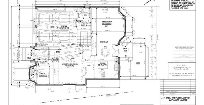
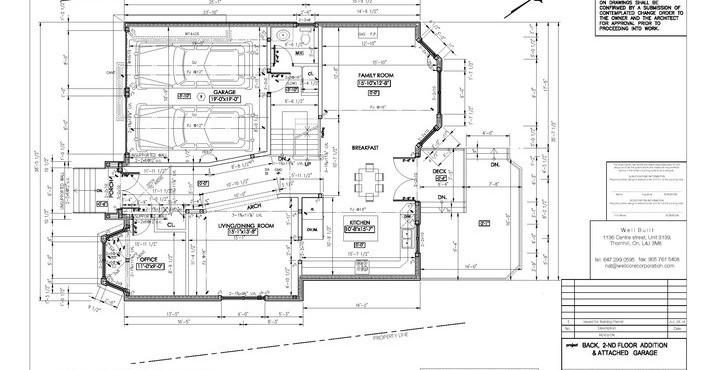
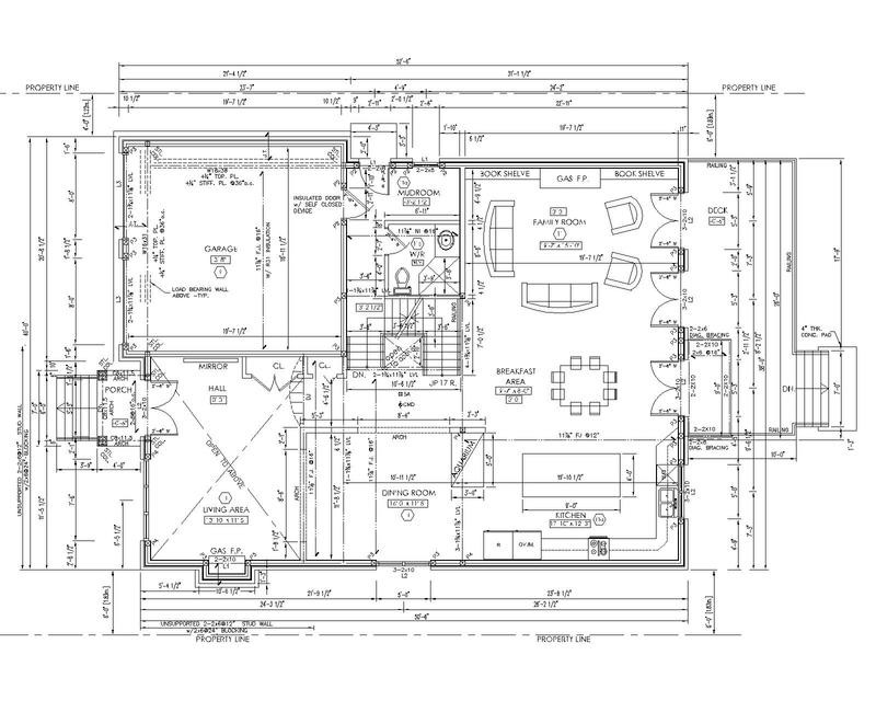
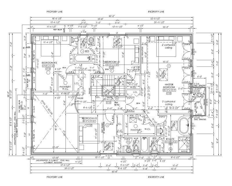
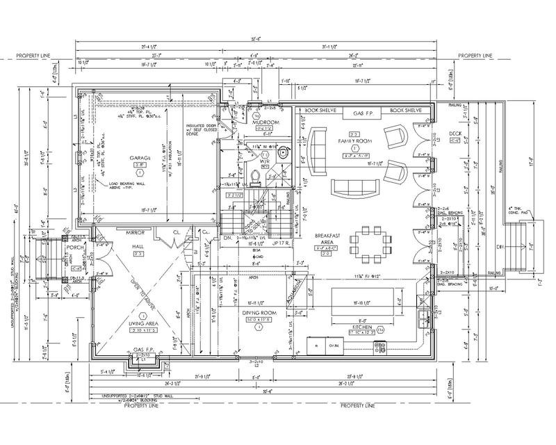
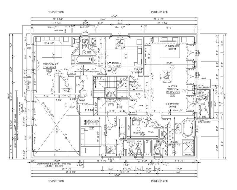
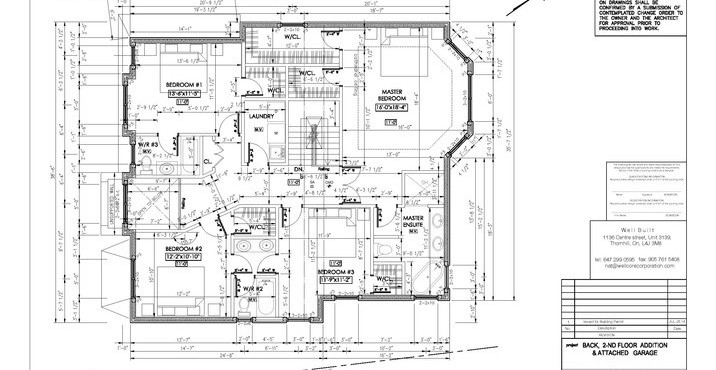
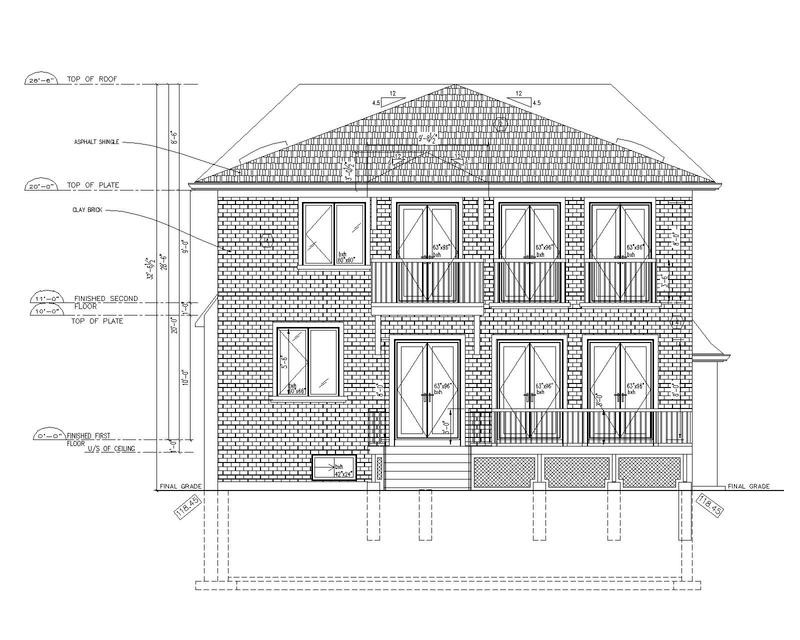
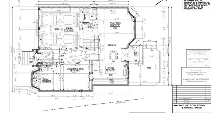
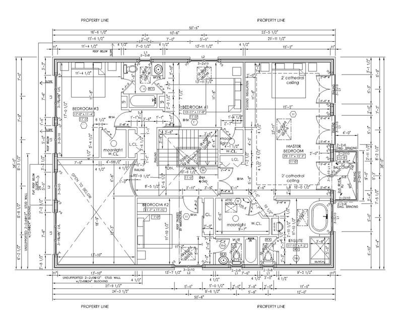
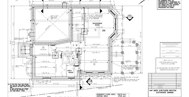
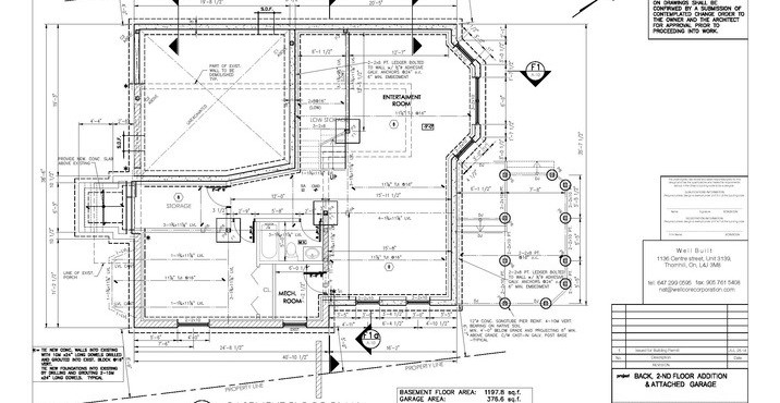
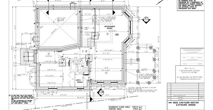
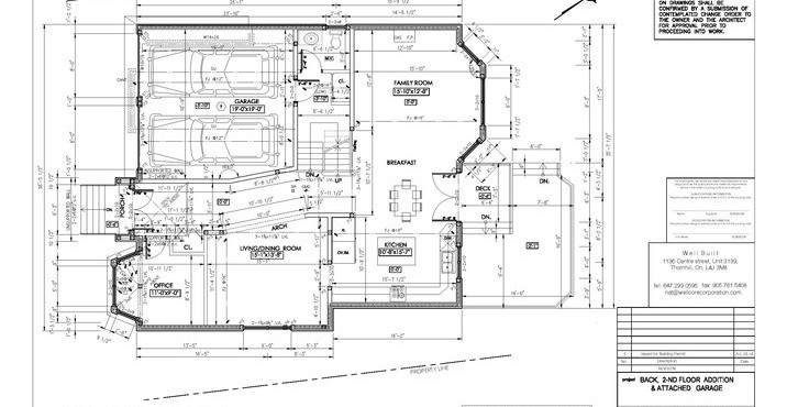
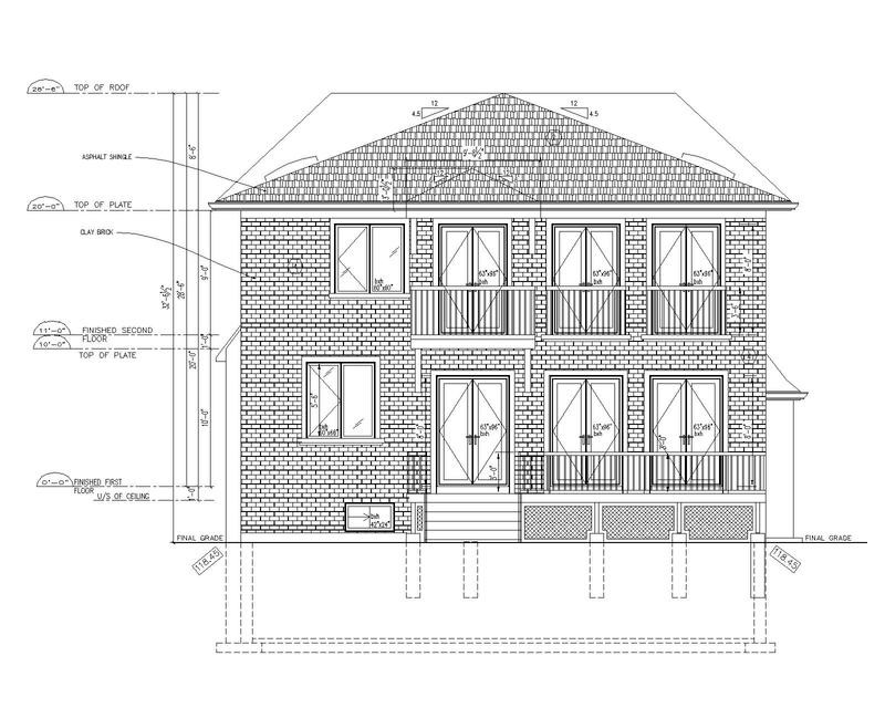
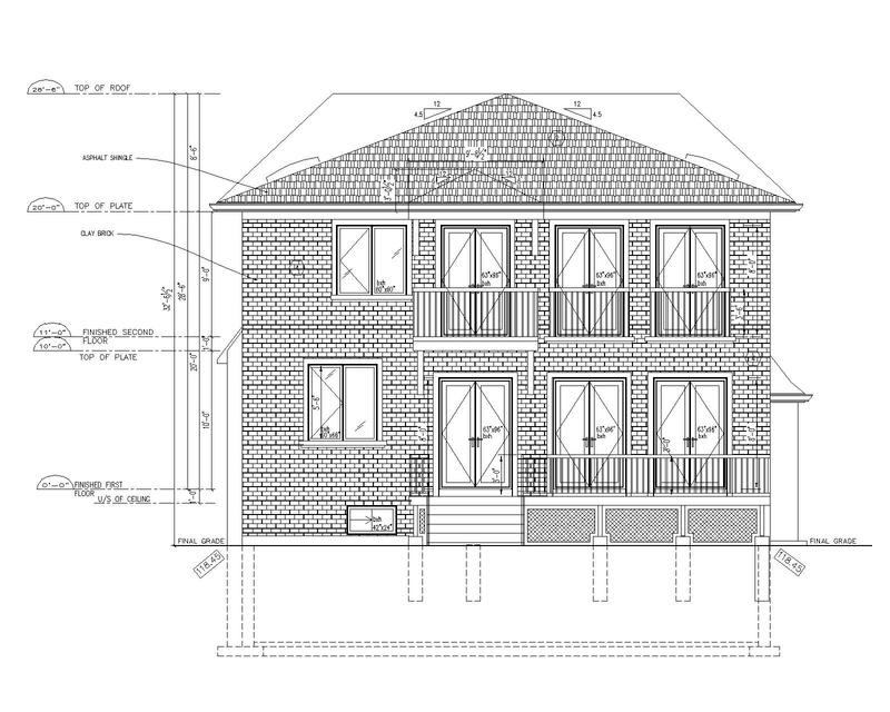
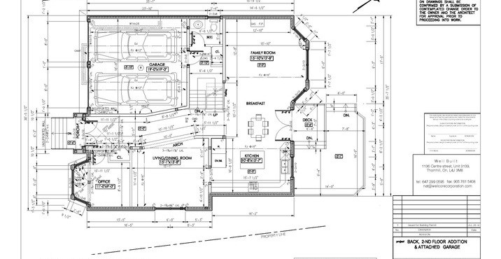
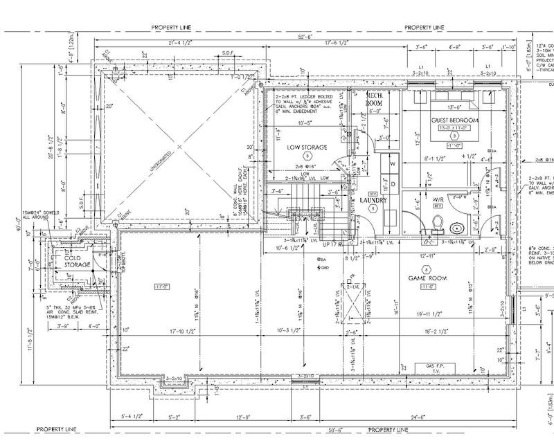
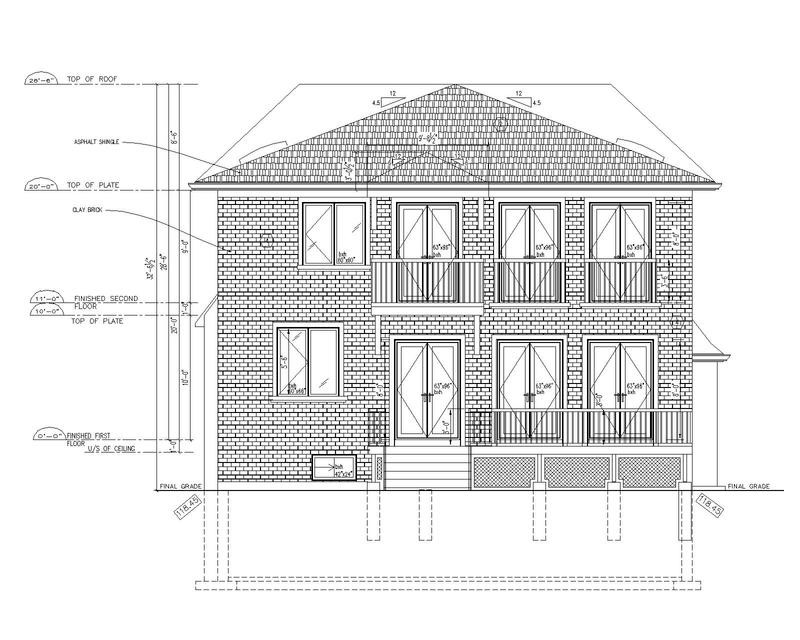
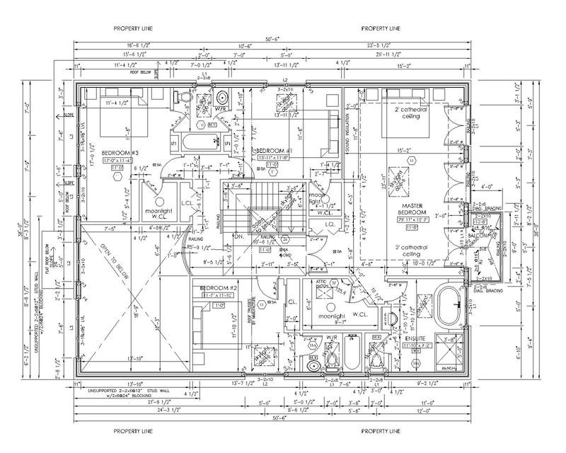
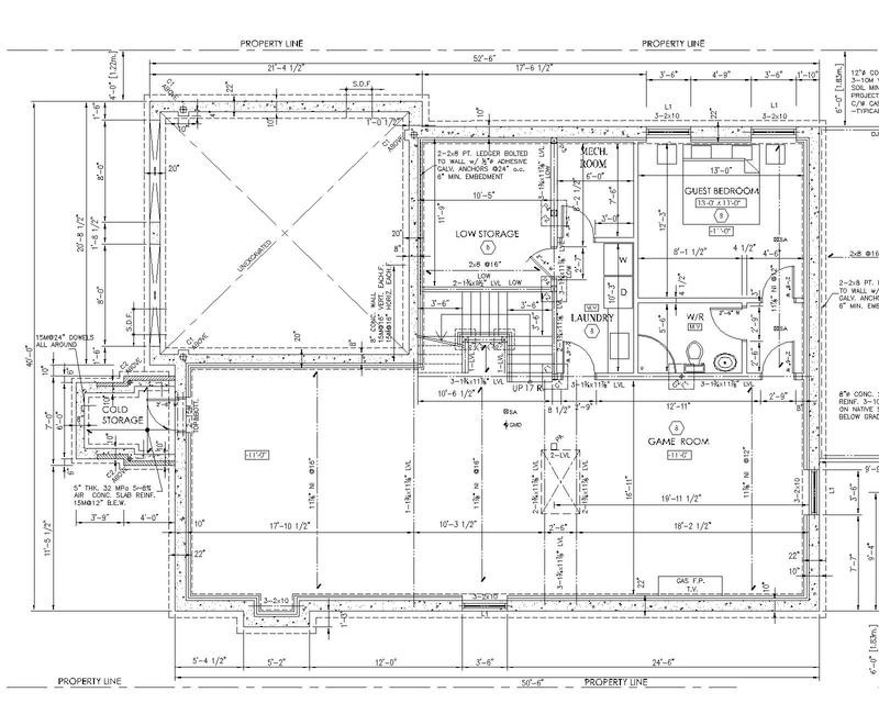
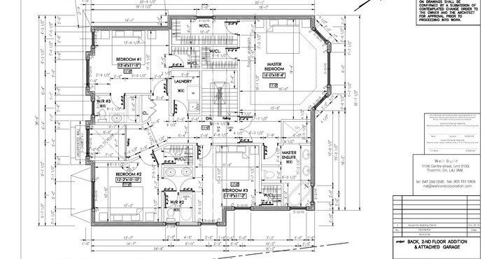
Erindale, centred around Dundas Street, Mississauga Road and the Credit River, was settled in the early 1820s after the purchase of land from the Mississauga Indians. The lot for the proposed house magnificently poised above the Credit River, was listed on the City's Heritage Register. Prior to issuance of the building permit, we had to obtain the approval of the Heritage Committee. We developed a 2 storey project in the European-style which serve to define, maintain and support the historic character of the area.