













Project: 2 Storey Rear Addition, split in 3 Legal Appartments
Area: ParkdaleToronto
Old house: 4 Bed, 3 Bath, 3,252 sq. ft.
New House: 6 Bed, 7 Bath, 3,253 sq. ft.
Time to obtain permits: 6 months
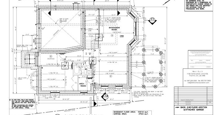
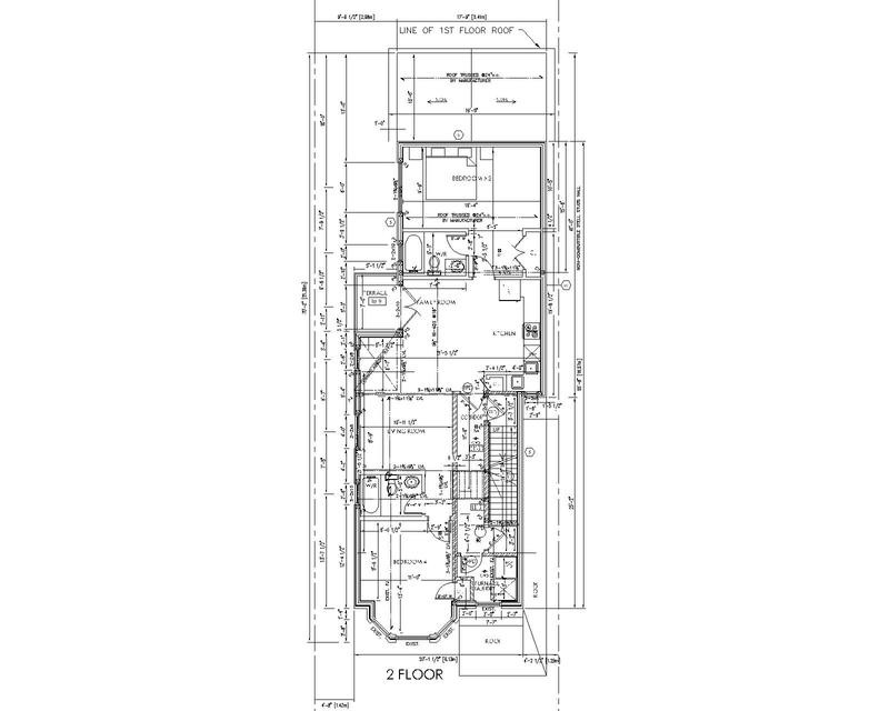
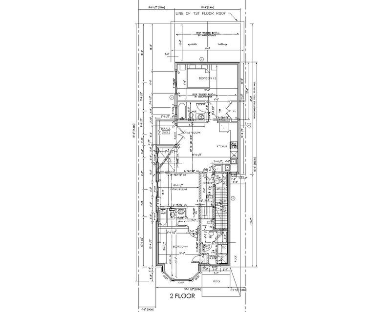
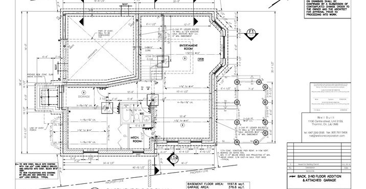
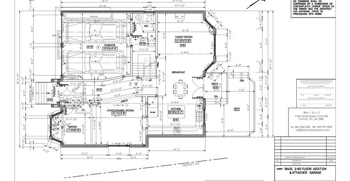
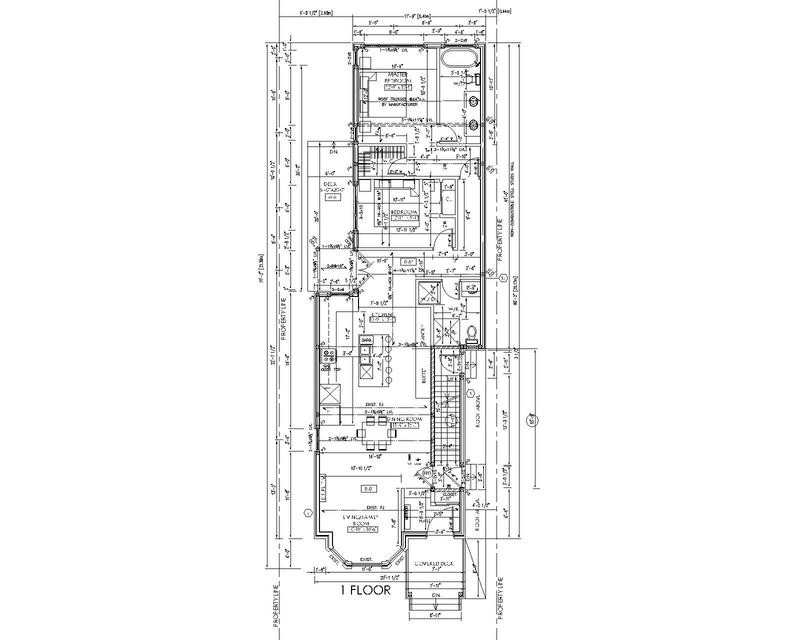
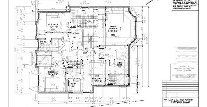
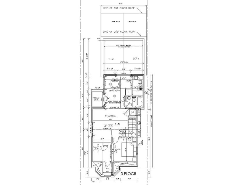
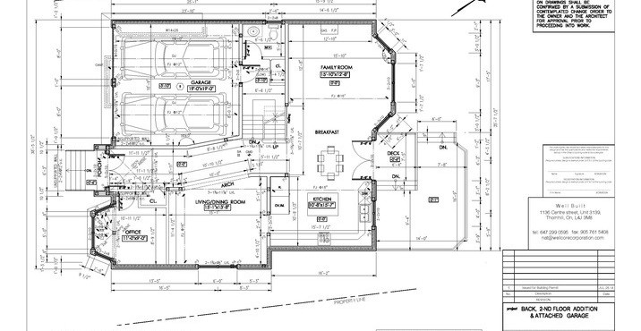
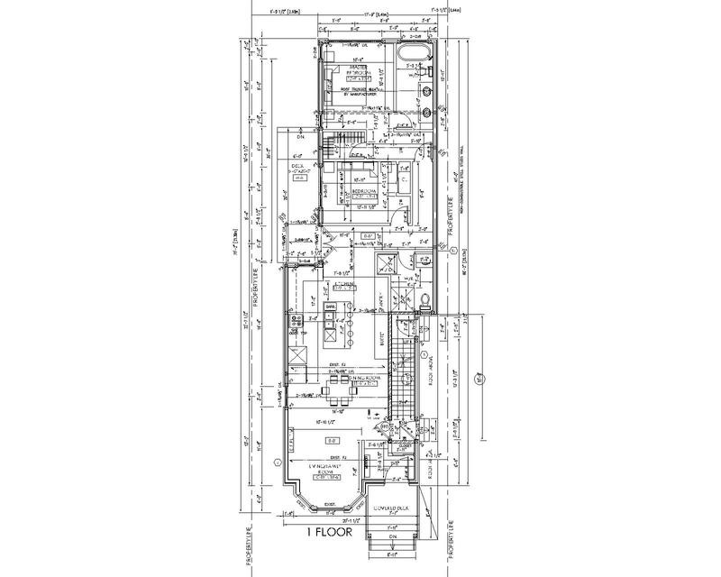
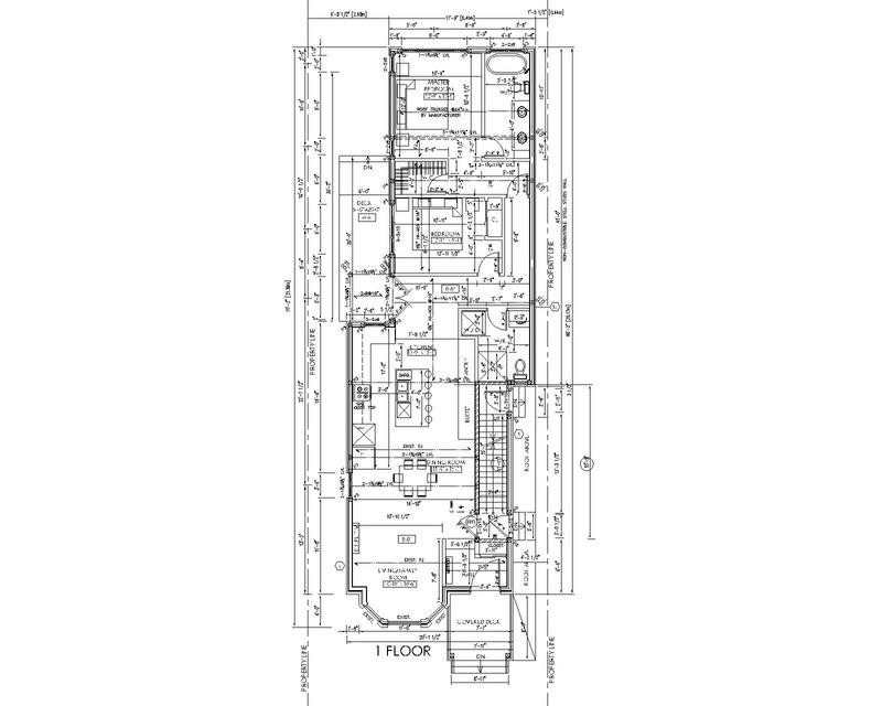
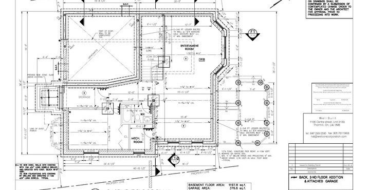
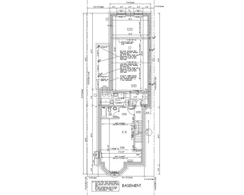
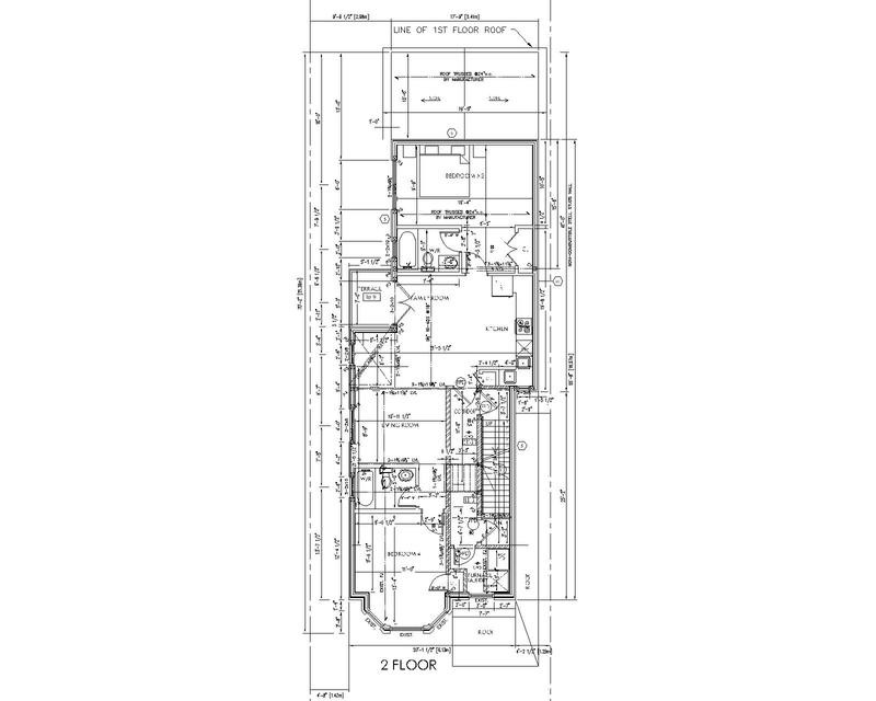
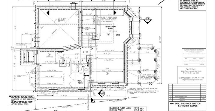
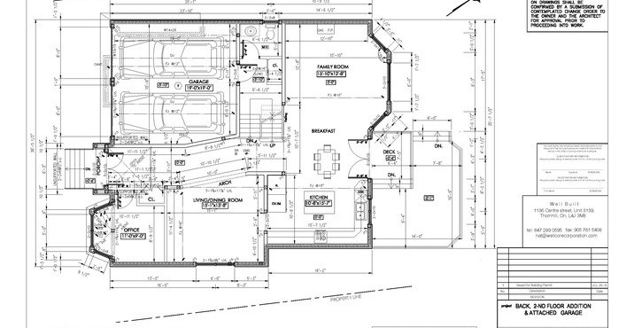
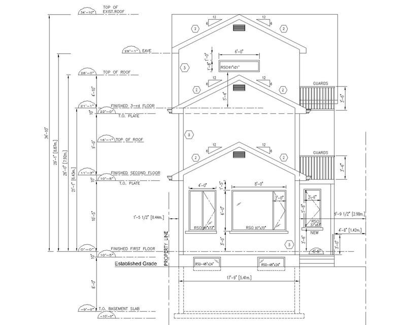
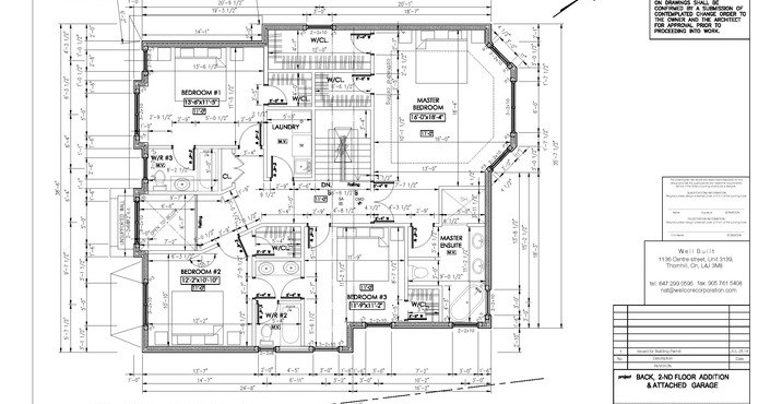
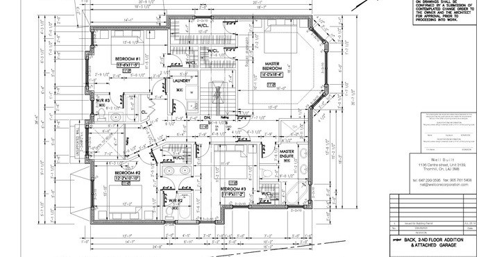
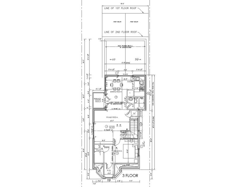
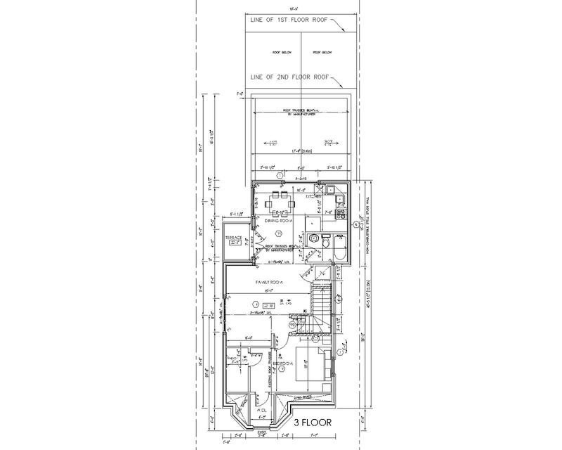
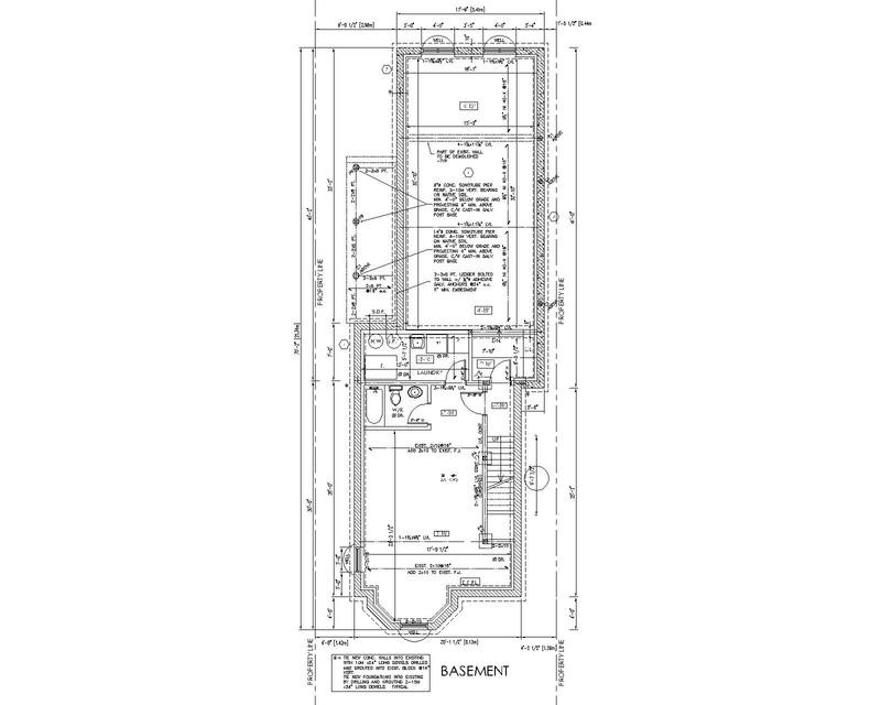
Project Description
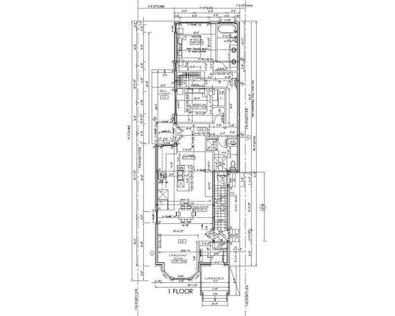
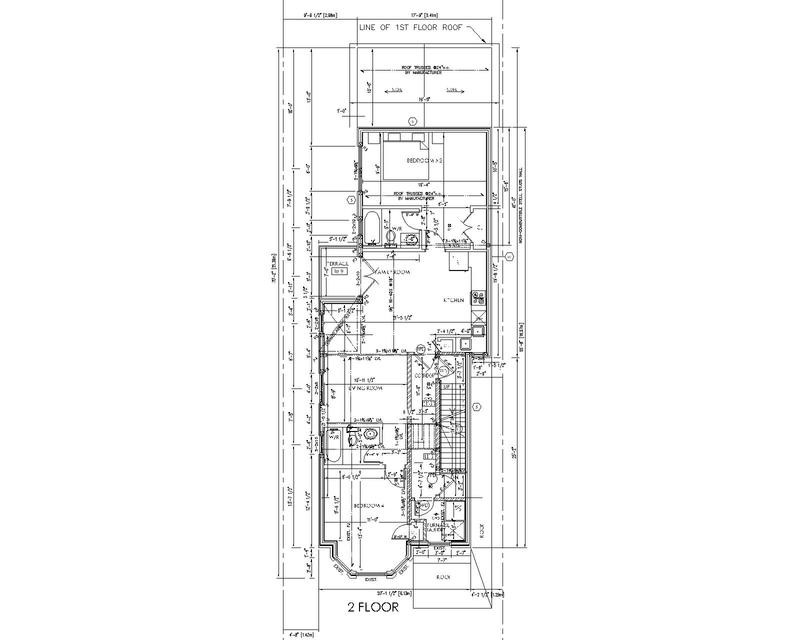
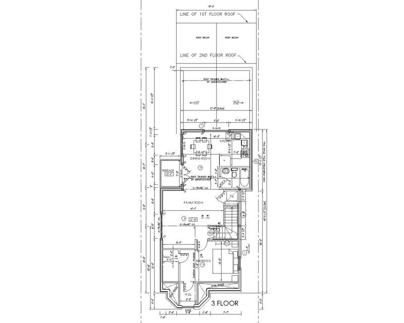
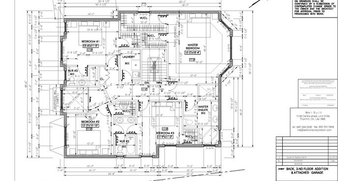
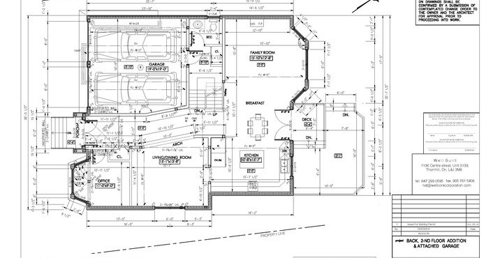
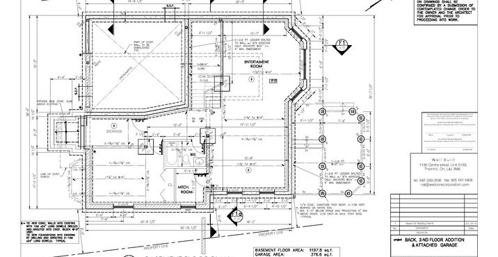
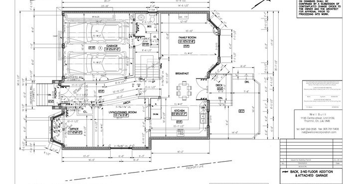
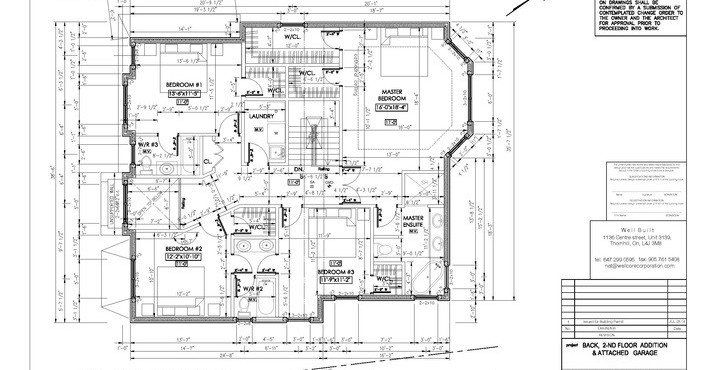
The homeowners decided not only renovate the century old 3 storey house, but also to convert it in additional source of income, by splitting it in three legal apartments: owner’s quarters and 2 rental units.
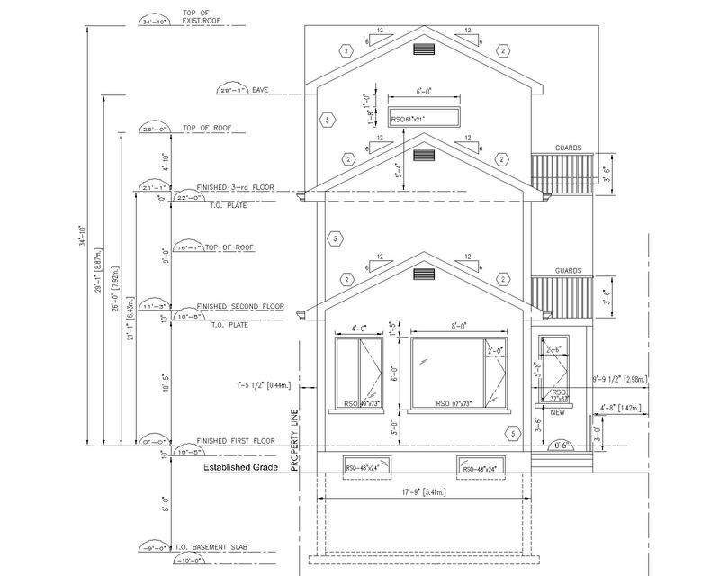
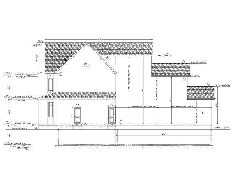
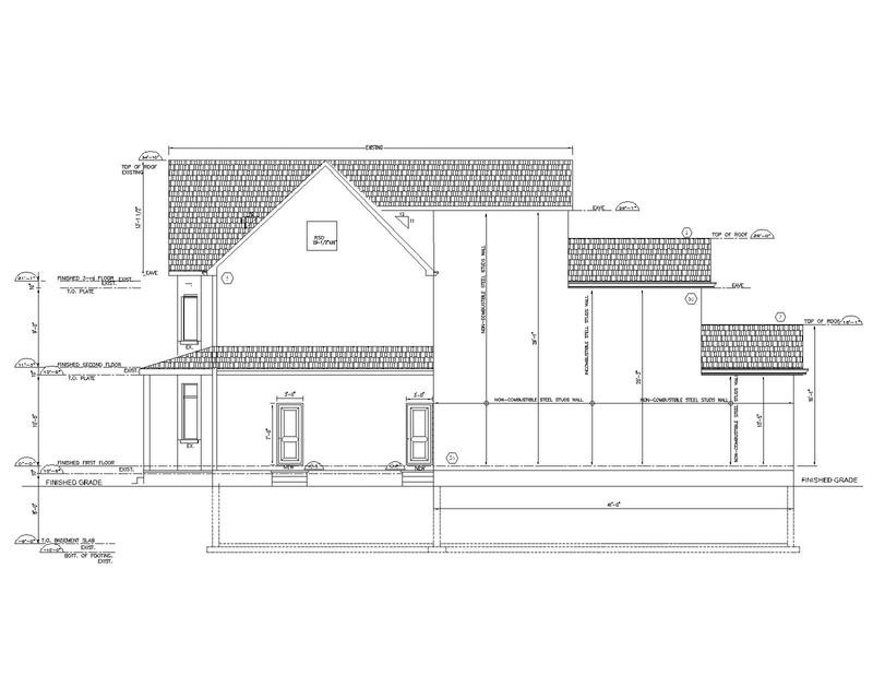
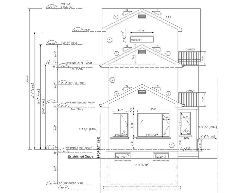
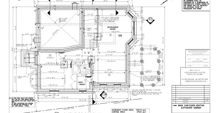
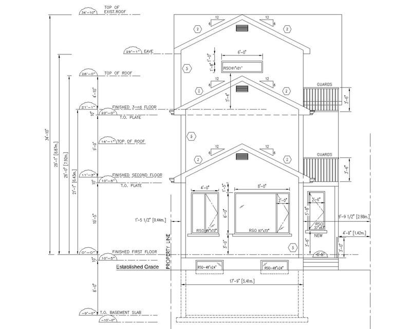
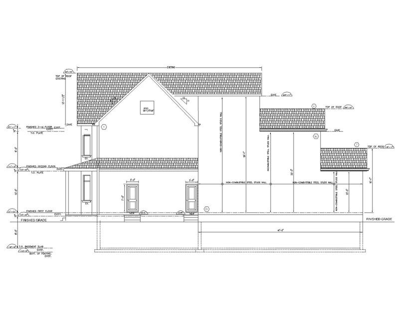
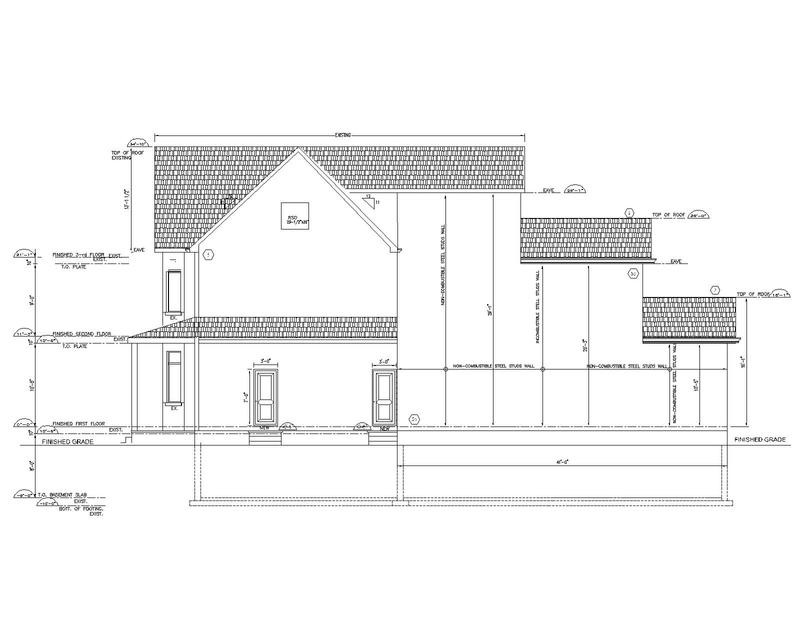
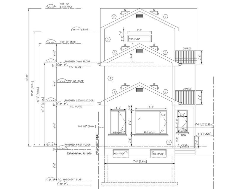
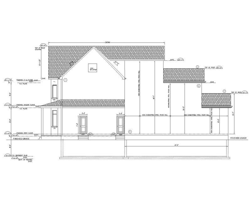
The house is located in the heart of Toronto, where zoning by-laws restrict the height of an addition and limit possible building options. If we proposed a new three storey custom home, our application, most likely, would’ve been rejected, Instead, we offered to construct second and third floor rear addition in lieu of the existing back addition, hastily erected by someone long time ago without proper foundation and currently being in emergency condition. Besides zoning issues, we had to verify that rental units met the requirements of the Ontario Fire code. We prepared the application fully complied with the second suites by-law and obtained a building permit.
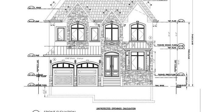
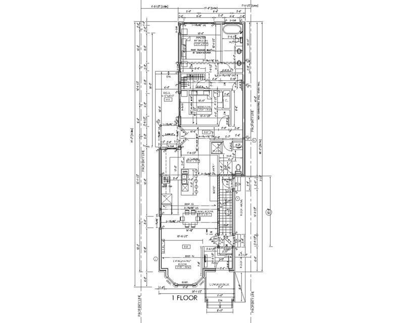
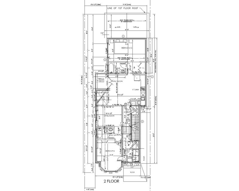
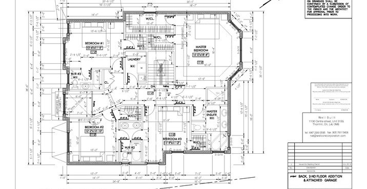
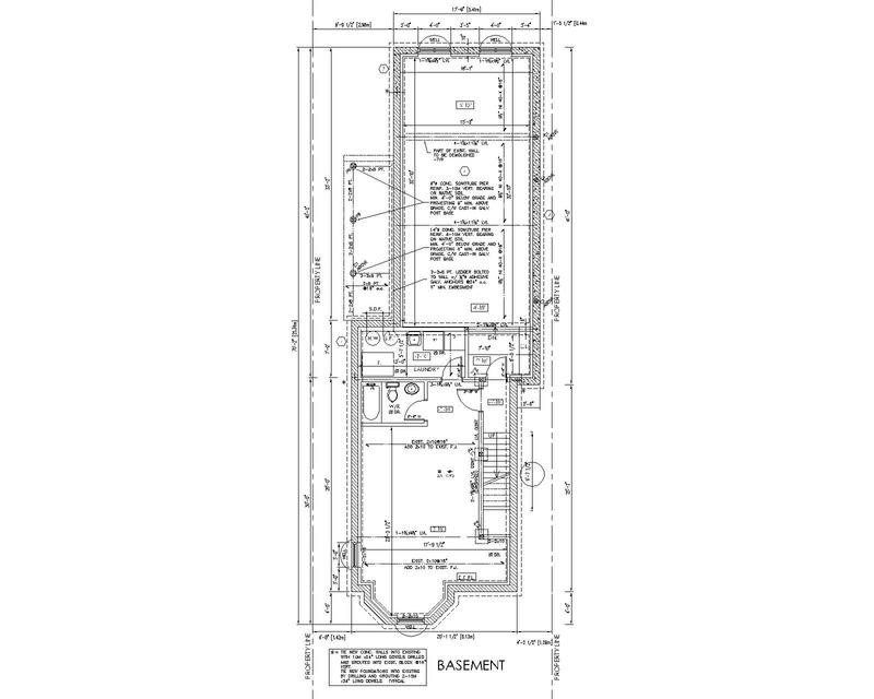
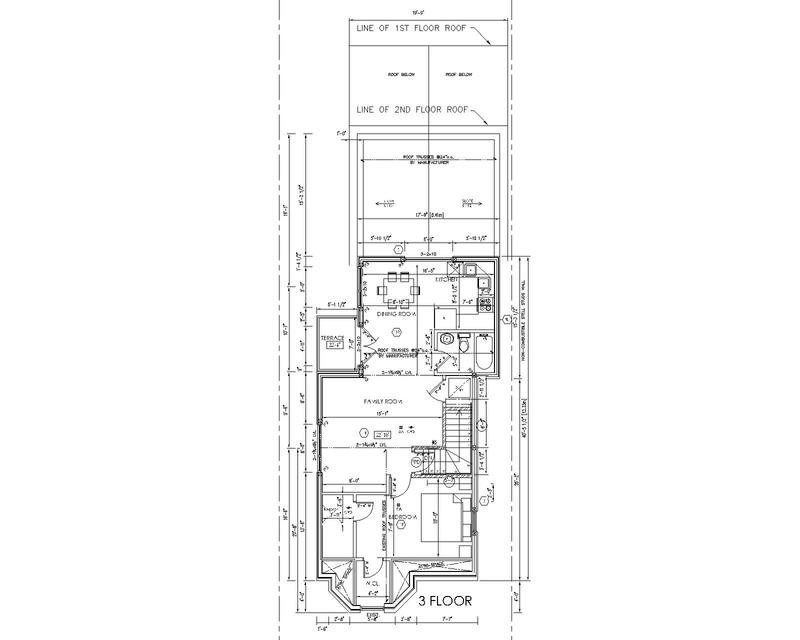
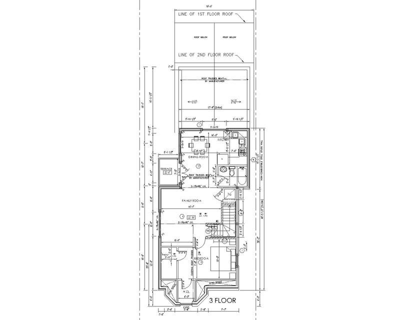
Beautiful Victorian front facade of the building was kept in unaltered condition. Our designer developed a second and third floor back addition project on the existing footprint. The floor layouts were meticulously developed for the comfortable living of the homeowner and tenants. Not only proposed floor plans preserved homeowner's privacy, but also they made it possible for prespective tenants to comfortably share common areas like kitchens and a foyer. Sound-proofing, HVAC, electrical upgrades - all the details were thought through by our designer.