









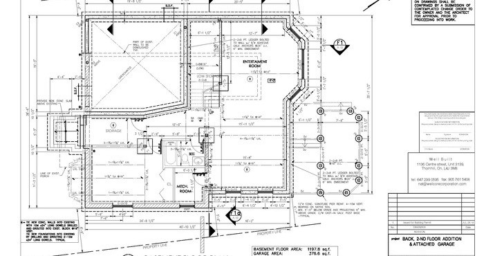
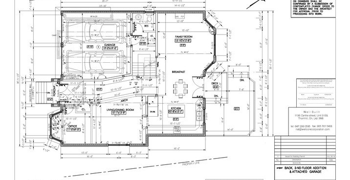
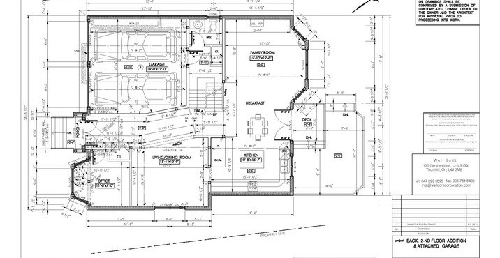
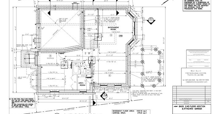
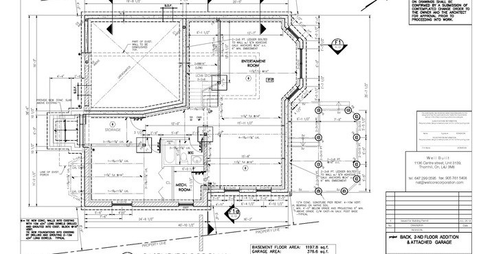
Project: Second Floor Addition on top of the garage and side addition, Full Interior gut-out renovation
Area: Markham Village
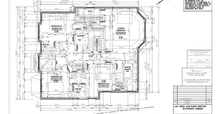
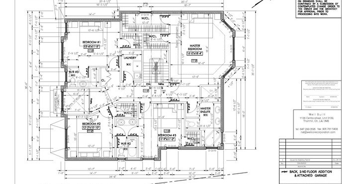
Old house: 4 Bed, 3 Wash, 2232 sq. ft.
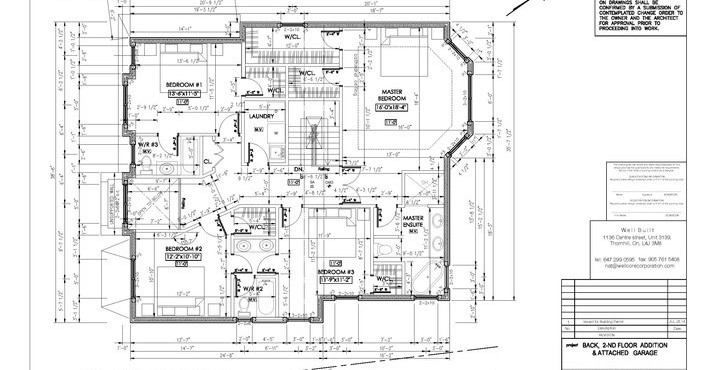
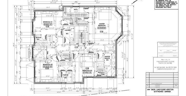
New House: 4 Bed, 4 Bath, 2764 sq. ft.
Time to obtain permits: 6 months
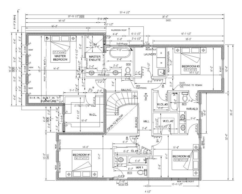
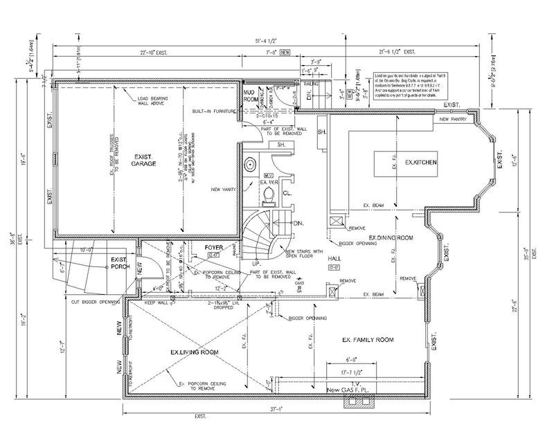
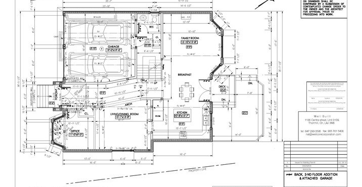
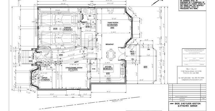
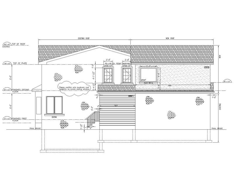
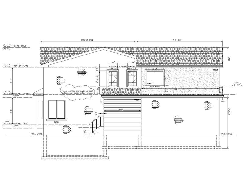
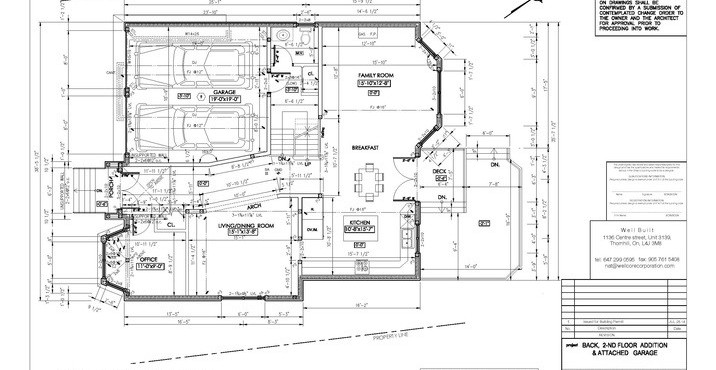
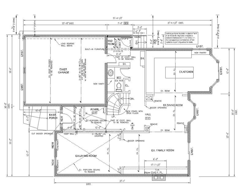
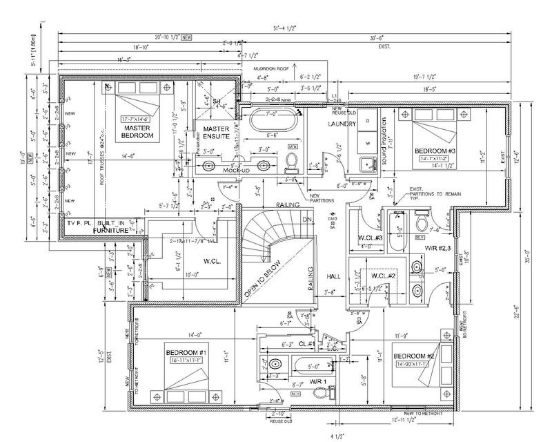
Project Description
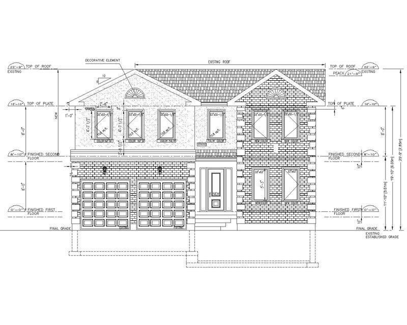
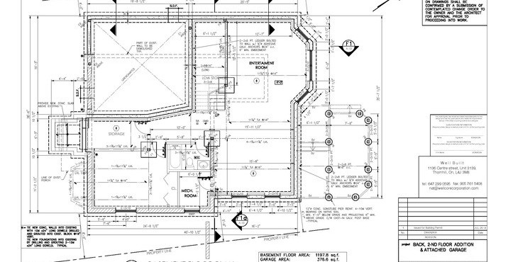
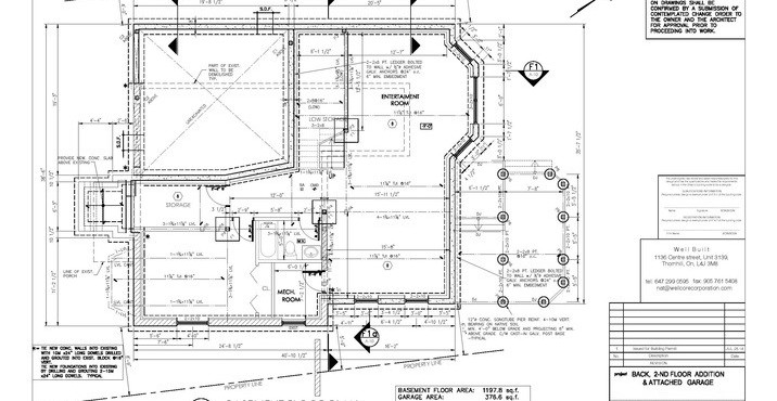
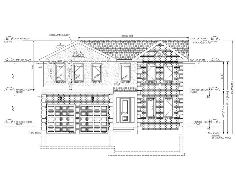
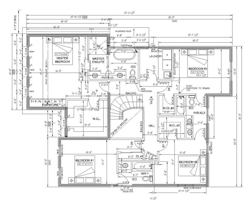
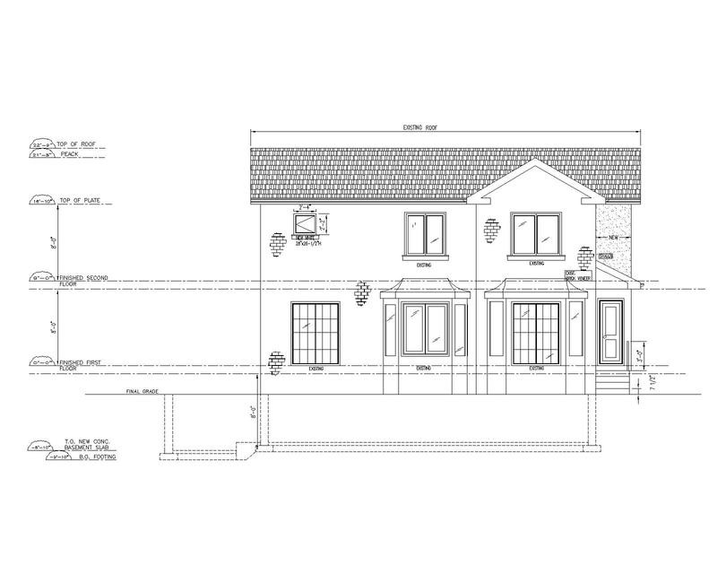
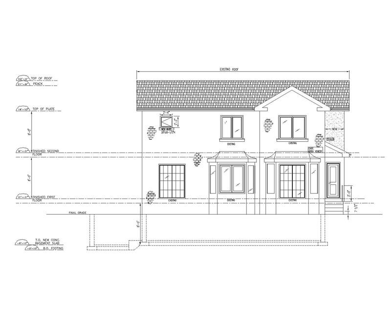
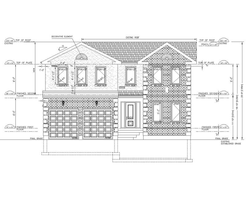
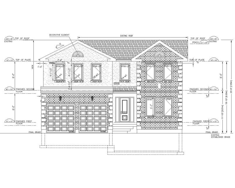
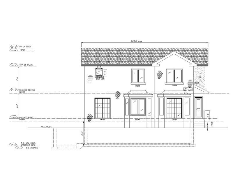
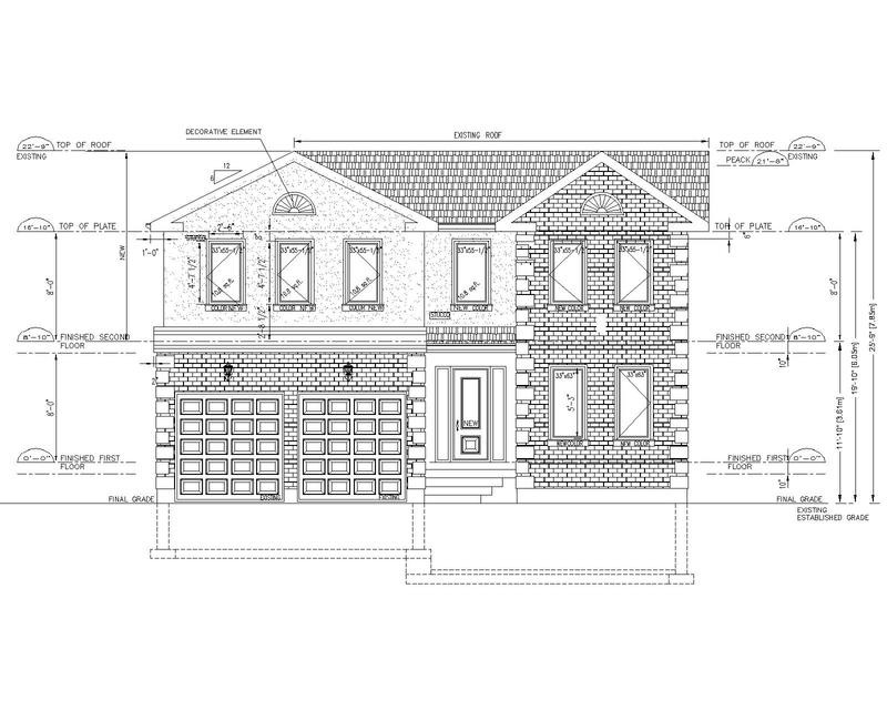
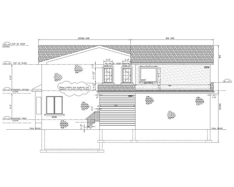
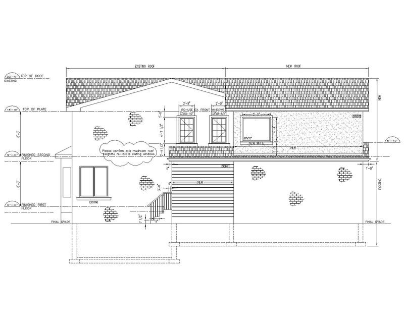
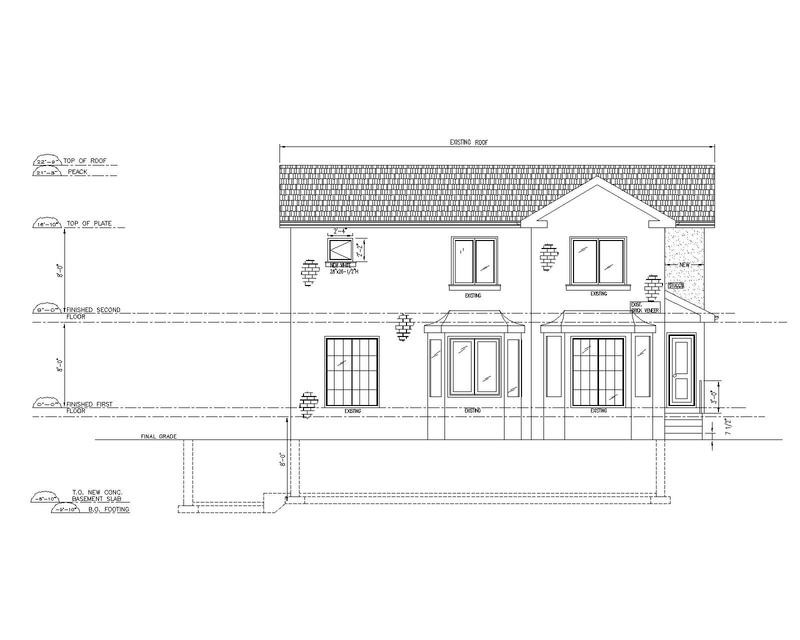
The area above the garage is one of the most cost - effective ways to gain bedroom space. An over-the garage addition does not increase the footprint of a house, so it gives the opportunity to save on footing and foundation works.
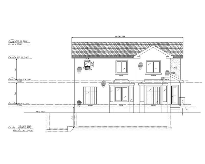
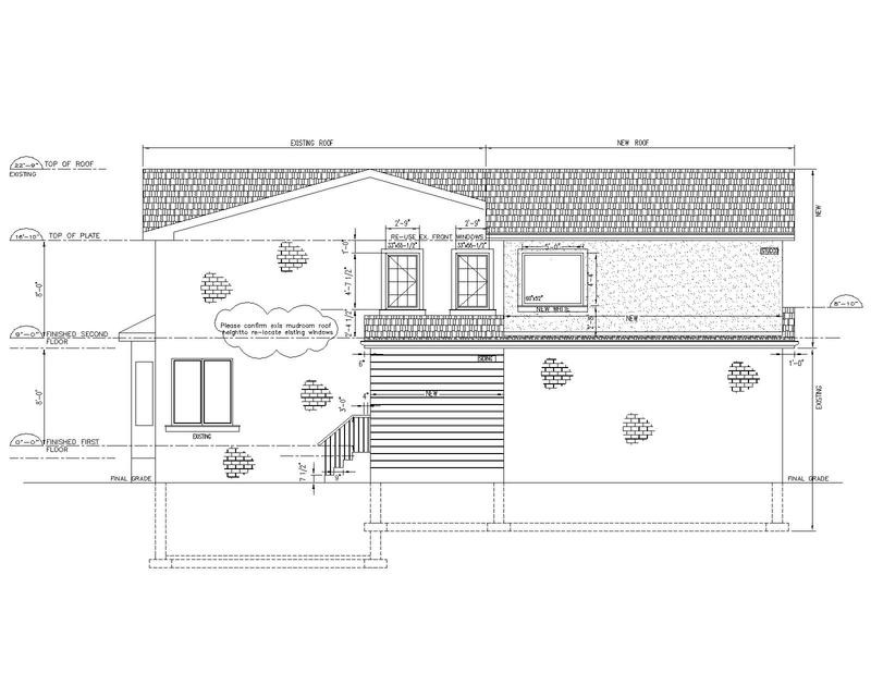
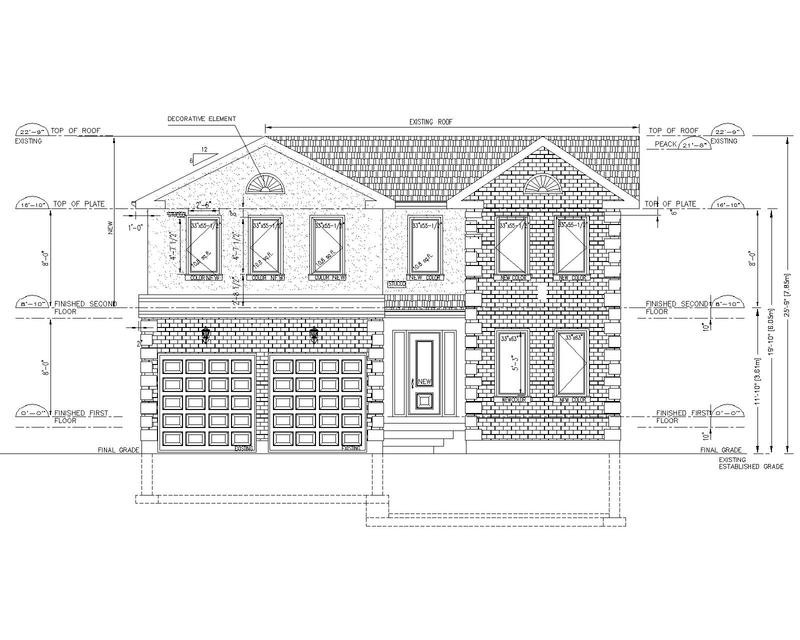
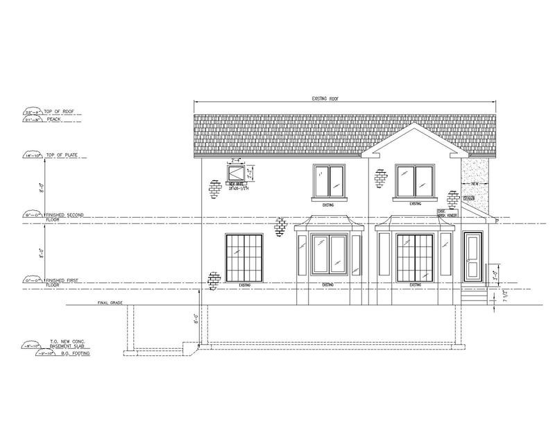
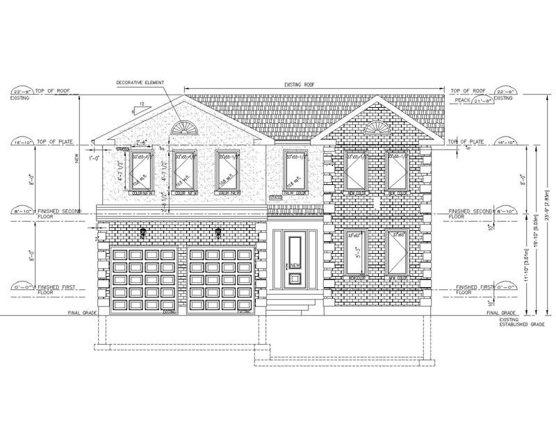
However, this type of addition, facing the street, has an impact on curb appeal. Therefore, we designed this project to be harmonious with the existing house: windows of the same size, decoratrive half-round element on the top mirrors the gable panel of the facade. To keep the potential cost of the addition reasonable, we proposed to use stucco exterior finishes in liue of the brick, which also gave the entire house a curb-appeal boost. Decorative details such as stone cap (the moulding between the brick and stucco) helped the new space look properly scaled and connected to the older structure.
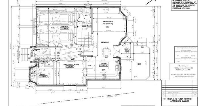
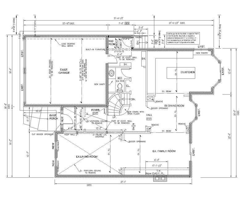
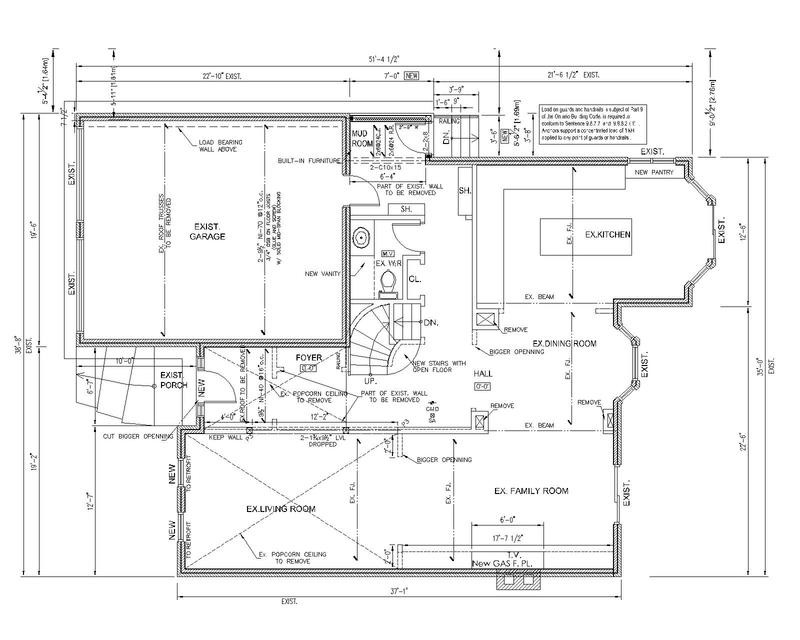
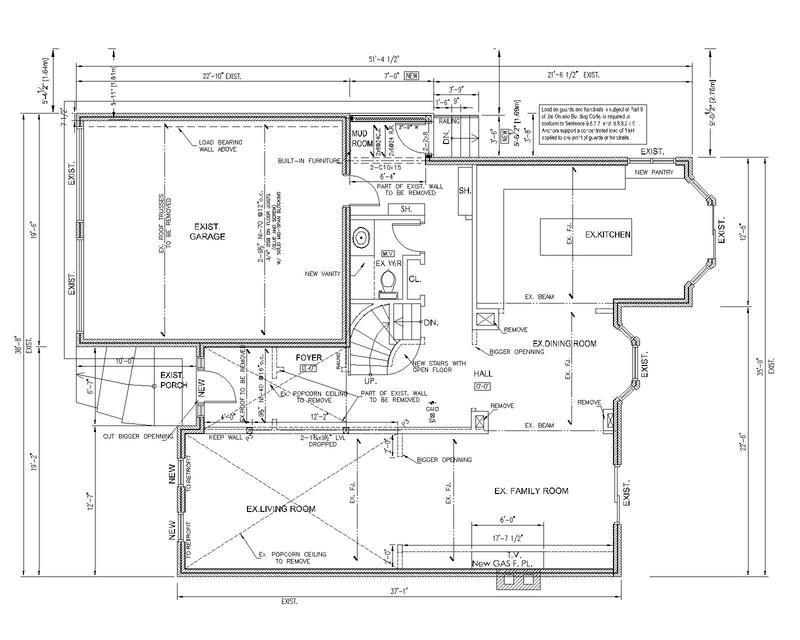
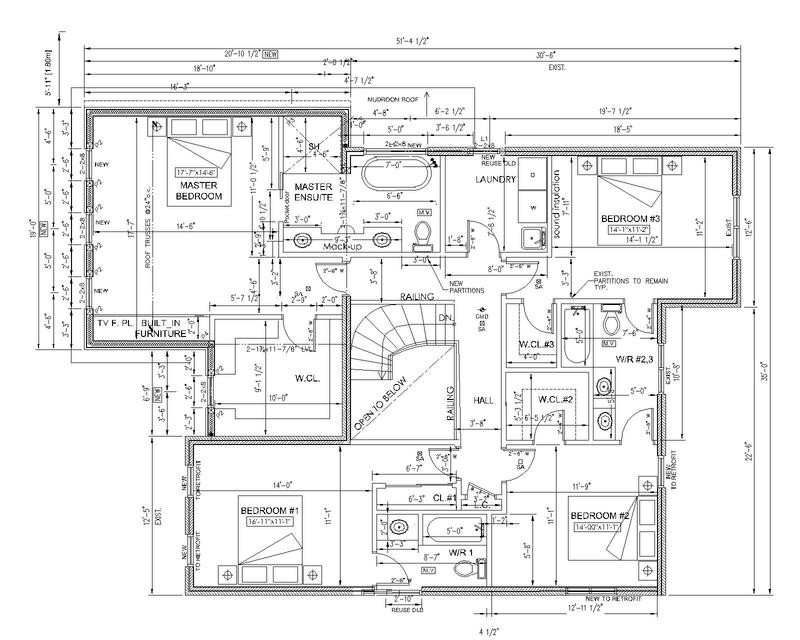
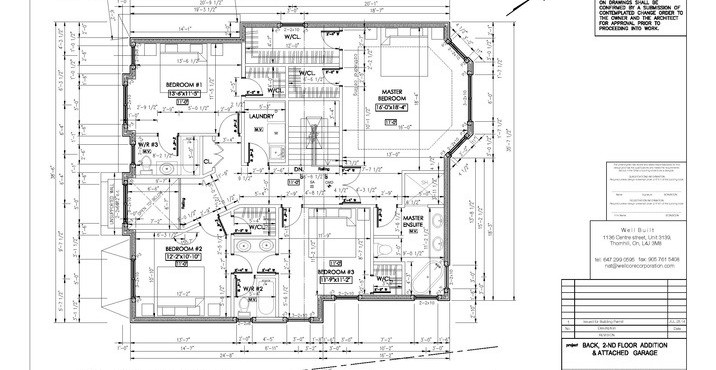
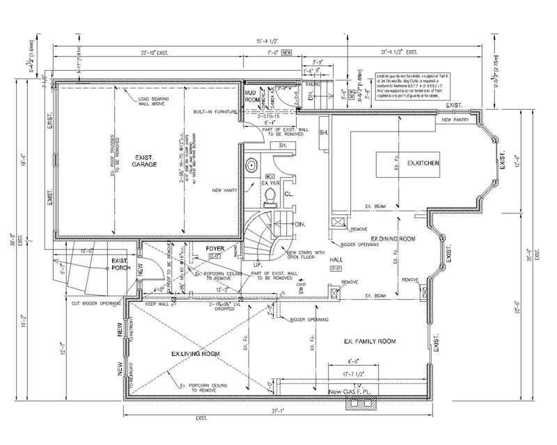
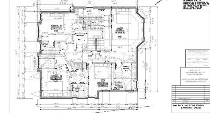
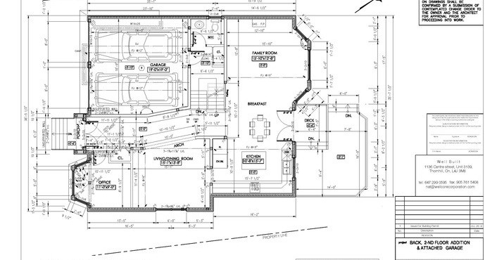
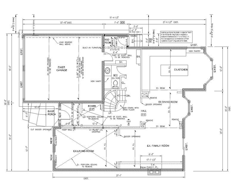
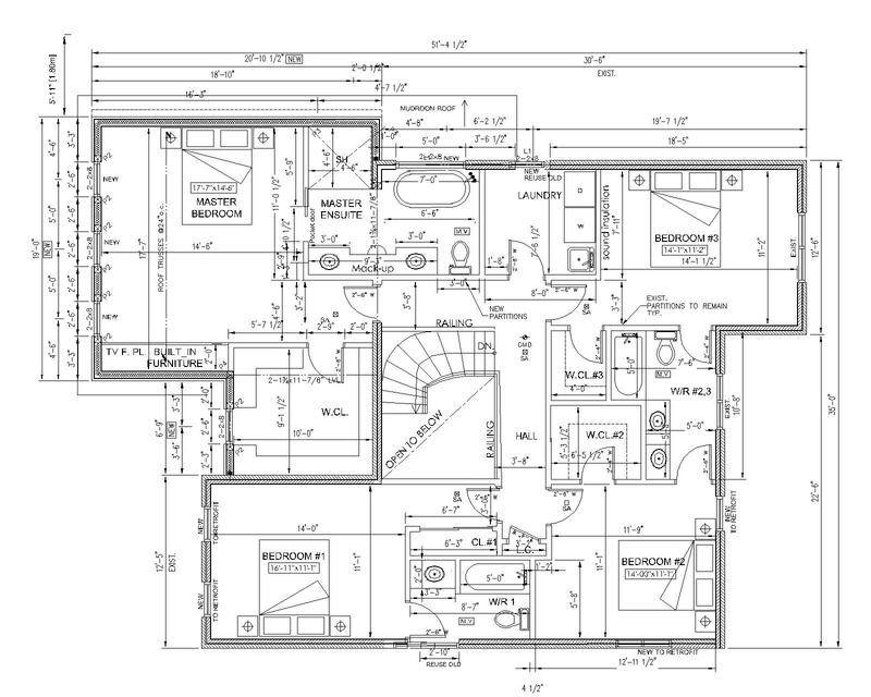
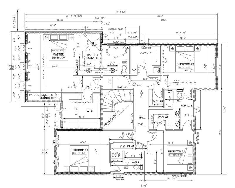
This type of addition typically calls for reconfiguring existing layouts on both floors. The addition space was used to accomodate a spacious master bedroom, walk-in closet and a sun-filled master ensuite. Ground floor was remodelled for open concept which made a traditional sub-division home feel airy and entertainier.