Menu
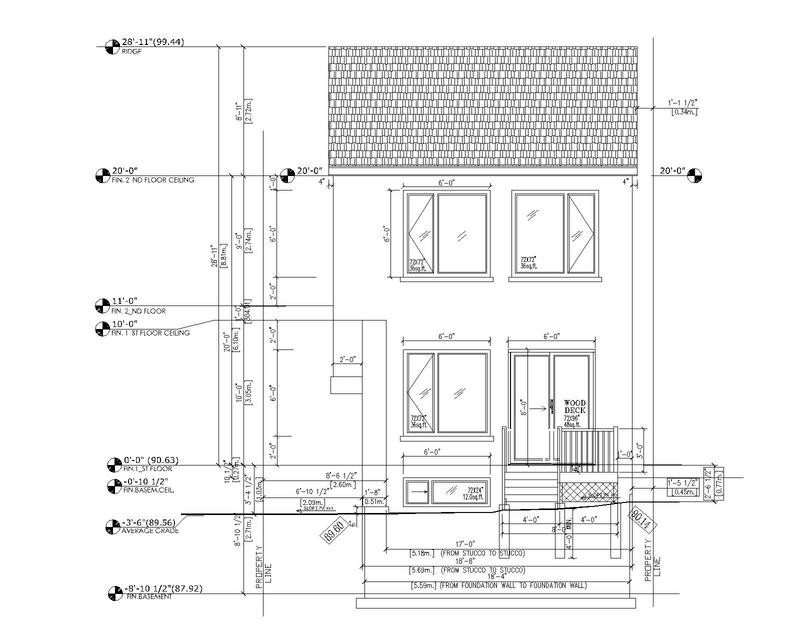
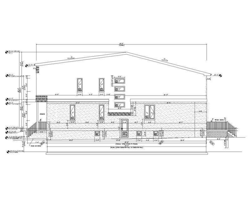
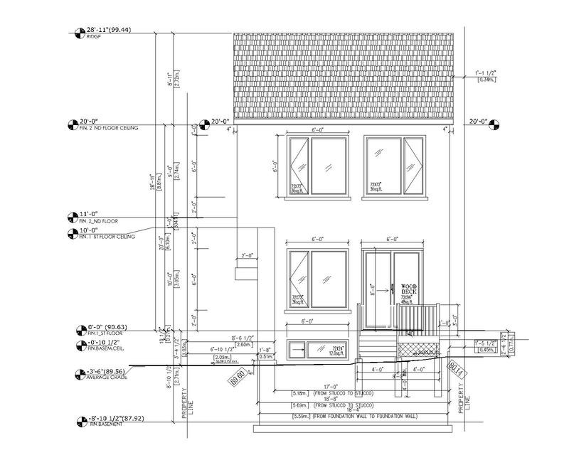
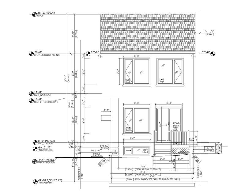
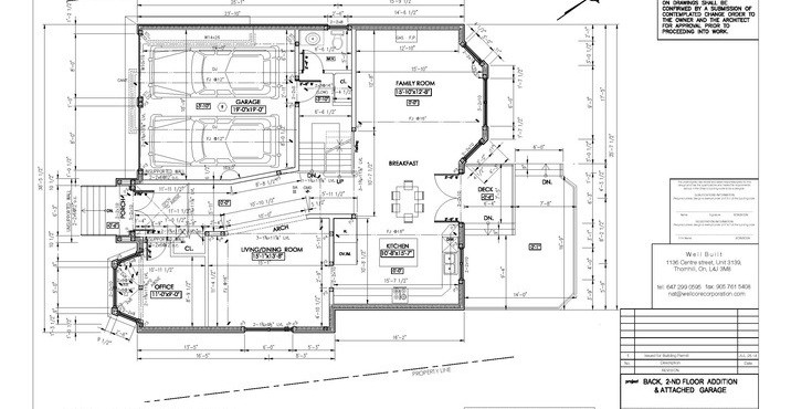
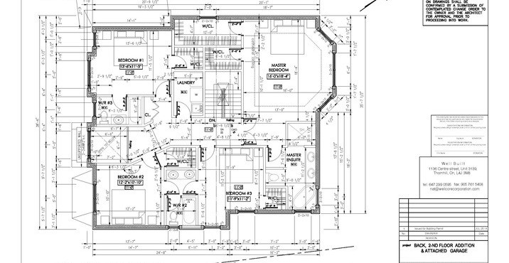
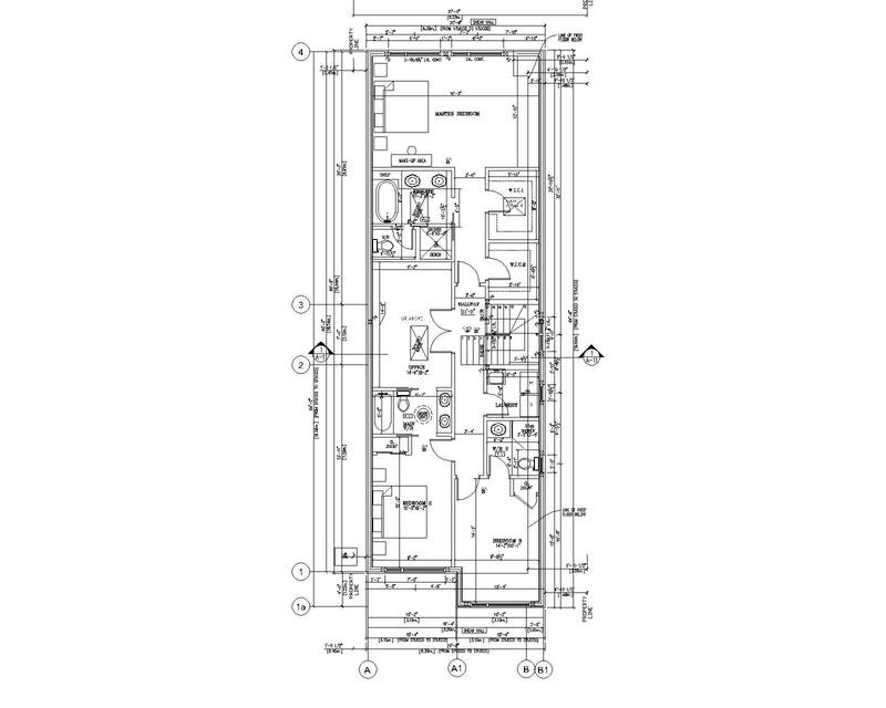
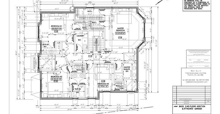
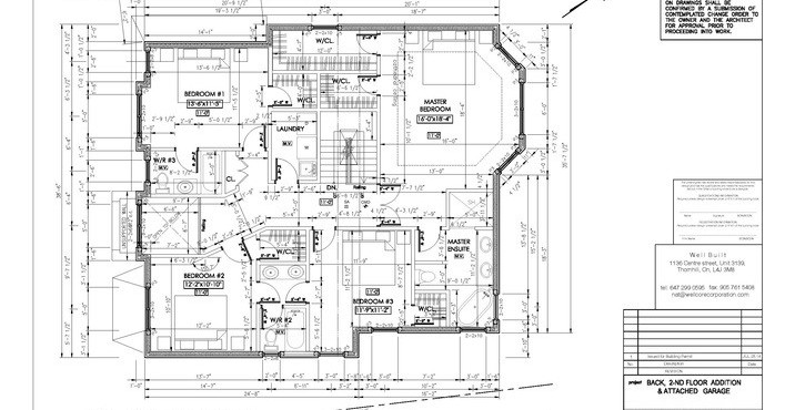
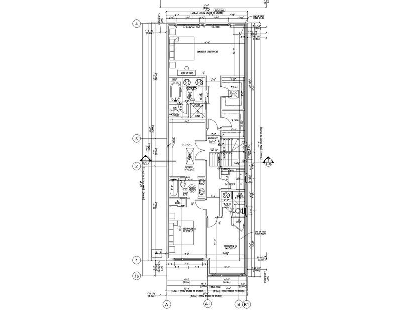
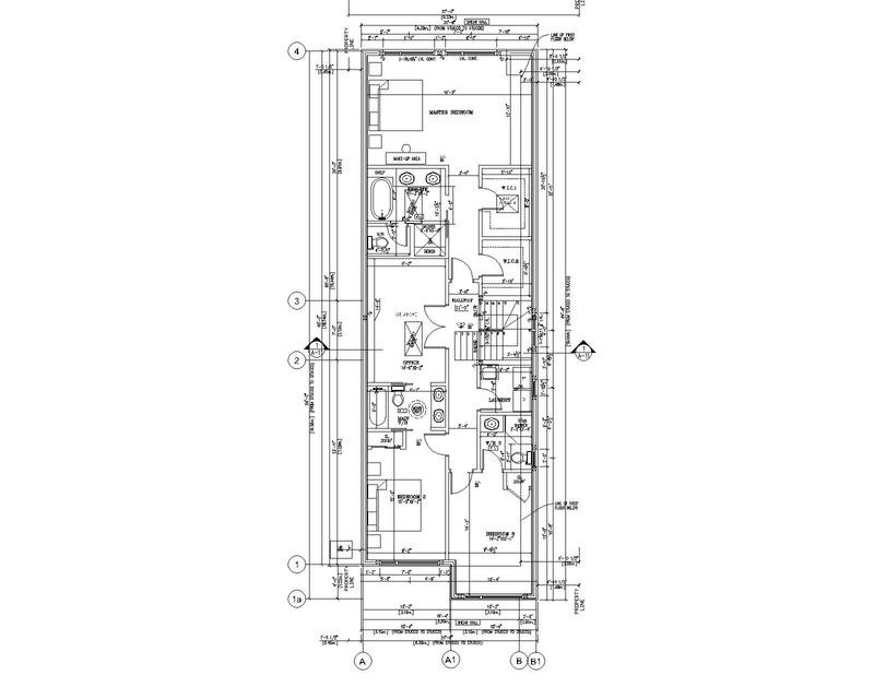
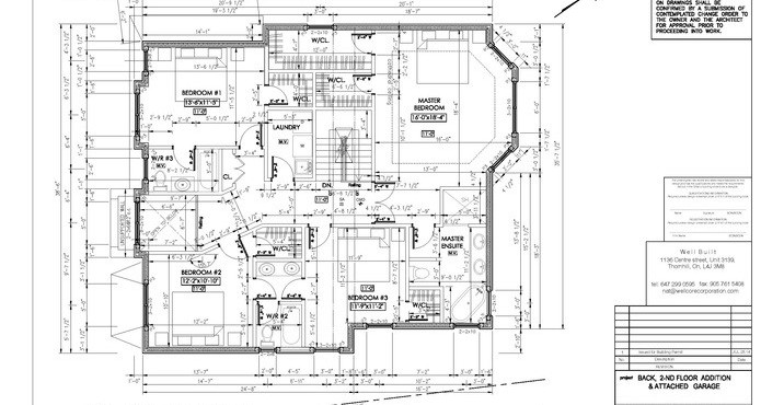
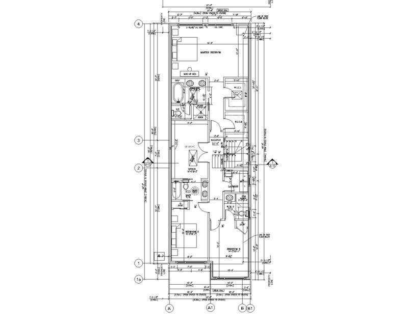
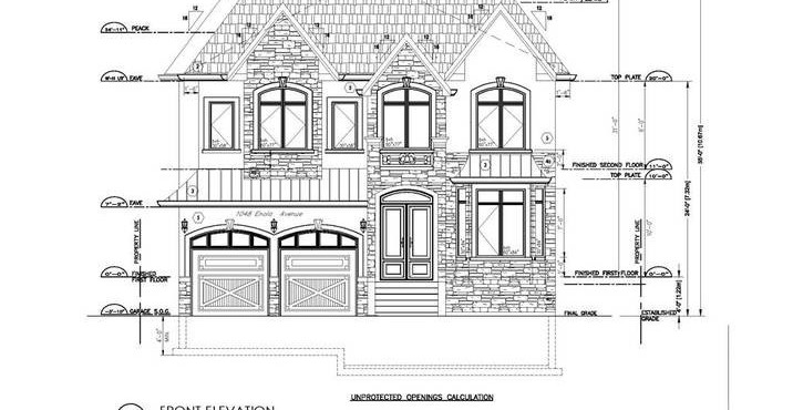
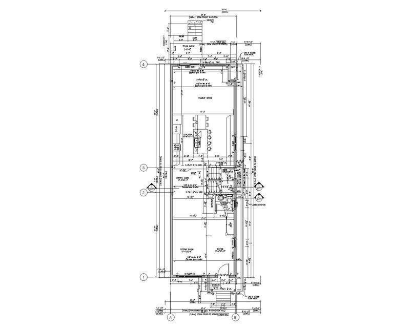
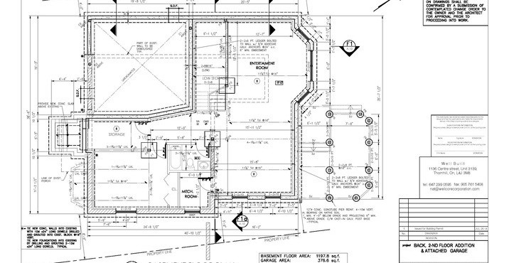
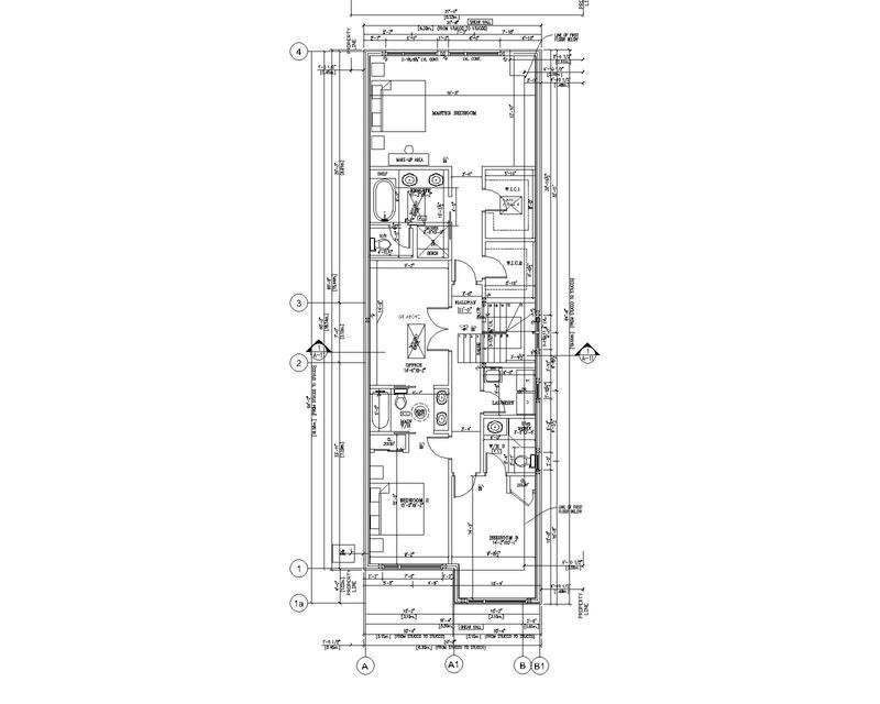
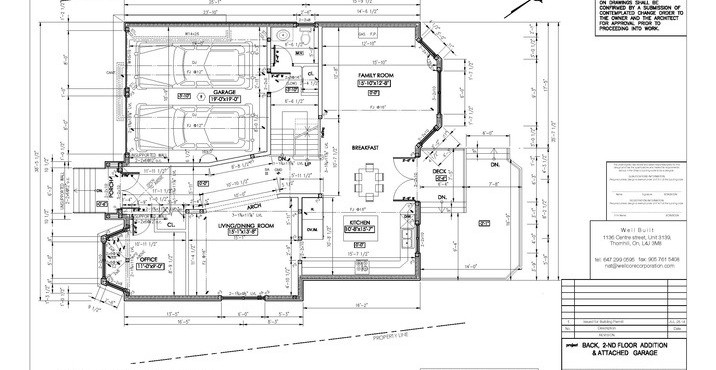
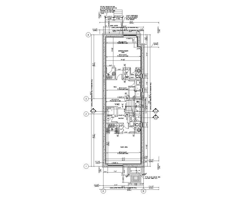
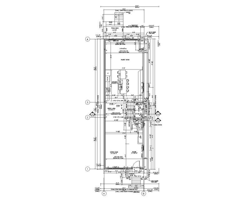
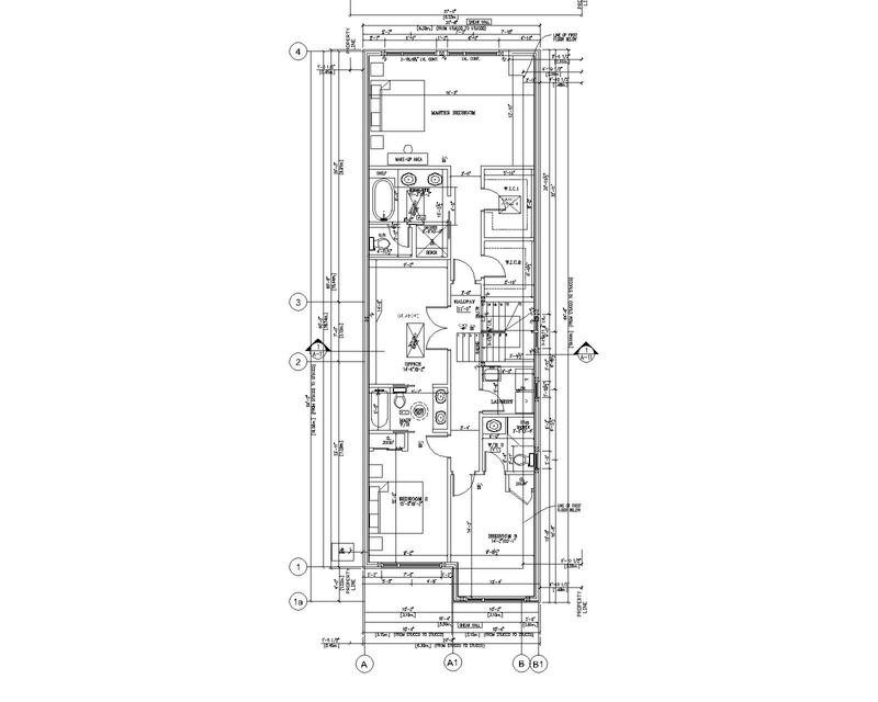
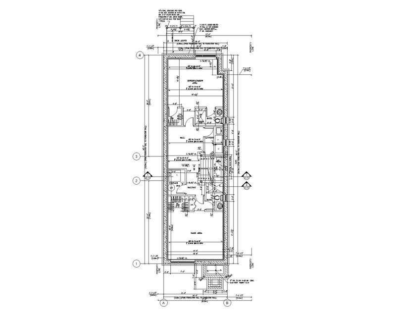
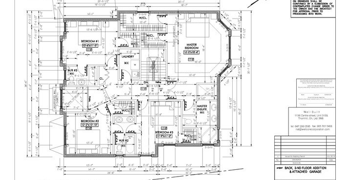
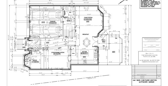
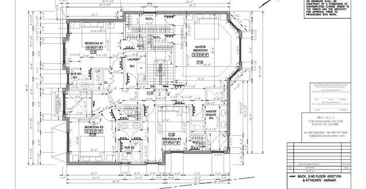
Despite of the lot's limited space, our designer developed the 2 storey project with spacious 5 Bedr
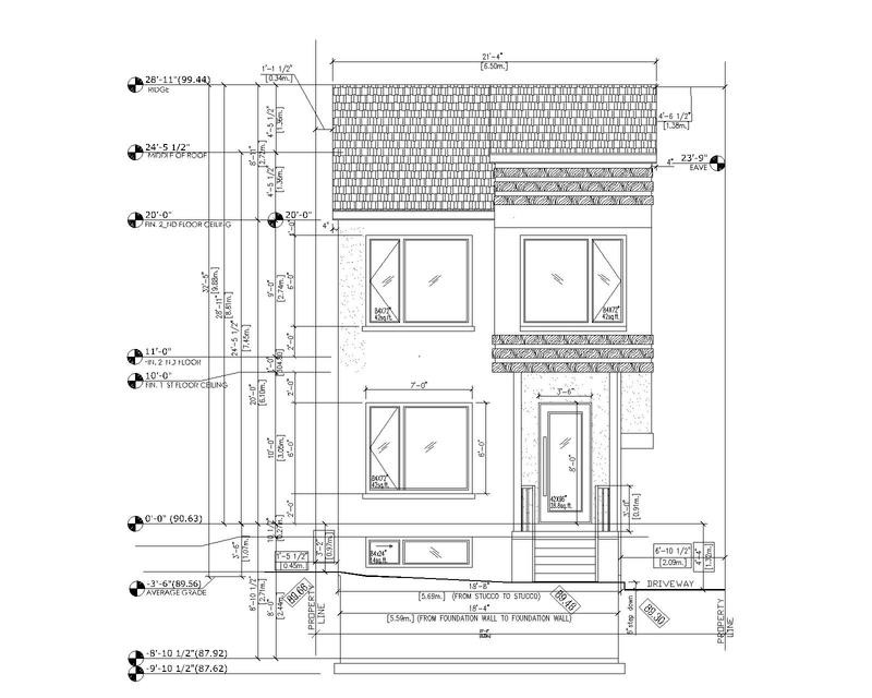
Old house: 2 Bed, 1 Wash, 886 sq. ft.
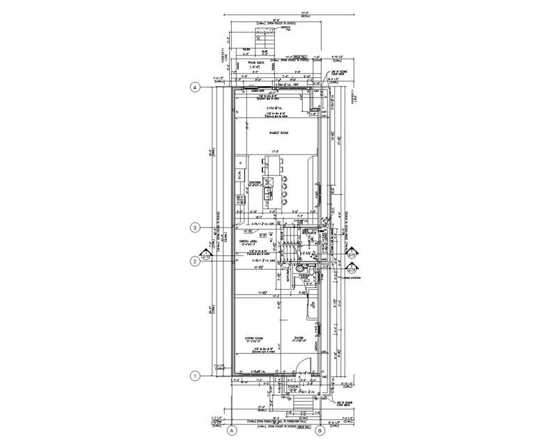
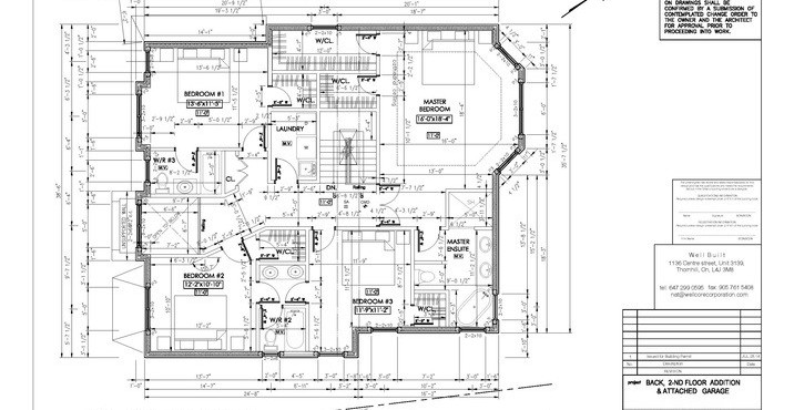
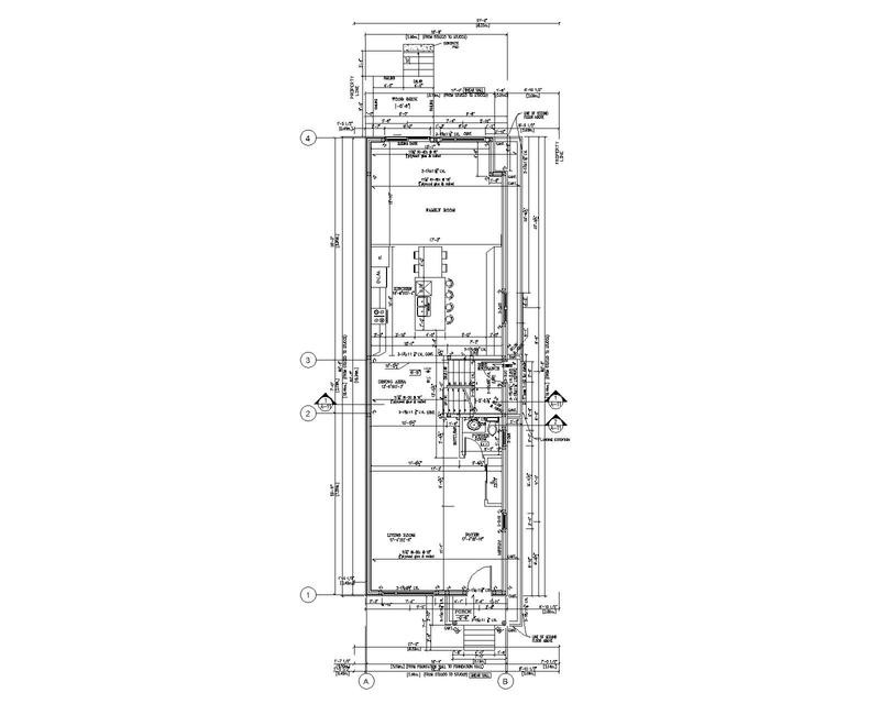
New House: 4 Bed, 5 Bath, 2,538.5 sq. ft.
Despite of the lot's limited space, our designer developed the 2 storey project with spacious 5 Bedr...
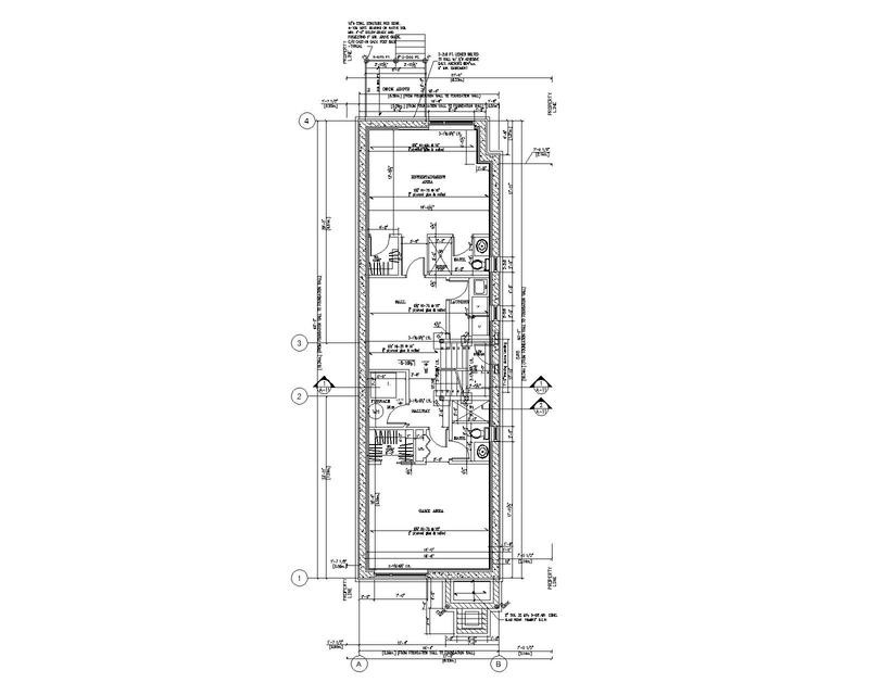
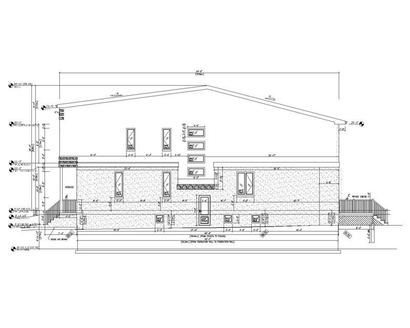
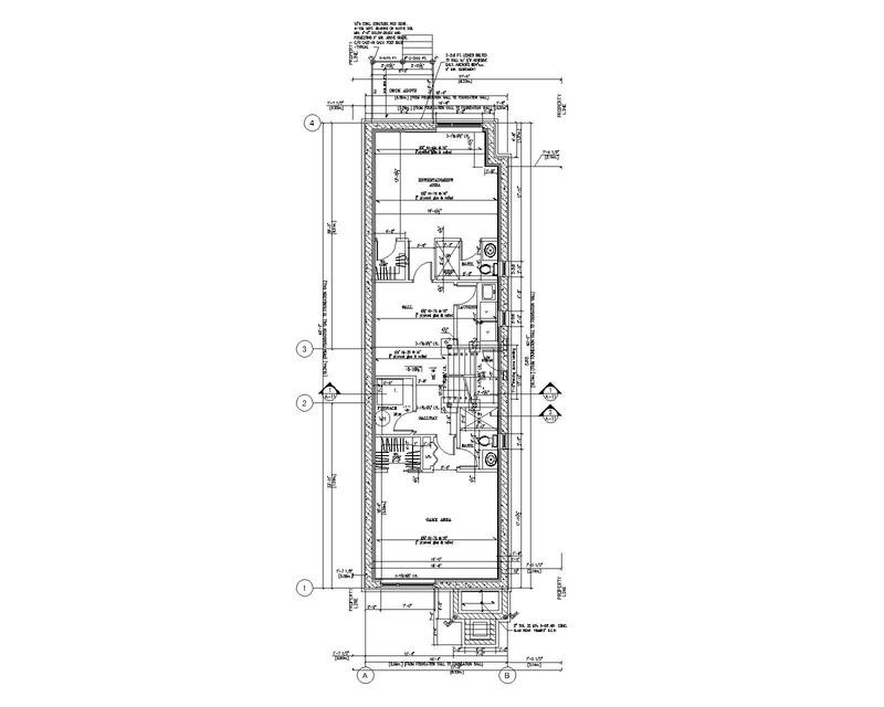
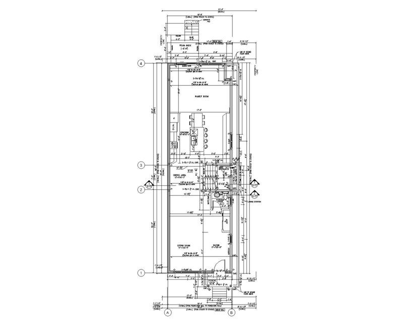
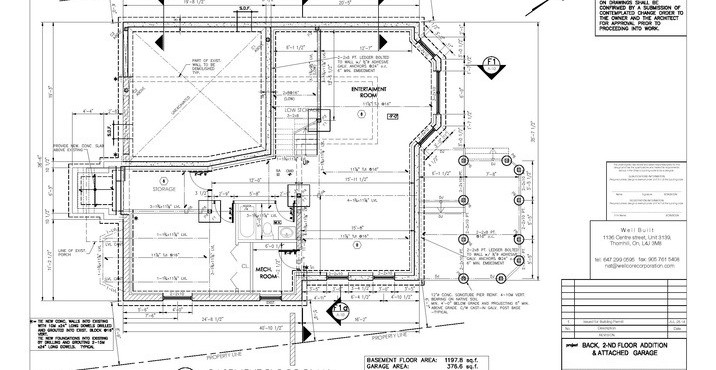
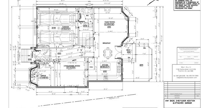
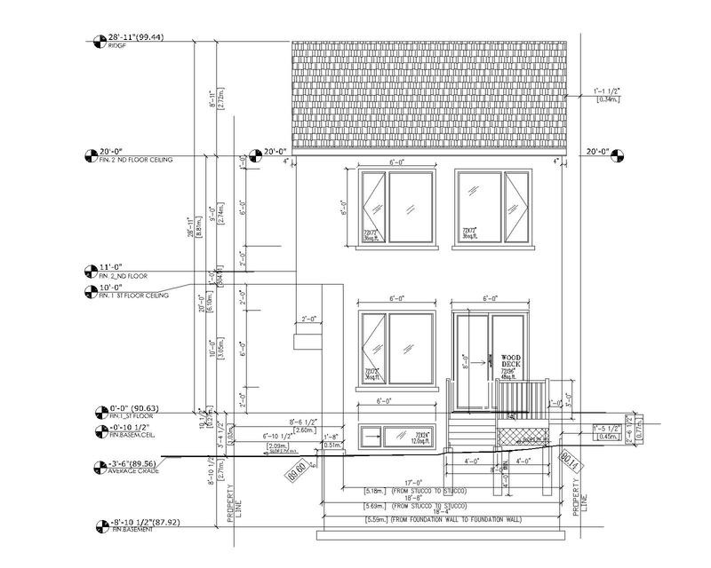
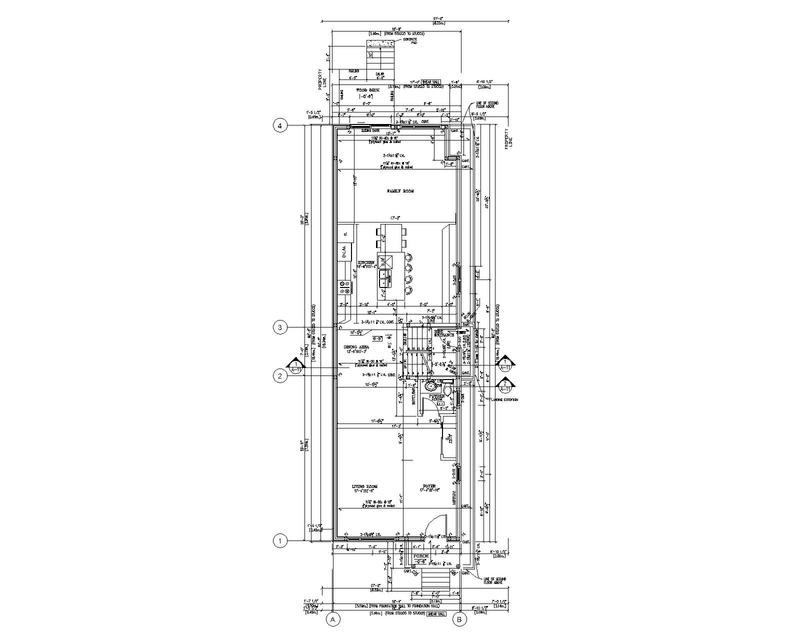
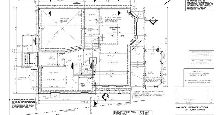
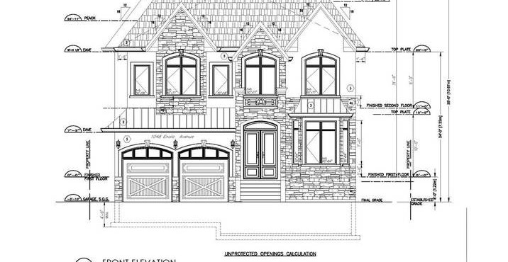
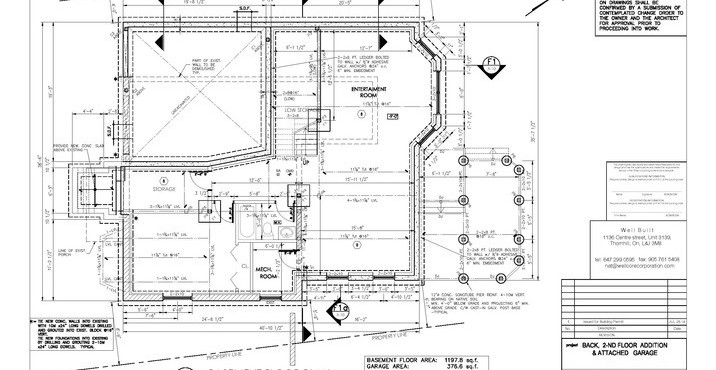
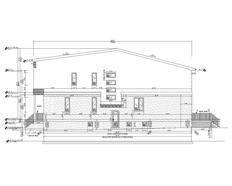
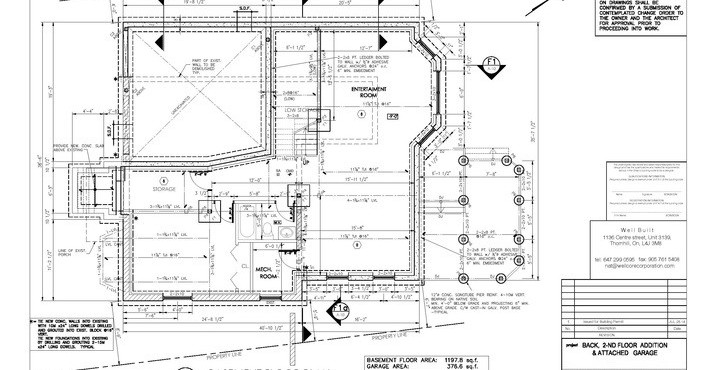
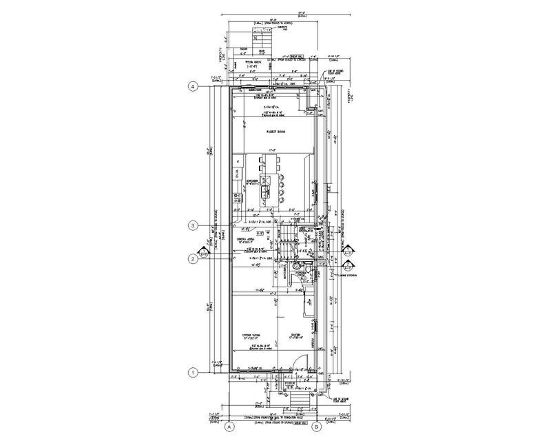
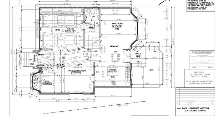
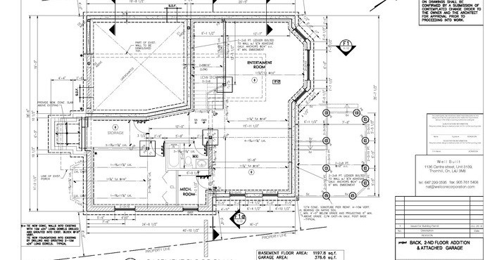
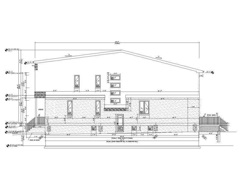
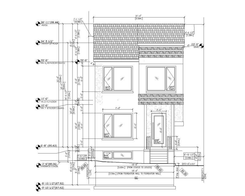
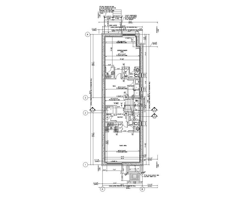
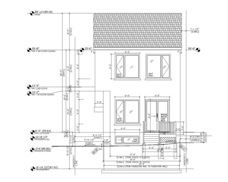
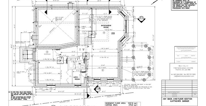
Bungalow in the highly desirable and demanding neighbourhood boasts a large back and second floor ad...
Second floor and rear addition project converted a little bungalow into a contemporary custom home w...
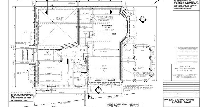
The featured project is a perfec example of a home addition on moderate budget. The construction est...
X
previousnext
Close X