
_m.jpg)




_s.jpg)



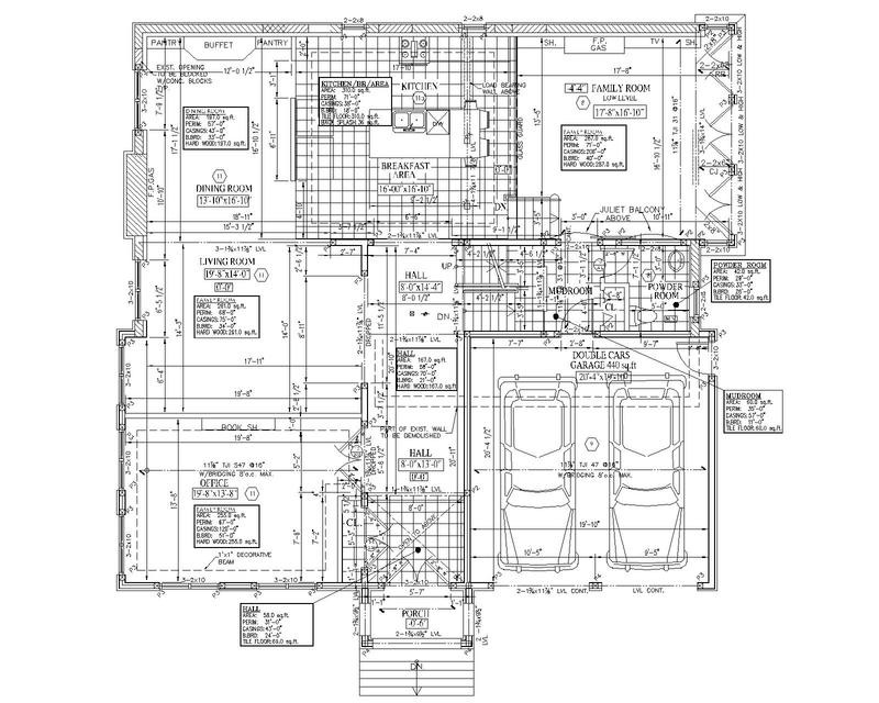
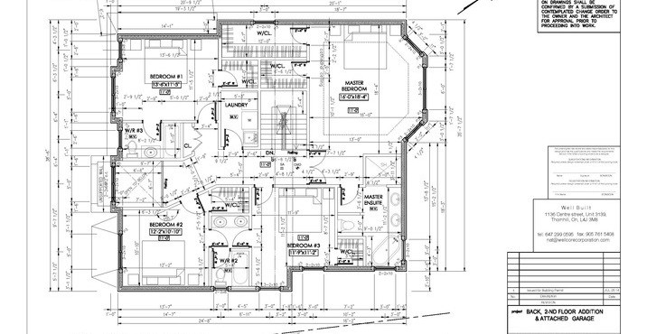
Project: Front and Side Expansion, Second Floor Addition, Finished Basement
Area: Richmond Hill
Old house: 1 Bed, 1 Wash, 1,384.40 sq. ft. bungalow
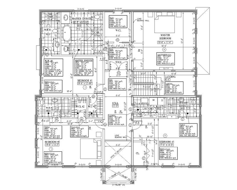
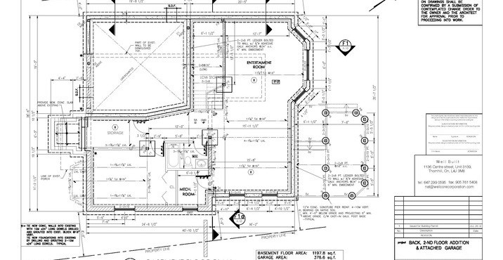
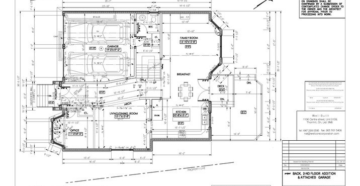
New House: 4 Bed, 5 Bath, 4,248 sq. ft.
Time to obtain permits: 6 months
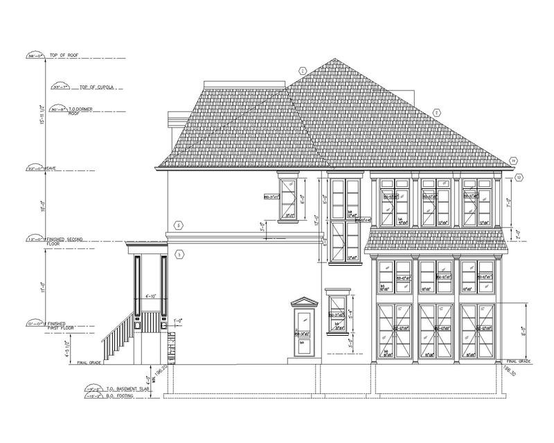
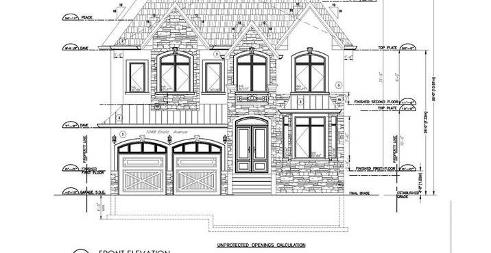
Project Description
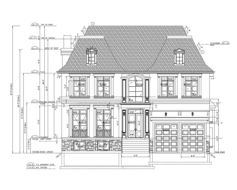
Corner lots have always been a little more valuable for the home buyers than regular lots, because these properties usually bring more of nearly everything: sunlight, frontage area, endless layout options. The existing little bungalow was located in the great area, on the great lot, not exposed to the noisy main streets, traffic, and related hazards. But, unfortunately, the old house was too small and outdated comparing to its neighbours.
The homeowner, together with the design team of Well Built House Corp were balancing a set of challenges and virtues that come along with living at the end of the block, to make sure that all advantages of the corner lot were utilized to the fullest. Our designer proposed to leave the front and side walls of the bungalow, along with the exterior brick chimney stack. Later, this gorgeous brick element will become the main curb appeal feature of the new custom home.