The living space of a one storey brick dwelling was tripled, and a small bungalow was converted into the one of the kind 3 storey contemporary house with finished basement and livable 3rd storey attic. In an established enclave of 1-1/2 storey homes, adding a third floor to a proposed dwelling is difficult enough. The key factor in obtaining the positive verdict of the Committee of Adjustment was the fact that the addition would be constructed on existing footprint, not to mention the fact that using existing foundation helped to save the homeowner over ten thousand dollars.
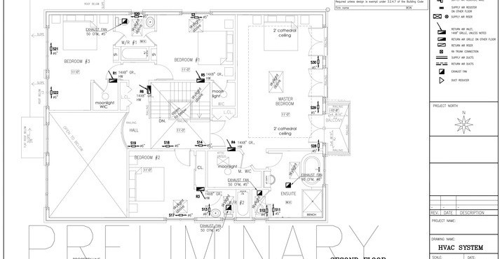
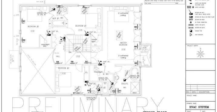
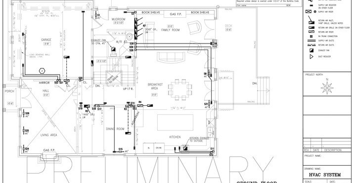
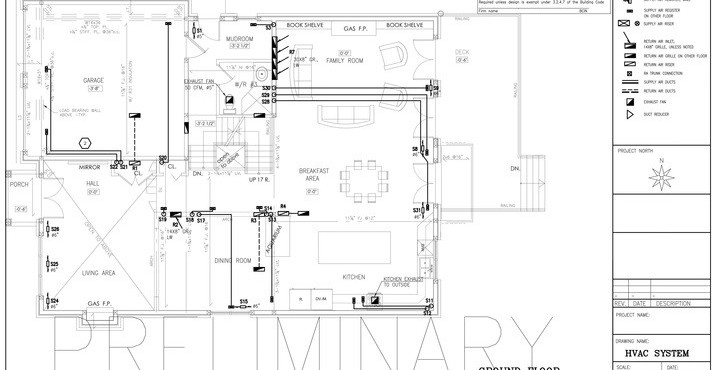
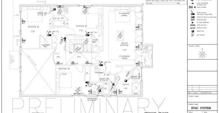
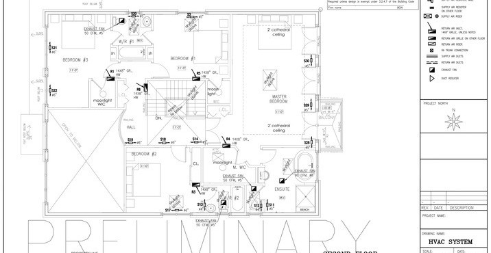
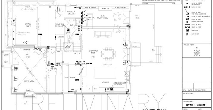
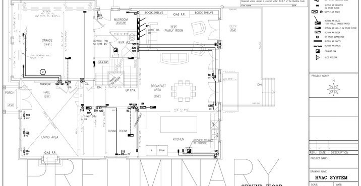
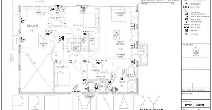
An efficient (Heating, Ventilating, and Air Conditioning) H.V.A.C. system is very important because heating and cooling are the largest energy expense accounts for most our homes.
We provide our customers with the detailed H.V.A.C. calculations and forms as required by municipal building departments and Ontario Building Code including:


(416) 882-4606
Address: 41 William St, Toronto, ON M9N 2G6 Phone: (416) 882-4606 Email: [email protected]