The living space of a one storey brick dwelling was tripled, and a small bungalow was converted into the one of the kind 3 storey contemporary house with finished basement and livable 3rd storey attic. In an established enclave of 1-1/2 storey homes, adding a third floor to a proposed dwelling is difficult enough. The key factor in obtaining the positive verdict of the Committee of Adjustment was the fact that the addition would be constructed on existing footprint, not to mention the fact that using existing foundation helped to save the homeowner over ten thousand dollars.
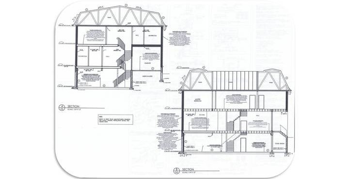
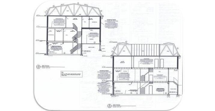
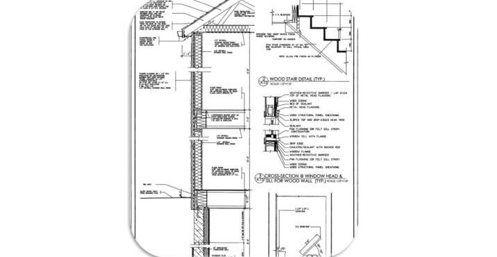
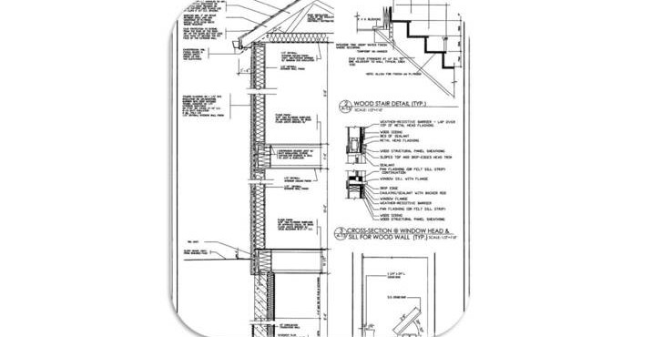
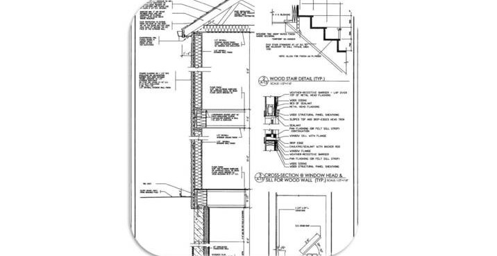
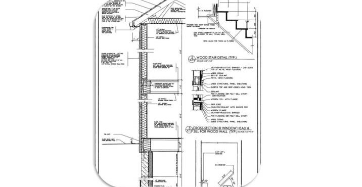
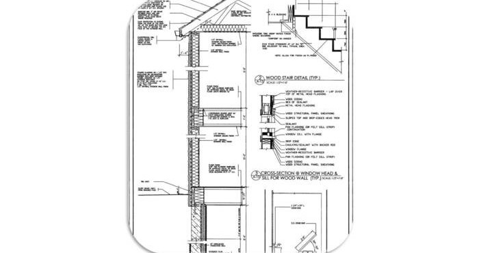
Structural drawings are more specific and more detailed than floor plans.
Once reviewed and stamped by registered structural engineer, the drawings are ready for use. They communicate the design of the building's structure to the building authority to review. They also become part of the construction set of documents which guide builders in detailing, fabricating, and installing parts of the structure.
The structural drawings outline the size and types of materials to be used, as well as the general demands for connections. They are primarily concerned with the load-carrying members of a structure. They do not address architectural details like surface finishes, partition walls, or mechanical systems.





(416) 882-4606
Address: 41 William St, Toronto, ON M9N 2G6 Phone: (416) 882-4606 Email: [email protected]