The living space of a one storey brick dwelling was tripled, and a small bungalow was converted into the one of the kind 3 storey contemporary house with finished basement and livable 3rd storey attic. In an established enclave of 1-1/2 storey homes, adding a third floor to a proposed dwelling is difficult enough. The key factor in obtaining the positive verdict of the Committee of Adjustment was the fact that the addition would be constructed on existing footprint, not to mention the fact that using existing foundation helped to save the homeowner over ten thousand dollars.
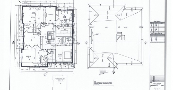
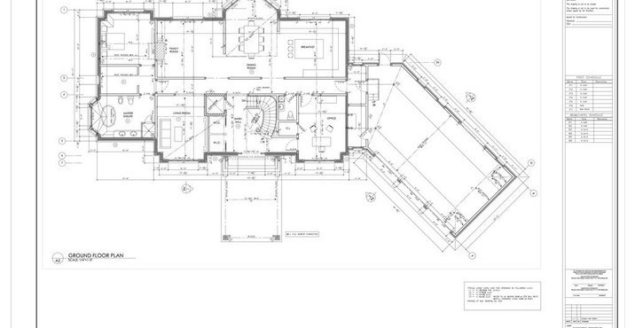
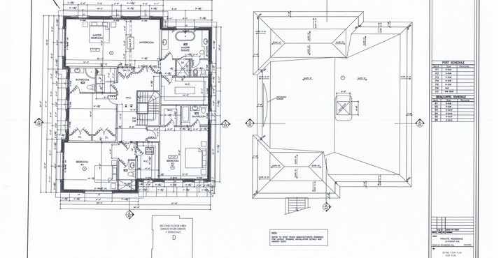
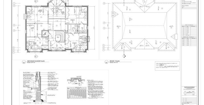
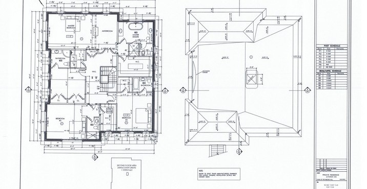
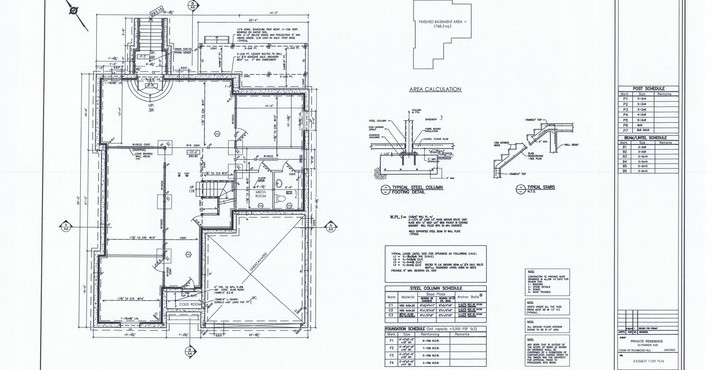
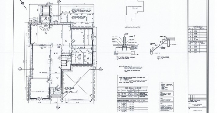
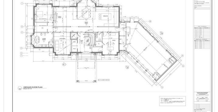
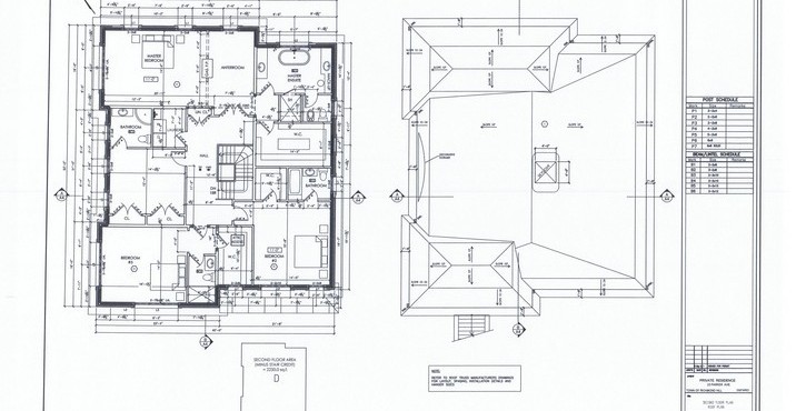
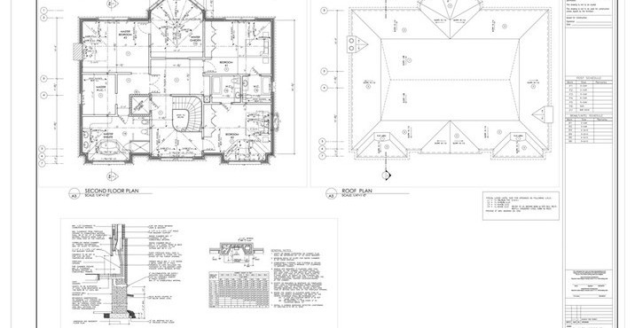
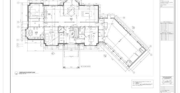
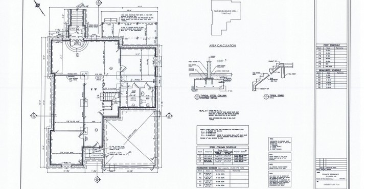
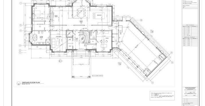
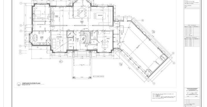
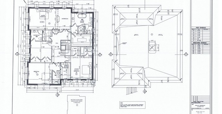
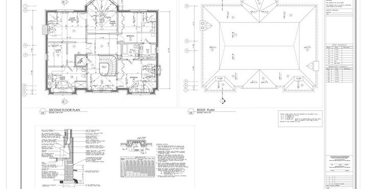
Each floor of a building has its own floor plan, a helpful tool to visualize the project layout.
A floor plan is a drawing showing the outline of a floor, interior and exterior walls, doors, windows, and details of fixtures like sinks, water heaters, furnaces, etc. It is drawn to scale, showing a view from the above of the relationships between rooms, spaces and other physical features at one level of a structure.
Floor plans may include notes for construction to specify finishes, construction methods, or symbols for electrical items.





(416) 882-4606
Address: 41 William St, Toronto, ON M9N 2G6 Phone: (416) 882-4606 Email: [email protected]